Elérhető Otthon Start hitellel
Eladó családi ház, OHH176801
Győr, Győrszabadhegy

119 000 000 Ft

304 000 €

  • 160m²
  • 5 szoba
Kiemelt megbízás


Győr egyik legkedveltebb városrészében, Szabadhegyen kínálunk megvételre egy 160 m²-es, két szinten kialakított, nappali + 5 szobás családi házat.
Az ingatlan 2008-ban teljes körű átépítésen és bővítésen esett át, így egy korszerű, ugyanakkor barátságos hangulatú otthon született, amely kényelmes életteret biztosít akár nagyobb család számára is.

A 470 m²-es telek két utcáról is megközelíthető, jól kihasználható, rendezett, és igazi kikapcsolódást kínál a fedett terasz, a grillező rész, illetve a kertben található melléképületek. Az autó beállásáról elektromos kapu és kényelmes parkolófelület gondoskodik.

Az ingatlan főbb jellemzői:

* masszív, hőszigetelt tégla falazat, korszerű tetőszerkezet
* kondenzációs gázkazán radiátorokkal , valamint fatüzelésű kandalló sütővel
* 2 inverteres klíma a nappaliban és az emeleten
* szigetelt fa nyílászárók, minőségi belsőajtók és fa lépcső
* száraz, jól szigetelt pince (25 m²) közvetlen lakótéri kapcsolattal
* biztonsági riasztórendszer
* „B” energetikai besorolás

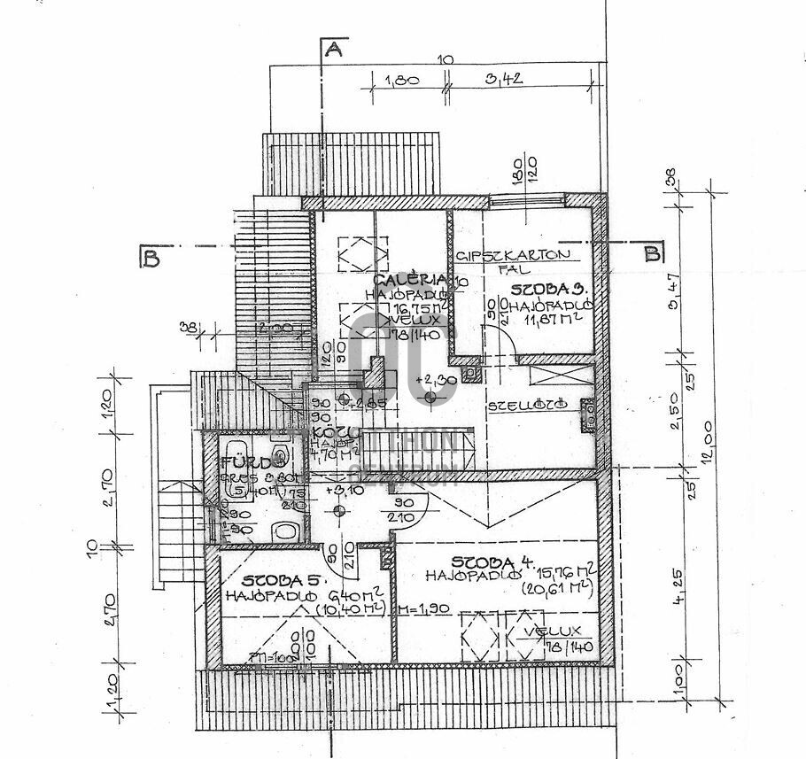
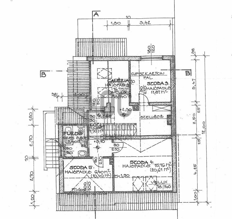
A ház elosztása átgondolt: a földszinten tágas nappali-étkező, konyha, fürdőszoba és két hálószoba található, míg az emeleten további három szoba, egy második fürdő és egy hangulatos galériás tér kapott helyet. A 19 m²-es terasz szinte a nappali természetes meghosszabbítása, ahol reggeli kávé vagy esti vacsora egyaránt élménnyé válik.

A lokáció kiemelkedő: óvoda, iskola, bevásárlási lehetőségek, gyógyszertár, posta és buszmegálló gyalogosan elérhetők, míg az M1 autópálya, az Audi-gyár és az Ipari Park autóval néhány perc alatt megközelíthető.

Regisztrációs szám

OHH176801

Az ingatlan adatai

Értékesités
eladó
Jogi státusz
használt
Jelleg
ház
Építési mód
tégla
Méret
160 m²
Telek méret
470 m²
Fűtés
Gáz cirkó
Állapot
Építés éve
2008

Helyiségek

előszoba
6.4 m²
közlekedő
3.78 m²
szoba
23.2 m²
szoba
11.48 m²
fürdőszoba
4.83 m²
közlekedő
4.75 m²
nappali
24 m²
wc
1.8 m²
kamra
1.8 m²
konyha
8 m²
egyéb
16.75 m²
közlekedő
4.7 m²
szoba
11.87 m²
szoba
15.76 m²
szoba
6.4 m²
fürdőszoba
3.8 m²

Irodánk kínálatából - Győr - Batthyány tér

for sale family house

Index image
data_sheet.details.realestate.section.main.otthonstart_flag.label
18

for sale apartment

Index image
data_sheet.details.realestate.section.main.otthonstart_flag.label
11

eladó családi ház

Index image
Elérhető Otthon Start hitellel
35

for sale family house

Index image
data_sheet.details.realestate.section.main.otthonstart_flag.label
17

for sale family house

Index image
data_sheet.details.realestate.section.main.otthonstart_flag.label
30

for sale family house

Index image
data_sheet.details.realestate.section.main.otthonstart_flag.label
19

eladó újépítésű lakás

Index image
Elérhető Otthon Start hitellel
10

eladó újépítésű lakás

Index image
Elérhető Otthon Start hitellel
10

eladó újépítésű lakás

Index image
Elérhető Otthon Start hitellel
9