Elérhető Otthon Start hitellel
Eladó családi ház,
OHH166543
Sopron, Belváros-külső
49 500 000 Ft
128 000 €
- 245m²
- 5 szoba




























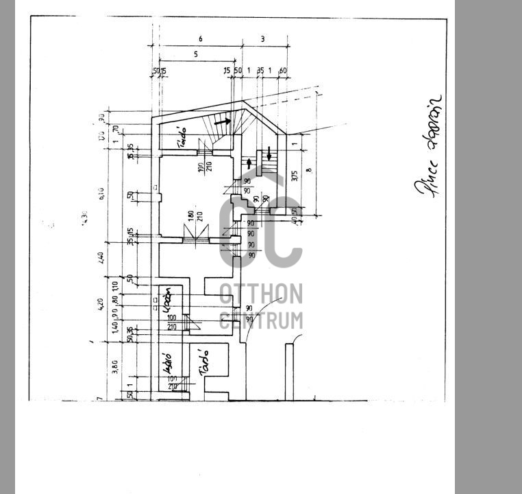
Kínálunk Önnek egy sokoldalú ingatlant, amely ideális lehet családoknak vagy befektetőknek. Az ingatlan három szinten terül el, és változatos lehetőségeket nyújt új otthon kialakítására.
INGATLAN RÉSZLETEI:
*
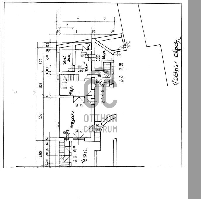
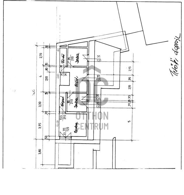
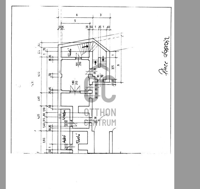
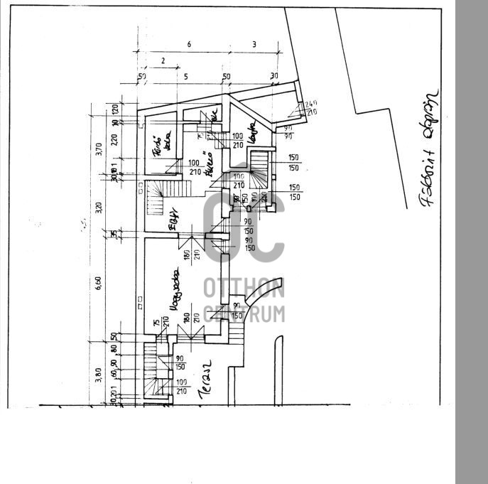
Földszint (83 m2): Két szoba, konyha és fürdőszoba található itt, biztosítva a kényelmes nappali teret minden generációnak.
*
Tetőtér (67 m2): Három szoba és előtér lett kialakítva, így lehetőség nyílik kényelmes hálószobák vagy dolgozószoba kialakítására.
*
Pince (95 m2): Két helyiség, kazánház és több tárolóhelység teszi teljessé az ingatlant, tökéletesen alkalmazkodva a család igényeihez.
*
Különálló garázs és műhely (60 m2): Ideális hely a járművek biztonságos tárolására és kreatív tevékenységeknek.
*
Kert (70 m2): A zöld kert kiváló lehetőséget nyújt a pihenésre és kerti partikra.
TOVÁBBI INFORMÁCIÓK:
*
Az ingatlan felújítandó állapotban van, így lehetőség nyílik egyedi elképzelések megvalósítására és az otthon személyre szabására.
*
Az elektromos kapuval zárt udvarban elhelyezkedő ingatlan egy csendes, mindössze három lakásos közösség része, amely biztonságot és nyugalmat kínál.
IDEÁLIS LEHETŐSÉG AZOKNAK, AKIK SZERETIK SAJÁT ELKÉPZELÉSEIKET MEGVALÓSÍTANI!
Regisztrációs szám
OHH166543
Az ingatlan adatai
Értékesités
eladó
Jogi státusz
használt
Jelleg
ház
Építési mód
egyéb
Méret
245 m²
Fűtés
egyéb
Állapot
Felújítandó
Építés éve
1900
Helyiségek
garázs
60 m²
konyha
0 m²
ebédlő
0 m²
nappali
0 m²
wc
0 m²
fürdőszoba
0 m²
előszoba
0 m²
szoba
0 m²
szoba
0 m²
szoba
0 m²
közlekedő
0 m²
fürdőszoba
0 m²
tároló
0 m²
szoba
0 m²
szoba
0 m²
tároló
0 m²
háztartási helyiség
0 m²
lépcsőház
0 m²

Horváth Zsoltné Edit
Hitelszakértő