Elérhető Otthon Start hitellel
Eladó lakás,
OHH159348
Nagykanizsa, Belváros
27 900 000 Ft
72 000 €
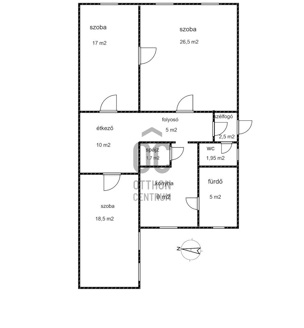
- 97m²
- 3 szoba
- földszint


















A polgári jellegű lakás jellemzői:
-a Deák tértől 350 m-re a déli városrészben
-néhány perc sétával szinte minden elérhető
-tégla építésű földszintes, kertkapcsolatos társasházban
-műanyag,hőszigetelt ablakok és bejárati ajtó
-villanyhálózat részlegesen felújítva
-előnyös elosztású,K-D-i tájolású napfényes lakás
-97 M2-S alapterületen három tágas szoba,konyha,spájz,étkező, fürdő-wc, plusz külön wc, szélfogó
-a szobák galériázhatóak,a lakótér jól alakítható ezáltal
-egyedi konvektoros fűtés,kandalló az étkezőben
-kert felé nyíló terasz
-rendezett,gondozott udvar,jó lakóközösség
-közös költség nincs
-kis ráfordítással költözhető,de igény szerint újítható-szépíthető
-parkolási lehetőség az udvarban
-méretes tároló a kertben,helyére garázs is telepíthető
Regisztrációs szám
OHH159348
Az ingatlan adatai
Értékesités
eladó
Jogi státusz
használt
Jelleg
lakás
Építési mód
tégla
Méret
97 m²
Fűtés
cserépkályha (gáz)
Állapot
Jó
Helyiségek
szoba
26.5 m²
szoba
17 m²
szoba
18.5 m²
konyha
9 m²
ebédlő
10 m²
fürdőszoba
5 m²
közlekedő
5 m²
kamra
1.7 m²
wc
1.95 m²
egyéb
2.5 m²

Horváth Szabina
Hitelszakértő