Elérhető Otthon Start hitellel
Eladó ikerház, H513710
Bócsa

65 000 000 Ft

164 000 €

  • 130m²
  • 4 szoba

MODERN, ENERGY-EFFICIENT HOME IN BÓCSA INNER AREA – STREET FRONT DUPLEX HOUSE, 12 kW SOLAR PANEL

I am offering for sale the street-facing residential part of a twin house built in 2022, located in the inner area of Bócsa. It features independent access, modern technical specifications, and outstanding energy efficiency. This is not the back part – but a home with a front location facing the street, which provides easier access, better sunlight exposure, and greater independence. The 1362 m² plot offers spacious living space, and the net 130 m² living area is well thought out and family-friendly in design. Main features: - 4 separately opening rooms - Quality floor coverings and modern windows - Gas central heating - 12 kW solar panel system with battery storage - 5 kW inverter air conditioning - Modern design with low maintenance costs - Nearly new condition One of the greatest values of the property is its technical background aimed at energy independence – the solar panel system and battery storage ensure predictable utility costs in the long term. You could be the first resident. An ideal choice for those seeking a modern, move-in ready, contemporary home in the quiet inner area of Bócsa. For more information and to arrange a viewing, please feel free to contact me!

Regisztrációs szám

H513710

Az ingatlan adatai

Értékesités
eladó
Jogi státusz
használt
Jelleg
ház
Építési mód
tégla
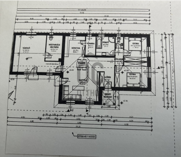
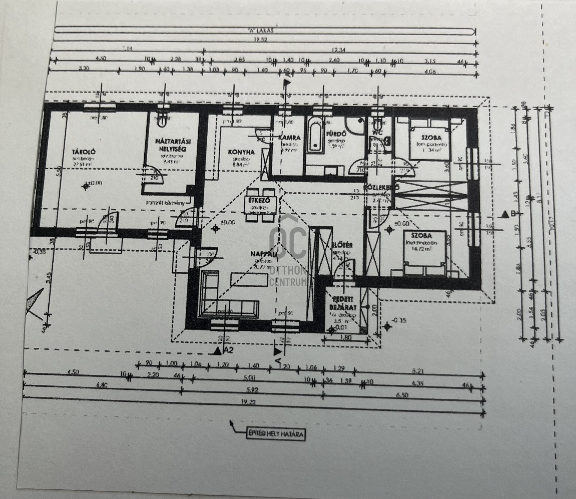
Méret
130 m²
Bruttó méret
145 m²
Telek méret
1 362 m²
Terasz / erkély mérete
25 m²
Fűtés
Gáz cirkó
Belmagasság
270 cm
Tájolás
Dél-nyugat
Állapot
Kiváló
Homlokzat állapota
Kiváló
Építés éve
2023
Fürdőszobák száma
1
Víz
Van
Gáz
Van
Villany
Van

Helyiségek

terasz
4 m²
előszoba
5 m²
szoba
15 m²
szoba
12 m²
wc
1.5 m²
közlekedő
3 m²
fürdőszoba
7.5 m²
kamra
7 m²
konyha
9 m²
ebédlő
14 m²
nappali
21 m²
háztartási helyiség
9.5 m²
szoba
28 m²
terasz
25 m²

Irodánk kínálatából - Kecskemét - Kisfaludy utca

for sale row house

Index image
data_sheet.details.realestate.section.main.otthonstart_flag.label
25

for sale apartment

Index image
data_sheet.details.realestate.section.main.otthonstart_flag.label
9

for sale row house

Index image
data_sheet.details.realestate.section.main.otthonstart_flag.label
18