Eladó családi ház, H513490
Budapest XVII. kerület, Pesti úti lakópark

244 990 000 Ft

624 000 €

  • 206m²
  • 6 szoba
Árgaranciával

Medencés, szaunás, napelemes újszerű ház eladó a Pesti úti lakóparkban

XVII. kerületben a méltán kedvelt Pesti úti lakóparkban kínálunk megvásárlásra egy nappali+ 5 szobás, sok extrával felszerelt kiváló állapotú családi házat 605 nm-es telekkel. A lakóépület 2002-ben épült, azóta a Tulajdonosa esztétikailag és műszakilag is felújította, így a mai igényeknek maximálisan megfelel. A ház belső elosztása kiváló, nagyobb létszámú családnak, két generációnak is kényelmes Otthona lehet. A földszinten a tágas előszobából nyílik a felújított fürdőszoba, egy nagy méretű szoba, ez az egység külön lakrészként is funkcionálhat. A garázsból közvetlenül a lakásba jutunk. A ház központi része a közel 50 nm-es, napfényben úszó ( DK-i tájolás) nagyobb belmagasságú nappali az étkezővel, innen közvetlen kertkapcsolatunk van a nagy méretű teraszon keresztül. A konyhában új, gépesített (Bosch elektromos főzőlap, mosogatógép, sütő, mikró), német minőségi konyhabútor található, mely a vételár részét képezi. A nappaliban lévő fatüzelésű kandalló gondoskodik télen a meghitt hangulatról. Az emeletre kényelmes lépcső vezet, ahol négy tágas hálószoba, egy újszerű fürdőszoba és egy háztartási helyiség kapott helyet. Itt egy padlástéri helyiség még beépíthető, tárolásra kiválóan alkalmas. A mai energiaérzékeny világban fontos, hogy a rezsi ne legyen magas. Az ingatlan 10 KW-os napelemrendszerrel rendelkezik (még 7 évig szaldós), így a villanyszámla nulla. Elektromos autó töltő lett kiépítve, 5 db inverteres hűtő-fűtő klíma lett felszerelve, a fűtést és a használati melegvizet egy fiatal kondenzációs kazán biztosítja. Az ablakokban az üvegezés nemrég lett cserélve, továbbá a belső ajtók is megújultak, modern, minőségi nyílászárók lettek beépítve. A hátsó, növényekkel körbeültetett intim kertben egy gépesített, épített medence került kialakításra napozóterasszal, a medence mérete 7,5 m x 4 m, hőszivattyú fűti a vizét. A medence mellett kapott helyet a 4 személyes finn szauna, továbbá kerti sütögető, bográcsozó is. A fűtött garázsban egy autó elfér, az előkertben további két autónak van hely, elektromos kapukon történik a bejutás, videós beléptető rendszer lett kialakítva. Az utcai kerítés cserélve lett porfestett alumínium kerítésre. A növényeket a 3 körös automata öntözőrendszer locsolja, a biztonságról riasztó gondoskodik. A környék kifejezetten szép, nívós, kulturált szomszédokkal, csendes kertvárosi környezet. Séta távolságra több bevásárlási lehetőség (Lidl, Spar), benzinkút, nagy játszótér, Home Centerben sok üzlet megtalálható, buszmegálló is rövid időn belül elérhető (97E, 202E).

Regisztrációs szám

H513490

Az ingatlan adatai

Értékesités
eladó
Jogi státusz
használt
Jelleg
ház
Építési mód
tégla
Méret
206 m²
Bruttó méret
265 m²
Telek méret
605 m²
Terasz / erkély mérete
45 m²
Fűtés
Gáz cirkó
Belmagasság
270 cm
Lakáson belüli szintszám
1
Tájolás
Dél-kelet
Állapot
Kiváló
Homlokzat állapota
Kiváló
Környék
csendes, jó közlekedés, zöld
Építés éve
2002
Fürdőszobák száma
2
Garázs
Benne van az árban
Garázs férőhely
1
Víz
Van
Gáz
Van
Villany
Van
Csatorna
Van
Tároló
Önálló

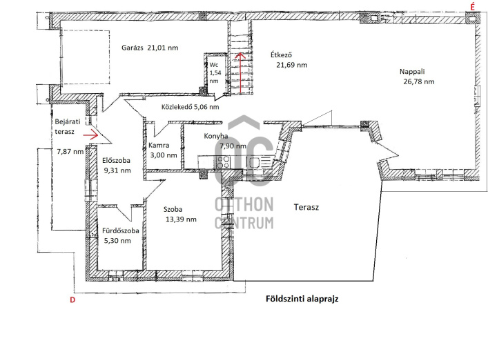
Helyiségek

nappali
26.78 m²
előszoba
9.31 m²
garázs
21.01 m²
ebédlő
21.69 m²
konyha
7.9 m²
kamra
3 m²
fürdőszoba
5.3 m²
hálószoba
13.39 m²
terasz
15 m²
terasz
30 m²
közlekedő
5.06 m²
wc-kézmosó
1.54 m²
hálószoba
13.12 m²
háztartási helyiség
5.7 m²
közlekedő
13.5 m²
hálószoba
11.28 m²
hálószoba
10.96 m²
fürdőszoba-wc
5.88 m²
hálószoba
28.03 m²
közlekedő
2.9 m²
lépcsőház
5.89 m²

Irodánk kínálatából - XVII. kerület - Cinkotai út

eladó családi ház

Index image
18

eladó családi ház

Index image
Elérhető Otthon Start hitellel
26

eladó panel lakás

Index image
Elérhető Otthon Start hitellel
11

for sale apartment

Index image
data_sheet.details.realestate.section.main.otthonstart_flag.label
24

eladó újépítésű családi ház

Index image
Elérhető Otthon Start hitellel
5