249 900 000 Ft
660 000 €
- 89m²
- 3 szoba
- 3. emelet
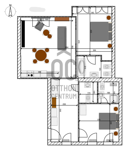
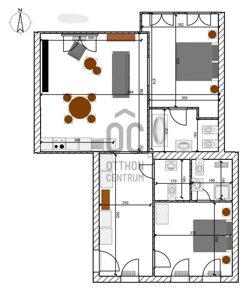
Ahol az elegancia otthonná válik! V. kerület Nyáry Pál utcában, a Váci utca szomszédságában, 89 m2-es nappali + 2 hálószobás, duplakomfortos, vendég wc-s, 3. emeleti luxuslakás eladó.
Az ingatlan prémium minőségű felújításon esett át, melynek során a legkiválóbb minőségű anyagokat használták fel, a lakás minden részletében az eleganciát tükrözi. Az ingatlan amerikai konyhás nappalival rendelkezik, a fő hálószoba és a nappali a csendes Nyáry Pál utcára néz, míg a második hálószoba a nyugodt belső udvarra nyílik. Mindkét hálószobához külön fürdőszoba tartozik, a fő hálószobához egy elegáns káddal, WC-vel és bidével felszerelt fürdő kapcsolódik, míg a második hálószobához egy modern zuhanyzós. A lakásban külön vendég WC is található.
Az ingatlan prémium minőségű bútorokkal és gépekkel együtt eladó, így az új tulajdonos azonnal beköltözhet egy teljesen felszerelt, exkluzív otthonba. A teljes körű felújítás során új nyílászárók lettek beépítve, valamint minden víz- és villanyvezetékek cserélve lett.
Designer csillárok, beépített szekrények, minőségi szaniterek és prémium burkolatok kerültek beépítésre. A 3,6 méteres belmagasság és a chevron tölgyfa parketta különleges, elegáns hangulatot kölcsönöz az otthonnak. A konyha teljesen gépesített, AEG márkájú készülékekkel felszerelt: mosogatógép, hűtő fagyasztóval, sütő, főzőlap, páraelszívó és mosó- szárítógép is rendelkezésre áll. Az ingatlan kényelmét három légkondicionáló és automata redőnyök biztosítják. A fűtés és a melegvíz kondenzációs kazánról üzemel, a közös költség vízdíjat és célbefizetést tartalmaz, melynek összege 42.809.-Ft havonta.
Ez a lakás nem csak otthonként, hanem befektetésként is tökéletes választás azok számára, akik a belvárosi luxust és kényelmet keresik. Az ingatlan minden részlete a legmagasabb színvonalat képviseli, így garantáltan megfelel a legigényesebb vásárlók elvárásainak is.
Az ingatlan prémium minőségű bútorokkal és gépekkel együtt eladó, így az új tulajdonos azonnal beköltözhet egy teljesen felszerelt, exkluzív otthonba. A teljes körű felújítás során új nyílászárók lettek beépítve, valamint minden víz- és villanyvezetékek cserélve lett.
Designer csillárok, beépített szekrények, minőségi szaniterek és prémium burkolatok kerültek beépítésre. A 3,6 méteres belmagasság és a chevron tölgyfa parketta különleges, elegáns hangulatot kölcsönöz az otthonnak. A konyha teljesen gépesített, AEG márkájú készülékekkel felszerelt: mosogatógép, hűtő fagyasztóval, sütő, főzőlap, páraelszívó és mosó- szárítógép is rendelkezésre áll. Az ingatlan kényelmét három légkondicionáló és automata redőnyök biztosítják. A fűtés és a melegvíz kondenzációs kazánról üzemel, a közös költség vízdíjat és célbefizetést tartalmaz, melynek összege 42.809.-Ft havonta.
Ez a lakás nem csak otthonként, hanem befektetésként is tökéletes választás azok számára, akik a belvárosi luxust és kényelmet keresik. Az ingatlan minden részlete a legmagasabb színvonalat képviseli, így garantáltan megfelel a legigényesebb vásárlók elvárásainak is.
Regisztrációs szám
H513057
Az ingatlan adatai
Értékesités
eladó
Jogi státusz
használt
Jelleg
lakás
Építési mód
tégla
Méret
89 m²
Bruttó méret
89 m²
Fűtés
Gáz cirkó
Belmagasság
360 cm
Lakáson belüli szintszám
1
Tájolás
Észak-nyugat
Lépcsőház típusa
zárt lépcsőház
Állapot
Kiváló
Homlokzat állapota
Kiváló
Lépcsőház állapota
Kiváló
Környék
csendes, jó közlekedés, központi
Építés éve
1940
Fürdőszobák száma
3
Fekvés
utcai
Közös költség
42
Víz
Van
Gáz
Van
Villany
Van
Csatorna
Van
Lift
van
Helyiségek
előszoba
14.9 m²
nappali-konyha
29.2 m²
hálószoba
17.5 m²
fürdőszoba-wc
7.5 m²
hálószoba
13.3 m²
fürdőszoba-wc
3.5 m²
wc-kézmosó
3.1 m²
Gerber Dorottya
Hitelszakértő