180 745 500 Ft
465 000 €
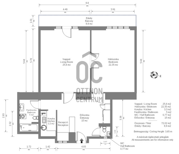
- 74m²
- 2 szoba
- 2. emelet
at St. Stephen's Basilica!
In the 5th district, just a block from St. Stephen's Basilica,
in a well-maintained building with an elevator,
there is a 2nd-floor (there's a half-floor, so it's the 3rd level) street-facing, balcony, renovated, air-conditioned apartment.
The apartment is 74 m², with 2 large separate entrance rooms and a balcony overlooking Hercegprímás Street.
It is rented out with a gradually increasing rental fee until December 31, 2029.
It can be purchased together with the tenant; I recommend it as an investment.
in a well-maintained building with an elevator,
there is a 2nd-floor (there's a half-floor, so it's the 3rd level) street-facing, balcony, renovated, air-conditioned apartment.
The apartment is 74 m², with 2 large separate entrance rooms and a balcony overlooking Hercegprímás Street.
It is rented out with a gradually increasing rental fee until December 31, 2029.
It can be purchased together with the tenant; I recommend it as an investment.
Regisztrációs szám
H512599
Az ingatlan adatai
Értékesités
eladó
Jogi státusz
használt
Jelleg
lakás
Építési mód
tégla
Méret
74 m²
Bruttó méret
74 m²
Terasz / erkély mérete
9 m²
Fűtés
Gáz cirkó
Belmagasság
365 cm
Tájolás
Dél-nyugat
Lépcsőház típusa
körfolyosó
Állapot
Jó
Homlokzat állapota
Jó
Lépcsőház állapota
Jó
Építés éve
1900
Fürdőszobák száma
1
Fekvés
utcai
Víz
Van
Gáz
Van
Villany
Van
Csatorna
Van
Lift
van
Helyiségek
szoba
27 m²
szoba
22 m²
fürdőszoba-wc
5 m²
Ruczek Krisztina
Hitelszakértő