Elérhető Otthon Start hitellel
Eladó családi ház, H512072
Üllő

130 000 000 Ft

338 000 €

  • 123m²
  • 5 szoba

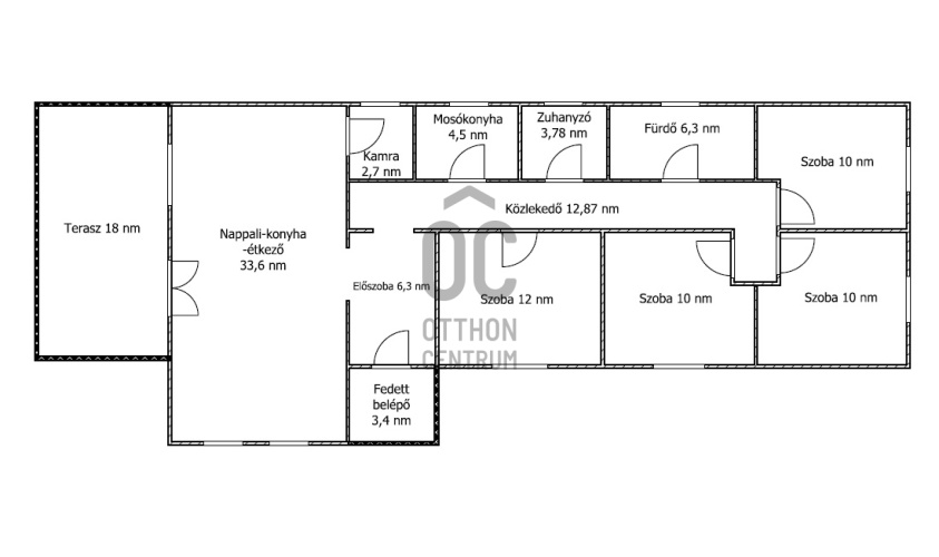
Eladó Üllőn, újszerű állapotban egy kitűnő beosztású, kiváló minőségben épült, földszintes, 112,3 (nettó) nm-es 5 szobás családi ház, mely lakóterületén túl 3,4 nm-es fedett belépővel és 18 nm-es terasszal is rendelkezik. A ház 2022-ben épült, 601 nm-es telekkel rendelkezik, ami egy kizárólagos használati megosztással rendezett telek belső fele. Tágas és teraszkapcsolatos nappali-konyha-étkezőn túl, 4 szobával, háztartási helyiséggel, két fürdővel, tágas előszobával és kamrával is rendelkezik. Fűtését gáz-cirkó biztosítja, a főfalak 15, a faszerkezetű födém 30 cm szigeteléssel rendelkezik, (redőnnyel, és kívűlről mészkő párkánnyal ellátott) műanyag nyílászárói három rétegűek. A világos, praktikus elrendezésű házból, a jó ízléssel válogatott és magas minőségben beépített burkolatok és szaniterek, valamint a koherensen kivitelezett beépített bútorok teremtenek otthont. Ezen felül az ingatlan élhetőségét, kényelmét biztosítja számtalan kiegészítő és műszaki megoldás, mint például az elektromos kapu, a parkosított kertben telepített fúrt kútról üzemeltetett öntözőrendszer, a vakondhálóval ellátott gyepszőnyeg, az udvari tároló kisház, a kialakított gépkocsibeálló, a szobákban elhelyezett 5 db, H-tarifás mérőről üzemeltetett klíma, a riasztórendszer teljes vezetékezésének előre kiépítése, az ízléses konyha gépesítése, a padlástérben kialakított kb. 4 nm-es pakolható terület. Elhelyezkedésének köszönhetően közlekedése kitűnő, vasútállomás sétatávolságra, gyorsforgalmi út pár perc alatt elérhető. A lakókörnyezet barátságos, a közelben óvoda, bölcsöde és játszótér is megtalálható. A birtokba adás tervezett ideje 2026 július közepe.

Amennyiben felkeltettem érdeklődését, várom hívását!

Regisztrációs szám

H512072

Az ingatlan adatai

Értékesités
eladó
Jogi státusz
használt
Jelleg
ház
Építési mód
tégla
Méret
123 m²
Bruttó méret
133 m²
Telek méret
601 m²
Terasz / erkély mérete
18 m²
Fűtés
Gáz cirkó
Belmagasság
273 cm
Tájolás
Dél-kelet
Állapot
Kiváló
Homlokzat állapota
Kiváló
Építés éve
2022
Fürdőszobák száma
2
Víz
Van
Gáz
Van
Villany
Van
Csatorna
Van
Tároló
Önálló

Helyiségek

nappali-konyha
33.6 m²
szoba
12 m²
szoba
10 m²
szoba
10 m²
szoba
10 m²
mosókonyha
4.5 m²
kamra
2.7 m²
előszoba
6.3 m²
közlekedő
12.87 m²
zuhanyzó
3.78 m²
fürdőszoba
6.3 m²
terasz
18 m²
Hazay Melinda
Hazay Melinda

Hitelszakértő

Irodánk kínálatából - XIV. kerület - István Park

for sale apartment

Index image
data_sheet.details.realestate.section.main.otthonstart_flag.label
23

for sale panel apartment

Index image
data_sheet.details.realestate.section.main.otthonstart_flag.label
17

for sale panel apartment

Index image
data_sheet.details.realestate.section.main.otthonstart_flag.label
19

for sale family house

Index image
data_sheet.details.realestate.section.main.otthonstart_flag.label
16

for sale apartment

Index image
18

for sale apartment

Index image
36

for sale panel apartment

Index image
data_sheet.details.realestate.section.main.otthonstart_flag.label
16