Elérhető Otthon Start hitellel
Eladó családi ház,
H511298
Nyársapát
46 500 000 Ft
124 000 €
- 113m²
- 3 szoba
Három szoba+nappali családi ház Nyársapáton!
Eladásra kínálok Nyársapát csendes részén egy szerkezetileg jól megépített, felújított családi házat!
Az ingatlan téglából épült 1970-ben, és 1463 m² telken helyezkedik el.
Az épület 2024-ben teljes körű felújítást kapott, melynek során kicserélték a teljes villany hálózatot, új burkolatokat kaptak a helyiségek.
Az épület fűtése gázcirko, nyáron a nappaliban felszerelt 5.3 kw inverteres, hűtő-fűtő funkcióval ellátott klíma biztosítja a kellemes hőmérsékletet.
Új bejárati ajtó, és új műanyag nyílászárók kerültek behelyezésre az utcafront felőli szobáknál.
A nappaliban régi de jó állapotú fa nyílászáró található, az ablakok redőnyös.
A korszerűsítés során új fűtés rendszert alakítottak ki.
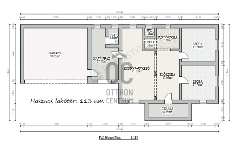
HASZNOS LAKÓ TÉR 113 m²
- kettő külön nyíló szoba
- nappali
- konyha+étkező
- fürdőszoba+WC
- előszoba
A főépületből átjárható a kazánház, ahol egy WC+kézmosó is kialakításra került.
Az ingatlanhoz tartozik egy 50 m² dupla garázs, ahonnan a kazánházon keresztül a konyha könnyen megközelíthető.
A szépen gondozott, rendezett telken egy hangulatos kis tó, fúrt kút, az udvar hátsó részén ólak, és tárolók találhatóak.
INGATLAN ELHELYEZKEDÉSE
Iskola, élelmiszerbolt, Polgármesteri Hivatal, Művelődési központ, pizzéria 500 méteren belül, gyalogosan is könnyen megközelíthető.
MIÉRT AJÁNLOM A FIGYELMÉBE?
- nem kell a felújítással bajlódnia
- jelenlegi állapotában azonnal költözhető
- alapvetően csendes, nyugodt, szép környéken helyezkedik el, zöldövezet mellett
- per- és tehermentes ingatlan
Amennyiben megtetszett Önnek ez a harmonikus családi ház, várom megtisztelő hívását az ország legismertebb ingatlanközvetítő hálózat tagjaként.
Elérhető vagyok a hét minden napján.
Érdemes tudni, hogy az Otthon Centrum több banknak is az egyik legnagyobb ügyfele, ezért nálunk kedvezőbb konstrukciókkal tud lakáshitelhez jutni, rövidebb időn belül!
A hitelközvetítésünk ingyenes!
#Nyársapát #kettőszoba+nappali #központifűtés #113m² #klíma #duplagarázs #tégla
Az ingatlan téglából épült 1970-ben, és 1463 m² telken helyezkedik el.
Az épület 2024-ben teljes körű felújítást kapott, melynek során kicserélték a teljes villany hálózatot, új burkolatokat kaptak a helyiségek.
Az épület fűtése gázcirko, nyáron a nappaliban felszerelt 5.3 kw inverteres, hűtő-fűtő funkcióval ellátott klíma biztosítja a kellemes hőmérsékletet.
Új bejárati ajtó, és új műanyag nyílászárók kerültek behelyezésre az utcafront felőli szobáknál.
A nappaliban régi de jó állapotú fa nyílászáró található, az ablakok redőnyös.
A korszerűsítés során új fűtés rendszert alakítottak ki.
HASZNOS LAKÓ TÉR 113 m²
- kettő külön nyíló szoba
- nappali
- konyha+étkező
- fürdőszoba+WC
- előszoba
A főépületből átjárható a kazánház, ahol egy WC+kézmosó is kialakításra került.
Az ingatlanhoz tartozik egy 50 m² dupla garázs, ahonnan a kazánházon keresztül a konyha könnyen megközelíthető.
A szépen gondozott, rendezett telken egy hangulatos kis tó, fúrt kút, az udvar hátsó részén ólak, és tárolók találhatóak.
INGATLAN ELHELYEZKEDÉSE
Iskola, élelmiszerbolt, Polgármesteri Hivatal, Művelődési központ, pizzéria 500 méteren belül, gyalogosan is könnyen megközelíthető.
MIÉRT AJÁNLOM A FIGYELMÉBE?
- nem kell a felújítással bajlódnia
- jelenlegi állapotában azonnal költözhető
- alapvetően csendes, nyugodt, szép környéken helyezkedik el, zöldövezet mellett
- per- és tehermentes ingatlan
Amennyiben megtetszett Önnek ez a harmonikus családi ház, várom megtisztelő hívását az ország legismertebb ingatlanközvetítő hálózat tagjaként.
Elérhető vagyok a hét minden napján.
Érdemes tudni, hogy az Otthon Centrum több banknak is az egyik legnagyobb ügyfele, ezért nálunk kedvezőbb konstrukciókkal tud lakáshitelhez jutni, rövidebb időn belül!
A hitelközvetítésünk ingyenes!
#Nyársapát #kettőszoba+nappali #központifűtés #113m² #klíma #duplagarázs #tégla
Regisztrációs szám
H511298
Az ingatlan adatai
Értékesités
eladó
Jogi státusz
használt
Jelleg
ház
Építési mód
tégla
Méret
113 m²
Bruttó méret
125 m²
Telek méret
1 463 m²
Terasz / erkély mérete
8,3 m²
Fűtés
Gáz cirkó
Belmagasság
272 cm
Tájolás
Kelet
Állapot
Átlagos
Homlokzat állapota
Átlagos
Környék
csendes, jó közlekedés, zöld
Építés éve
1970
Fürdőszobák száma
1
Garázs
Benne van az árban
Víz
Van
Gáz
Van
Villany
Van
Csatorna
Van
Tároló
Önálló
Helyiségek
szoba
17.76 m²
szoba
17.26 m²
konyha-étkező
31.12 m²
fürdőszoba
8.88 m²
előszoba
17.12 m²
wc
1.18 m²
kazánház
20.07 m²
garázs
50 m²
terasz
8.35 m²