Elérhető Otthon Start hitellel
Eladó sorház,
H511237
Budapest XXIII. kerület, Soroksár
129 900 000 Ft
337 000 €
- 117m²
- 3 szoba
Fedezze fel álmai otthonát Budapest 23. kerületében, Soroksáron, ahol a modern életstílus és a természet közelsége találkozik! Ez a kiváló állapotban lévő, frissen felújított, 4 lakásos ház egyik gyönyörű lakása ideális választás fiatal felnőttek, illetve családok számára, akik egy exkluzív, mégis megfizethető otthont keresnek.
Egyedi igényekre szabott lakáshitelekkel állunk rendelkezésére.
Bankfüggetlen Hitelcentrumunk az országban elérhető összes bank és hitelintézet ajánlatát versenyezteti az Ön számára díjmentesen.
Munkatársaink nagy szakmai tapasztalattal, teljes körű CSOK PLUSZ és OTTHON START PROGRAM ügyintézéssel várják Önt előre egyeztetett időpontban akár a normál munkaidő után is.
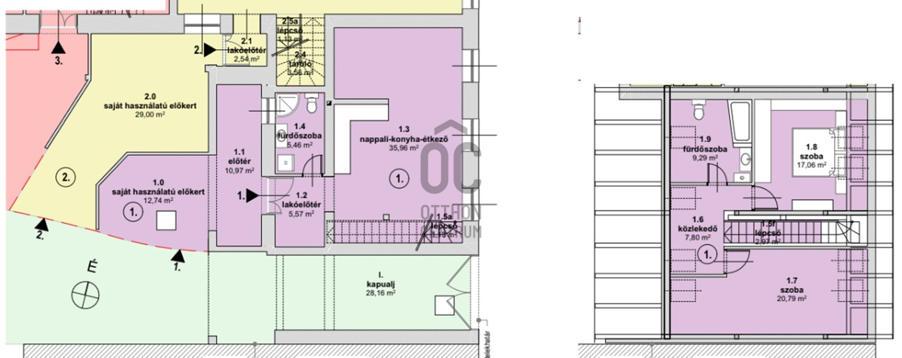
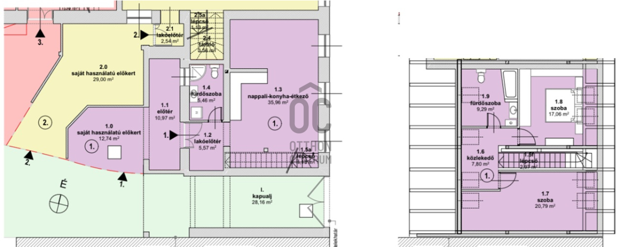
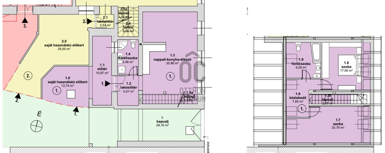
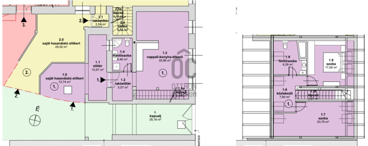
Az ingatlan alapterülete 117 nm, amely három tágas szobát és két fürdőszobát foglal magában, így bőven elegendő helyet biztosít a kényelmes életvitelhez. A házhoz tartozik egy 10 nm-es terasz, ahol élvezheti a reggeli kávéját vagy a nyári estéket, miközben a rendezett kert szépségét csodálja. Az ingatlan prémium kivitelezéssel készült, minden részletre figyelmet fordítva, beleértve az összes helységben klíma előkészítést, 3 rétegű zajszűrős ablakokat, integrált szúnyoghálókat és a motoros alumínium redőnyöket, amelyek nemcsak a kényelmet, hanem a biztonságot is garantálják. Extra a fürdőszobában az integrált szagelszívós wc, és a luxus kategóriájú burkolatok. A földszinten padlófűtéssel, az emeleten radiátorokkal megoldott a kondenzációs kazánnal működő fűtés. A lakás a hőszigetelő ablakok mellett 15 centis hőszigetelő rendszerrel ellátott, így kedvező rezsire számíthat az új tulajdonos. A kertkapcsolatos lakás lehetőséget nyújt arra, hogy a szabadban is eltölthessen időt, miközben az automata öntözőrendszer gondoskodik a növények ápolásáról. A ház földszinti része akadálymentesített, így mindenki számára könnyen megközelíthető. A kertben a közös használatú terek mellett helyet kapott egy kis előkert, mely lekeríthető, és minden lakáshoz tartozik egy garázs, és egy autóbeálló. A teljesen intim közös belső udvarba távirányítós kapun jutunk be. A környék ellátottsága kiváló, hiszen a közeli boltok, éttermek és szolgáltatások mindössze pár perc sétára találhatók. A központi elhelyezkedésnek köszönhetően a közlekedés is kitűnő, hiszen a helyi buszjáratok és hévmegálló is 2 perces sétatávolságon belül található, így a város többi része gyorsan és kényelmesen megközelíthető. Soroksár legbiztonságosabb környéke ideális választás családok és fiatalok számára egyaránt, akik szeretnék élvezni a városi élet előnyeit, miközben a természet közelsége is biztosított. Ez a tehermentes ingatlan remek lehetőséget kínál mindazok számára, akik saját otthonra vágynak vagy befektetési céllal keresnek ingatlant. Ne habozzon, hiszen az ilyen lehetőségek gyorsan elkelnek! Amennyiben további kérdései lennének, vagy szeretné megtekinteni az ingatlant, bizalommal fordulhat hozzám. A teljeskörű felújítás a napokban elkészül, az ingatlan 1 hónapon belül költözhető. A konyhabútort a vevő a saját ízlése szerint választhatja, mert azt nem tartalmazza az ingatlan. Rugalmasan mutatom, szinte bármikor!
Egyedi igényekre szabott lakáshitelekkel állunk rendelkezésére.
Bankfüggetlen Hitelcentrumunk az országban elérhető összes bank és hitelintézet ajánlatát versenyezteti az Ön számára díjmentesen.
Munkatársaink nagy szakmai tapasztalattal, teljes körű CSOK PLUSZ és OTTHON START PROGRAM ügyintézéssel várják Önt előre egyeztetett időpontban akár a normál munkaidő után is.
Az ingatlan alapterülete 117 nm, amely három tágas szobát és két fürdőszobát foglal magában, így bőven elegendő helyet biztosít a kényelmes életvitelhez. A házhoz tartozik egy 10 nm-es terasz, ahol élvezheti a reggeli kávéját vagy a nyári estéket, miközben a rendezett kert szépségét csodálja. Az ingatlan prémium kivitelezéssel készült, minden részletre figyelmet fordítva, beleértve az összes helységben klíma előkészítést, 3 rétegű zajszűrős ablakokat, integrált szúnyoghálókat és a motoros alumínium redőnyöket, amelyek nemcsak a kényelmet, hanem a biztonságot is garantálják. Extra a fürdőszobában az integrált szagelszívós wc, és a luxus kategóriájú burkolatok. A földszinten padlófűtéssel, az emeleten radiátorokkal megoldott a kondenzációs kazánnal működő fűtés. A lakás a hőszigetelő ablakok mellett 15 centis hőszigetelő rendszerrel ellátott, így kedvező rezsire számíthat az új tulajdonos. A kertkapcsolatos lakás lehetőséget nyújt arra, hogy a szabadban is eltölthessen időt, miközben az automata öntözőrendszer gondoskodik a növények ápolásáról. A ház földszinti része akadálymentesített, így mindenki számára könnyen megközelíthető. A kertben a közös használatú terek mellett helyet kapott egy kis előkert, mely lekeríthető, és minden lakáshoz tartozik egy garázs, és egy autóbeálló. A teljesen intim közös belső udvarba távirányítós kapun jutunk be. A környék ellátottsága kiváló, hiszen a közeli boltok, éttermek és szolgáltatások mindössze pár perc sétára találhatók. A központi elhelyezkedésnek köszönhetően a közlekedés is kitűnő, hiszen a helyi buszjáratok és hévmegálló is 2 perces sétatávolságon belül található, így a város többi része gyorsan és kényelmesen megközelíthető. Soroksár legbiztonságosabb környéke ideális választás családok és fiatalok számára egyaránt, akik szeretnék élvezni a városi élet előnyeit, miközben a természet közelsége is biztosított. Ez a tehermentes ingatlan remek lehetőséget kínál mindazok számára, akik saját otthonra vágynak vagy befektetési céllal keresnek ingatlant. Ne habozzon, hiszen az ilyen lehetőségek gyorsan elkelnek! Amennyiben további kérdései lennének, vagy szeretné megtekinteni az ingatlant, bizalommal fordulhat hozzám. A teljeskörű felújítás a napokban elkészül, az ingatlan 1 hónapon belül költözhető. A konyhabútort a vevő a saját ízlése szerint választhatja, mert azt nem tartalmazza az ingatlan. Rugalmasan mutatom, szinte bármikor!
Regisztrációs szám
H511237
Az ingatlan adatai
Értékesités
eladó
Jogi státusz
használt
Jelleg
ház
Építési mód
tégla
Méret
117 m²
Bruttó méret
146 m²
Telek méret
694 m²
Terasz / erkély mérete
10 m²
Kert méret
20 m²
Fűtés
Gáz cirkó
Belmagasság
270 cm
Lakáson belüli szintszám
2
Tájolás
Dél
Állapot
Kiváló
Homlokzat állapota
Kiváló
Környék
központi
Építés éve
1960
Fürdőszobák száma
2
Társaház kert
igen
Garázs
Benne van az árban
Garázs férőhely
1
Víz
Van
Gáz
Van
Villany
Van
Csatorna
Van
Tároló
Önálló
Helyiségek
előszoba
11 m²
előszoba
5.6 m²
nappali-konyha
36 m²
fürdőszoba-wc
5.5 m²
lépcsőház
1.1 m²
lépcsőház
3 m²
közlekedő
7.8 m²
szoba
21 m²
szoba
17 m²
fürdőszoba-wc
9.3 m²
Térmegi László
Hitelszakértő