Elérhető Otthon Start hitellel
Eladó panel lakás,
H510603
Budapest XX. kerület, Erzsébetfalva
62 900 000 Ft
165 000 €
- 68m²
- 3 szoba
- 6. emelet
PIACSÖPRŐ ÁR! 62.9 M Ft – Panorámás, 3 Szobás Lakás Kiváló Lokációval
Versenyképes Ár: CSAK 925.000 Ft/nm – Ne maradjon le róla!
Keres egy stabil, értékálló otthont, ahol a kényelem találkozik a kiváló elhelyezkedéssel? Most megtalálta azt a ritka lehetőséget, ami piaci ár alatt szerezhető meg!
Pesterzsébet legkeresettebb részén, az Ady Endre utcában kínáljuk eladásra ezt a rendkívül praktikus elosztású, 68 nm-es, 3 szobás lakást. Ideális választás, ha előre tervezhető otthont keres!
AZ INGATLAN FŐBB JELLEMZŐI:
ÁR: 62.900.000 Ft (A környékhez képest kimagaslóan kedvező négyzetméterár!)
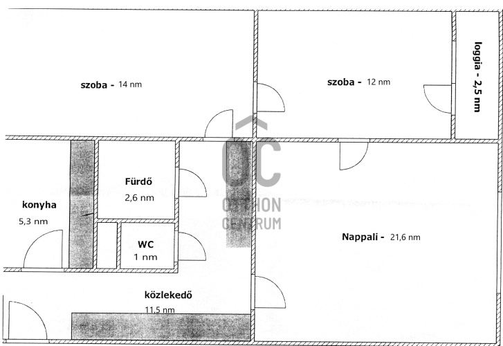
Méret és Elrendezés: 68 nm-es, nappali + 2 KÜLÖN BEJÁRATÚ SZOBÁVAL rendelkezik (14 nm-es és 12 nm-es hálók).
Állapot: Abszolút lakható! Nem igényel azonnali felújítást.
Elhelyezkedés: 6. emelet, melynek köszönhetően gyönyörű, szép panorámát élvezhet a lakás DNy-i tájolásának hála.
Erkély: Hangulatos, 2,5 nm-es erkély a pihenéshez.
Konyha: Külön, ablakos konyha van beépített mosogatógéppel – modern kényelem!
Fűtés: Gazdaságos központi fűtés lapradiátoros hőleadással.
Nyílászárók: Korszerű műanyag nyílászárók vannak beépítve.
A TÁRSASHÁZ ÉS KÖRNYÉK ELŐNYEI:
Felújított Lift: A kényelmes feljutásért egy frissen felújított lift gondoskodik.
Kiváló Infrastruktúra: Az Ady Endre utca garantálja a maximális kényelmet. Minden szolgáltatás (boltok, posta, gyógyszertár, tömegközlekedés) a ház közvetlen közelében elérhető.
Tervezhetőség: Ideális vevő, ha előre szeret tervezni! A birtokbaadás 3 hónap múlva lehetséges.
Ne habozzon! Egy ilyen kedvező áron kínált, 3 szobás lakás, ilyen lokációval és panorámával, garantáltan nagyon gyorsan elkél.
Hívjon MOST, és biztosítsa be a lakás megtekintését!
Keres egy stabil, értékálló otthont, ahol a kényelem találkozik a kiváló elhelyezkedéssel? Most megtalálta azt a ritka lehetőséget, ami piaci ár alatt szerezhető meg!
Pesterzsébet legkeresettebb részén, az Ady Endre utcában kínáljuk eladásra ezt a rendkívül praktikus elosztású, 68 nm-es, 3 szobás lakást. Ideális választás, ha előre tervezhető otthont keres!
AZ INGATLAN FŐBB JELLEMZŐI:
ÁR: 62.900.000 Ft (A környékhez képest kimagaslóan kedvező négyzetméterár!)
Méret és Elrendezés: 68 nm-es, nappali + 2 KÜLÖN BEJÁRATÚ SZOBÁVAL rendelkezik (14 nm-es és 12 nm-es hálók).
Állapot: Abszolút lakható! Nem igényel azonnali felújítást.
Elhelyezkedés: 6. emelet, melynek köszönhetően gyönyörű, szép panorámát élvezhet a lakás DNy-i tájolásának hála.
Erkély: Hangulatos, 2,5 nm-es erkély a pihenéshez.
Konyha: Külön, ablakos konyha van beépített mosogatógéppel – modern kényelem!
Fűtés: Gazdaságos központi fűtés lapradiátoros hőleadással.
Nyílászárók: Korszerű műanyag nyílászárók vannak beépítve.
A TÁRSASHÁZ ÉS KÖRNYÉK ELŐNYEI:
Felújított Lift: A kényelmes feljutásért egy frissen felújított lift gondoskodik.
Kiváló Infrastruktúra: Az Ady Endre utca garantálja a maximális kényelmet. Minden szolgáltatás (boltok, posta, gyógyszertár, tömegközlekedés) a ház közvetlen közelében elérhető.
Tervezhetőség: Ideális vevő, ha előre szeret tervezni! A birtokbaadás 3 hónap múlva lehetséges.
Ne habozzon! Egy ilyen kedvező áron kínált, 3 szobás lakás, ilyen lokációval és panorámával, garantáltan nagyon gyorsan elkél.
Hívjon MOST, és biztosítsa be a lakás megtekintését!
Regisztrációs szám
H510603
Az ingatlan adatai
Értékesités
eladó
Jogi státusz
használt
Jelleg
lakás
Építési mód
panel
Méret
68 m²
Bruttó méret
68 m²
Terasz / erkély mérete
2,5 m²
Fűtés
távfűtés
Belmagasság
270 cm
Tájolás
Dél-nyugat
Panoráma
városi panoráma
Lépcsőház típusa
zárt lépcsőház
Állapot
Átlagos
Homlokzat állapota
Jó
Lépcsőház állapota
Jó
Környék
csendes, jó közlekedés, zöld, központi
Építés éve
1980
Fürdőszobák száma
1
Fekvés
utcai
Közös költség
25260
Víz
Van
Gáz
Van
Villany
Van
Csatorna
Van
Lift
van
Helyiségek
közlekedő
11.5 m²
konyha
5.3 m²
wc
1 m²
fürdőszoba
2.6 m²
hálószoba
14 m²
hálószoba
12 m²
nappali
21.6 m²
erkély
2.5 m²