1 375 000 000 Ft
3 610 000 €
- 476,7m²
- 6 szoba
Villa-Style Family Home in the Buda Hills (District XII)
Classic Elegance, a Distinctive Arrival, Generous Spaces. Welcome Home.
SHORT OVERVIEW
Located in Budapest’s District XII, on Mátyás Király Road, this 476 sqm classical villa-style family home stands on a 2156 sqm plot. Built in 2006, the property underwent a comprehensive renovation in 2015, including renewed flooring and heating modernisation. The house has a southeast orientation, features plastic-framed windows, and is heated by a gas boiler with underfloor heating.
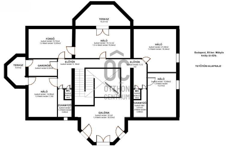
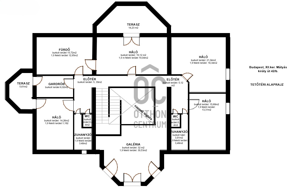
The ground floor hosts a gallery-like living room with a fully functioning wood-burning fireplace, a dining area, a separate kitchen and a club room; the upper level includes four bedrooms and two bathrooms; and the lower level offers a double garage, storage rooms and a wellness area.
Bright, spacious interiors and classical proportions create an elegant, well-organised living environment on one of Svábhegy’s most prestigious streets.
LOCATION
The villa is situated on Mátyás Király Road, one of the most refined streets in Budapest’s District XII, where the classic atmosphere of the Hegyvidék villa quarter meets complete urban infrastructure. The surroundings are defined by stately, large-plot family residences, mature trees and carefully tended gardens — this is a neighbourhood where tranquillity is naturally part of everyday life.
Just minutes away lies the full range of services offered along Böszörményi Road: bakeries, cafés, restaurants, pharmacies and small supermarkets. The nearby Hegyvidék Shopping Center provides further convenience with premium shops, dining options and everyday amenities. Schools, kindergartens and sports facilities — such as MOM Sport, Városmajor Park, and the year-round recreational area of Normafa — make daily life particularly comfortable.
Public transport is excellent: several bus lines connect directly to Széll Kálmán Square, Déli Railway Station and the city centre, making car-free mobility effortless. By car, key junctions and downtown Budapest are reachable within 10–15 minutes.
The Mátyás Király Road area offers a rare combination of quiet, green and secure surroundings with exceptional everyday convenience — a balance that has made this part of Hegyvidék one of the district’s most sought-after residential neighbourhoods.
THE BUILDING & THE GARDEN
The façade of the villa immediately reflects the character of classic Buda Hills architecture: a wide stone staircase, arched windows and a gracefully balanced balcony create an impression that blends the spirit of historic villas with the clean, contemporary appearance expected today. Light exterior tones and the sculpted roofline give the house an elegant yet effortless form, allowing it to settle naturally among the surrounding greenery.
The garden is one of the property’s most attractive features: mature vegetation, layered canopies and carefully created terraces make the outdoor space liveable and varied throughout the year. The large terrace at the rear connects to the garden at multiple points, allowing the indoor living area to extend naturally outdoors. The arrangement of the plants and the shaded trees offer gentle privacy, while the southeast orientation floods the garden with morning and late-morning light.
Symmetrical pathways, a well-proportioned front garden and a clean structural layout reinforce the villa’s suitability not only as a family home but also as a representative residence. The generous plot is well utilised and balanced in proportion, providing a perfect backdrop for the home’s spacious interior — the living room, terraces and upper-level balcony alike.
Together, the exterior and interior spaces form a harmonious whole in which architectural elegance and natural softness remain in constant dialogue.
INTERIOR ATMOSPHERE
The interior of the villa is defined by the generous use of light and classical detailing. From the entrance hall, the refined marble flooring and curved staircase hint at the openness of the gallery-like living room. Arched windows allow daylight to spill across the living area, while the wood-burning fireplace serves as a quiet, grounding focal point. From here, the house extends in several directions: the club room with its deeper tones on one side, the dining room and separate kitchen on the other.
The kitchen’s clean design balances function and aesthetics; the long work surfaces and garden-facing windows create a calm, practical environment, further extended by the dining area’s connection to the garden. Movement across the ground floor is organic — transitions between rooms are subtle, following the natural rhythm of daily life.
The staircase, adorned with wrought-iron detailing, leads to the gallery above, which frames the living room’s height. The semicircular landing is one of the villa’s most exceptional spaces: natural light circles the area and creates a timeless atmosphere suitable for relaxation or reading. The four bedrooms open from this central point, each with its own proportions and mood yet unified by a soft, understated colour palette.
The bathrooms feature elegant materials and thoughtful layouts, with double vanities and separate bath-and-shower arrangements that provide modern comfort. Natural light plays an important role here as well, with roof openings creating a calm, streamlined feel.
The lower level holds the practical yet intimate side of the home: a double garage with radiator heating, storage areas and a wellness section equipped with infrared and Finnish saunas. This floor serves as a peaceful counterbalance to the openness of the ground floor and the privacy of the upper level.
SUMMARY & RECOMMENDATION
This remarkable property is ideal for those seeking a home where classical proportions, refined surroundings and generous interior spaces form a natural, harmonious unity. It appeals to families who value bright, spacious rooms, well-structured layouts and the calm, elevated atmosphere of the Buda Hills — all while maintaining excellent urban access.
VIEWING
If you would like to experience the atmosphere of this villa in person,
I would be pleased to arrange a private viewing at your convenience.
---------------------------------------------
ADDITIONAL SERVICES
We provide complimentary, bank-independent mortgage advisory services to support buyers in making the most advantageous financial decisions.
Optional additional services — including legal support, energy certification and electrical safety inspections — ensure comprehensive professional guidance throughout every step of the purchase process.
----------------------------------------------
All information provided in this listing is for general guidance only. We reserve the right to make changes and do not accept responsibility for inaccuracies or technical errors.
SHORT OVERVIEW
Located in Budapest’s District XII, on Mátyás Király Road, this 476 sqm classical villa-style family home stands on a 2156 sqm plot. Built in 2006, the property underwent a comprehensive renovation in 2015, including renewed flooring and heating modernisation. The house has a southeast orientation, features plastic-framed windows, and is heated by a gas boiler with underfloor heating.
The ground floor hosts a gallery-like living room with a fully functioning wood-burning fireplace, a dining area, a separate kitchen and a club room; the upper level includes four bedrooms and two bathrooms; and the lower level offers a double garage, storage rooms and a wellness area.
Bright, spacious interiors and classical proportions create an elegant, well-organised living environment on one of Svábhegy’s most prestigious streets.
LOCATION
The villa is situated on Mátyás Király Road, one of the most refined streets in Budapest’s District XII, where the classic atmosphere of the Hegyvidék villa quarter meets complete urban infrastructure. The surroundings are defined by stately, large-plot family residences, mature trees and carefully tended gardens — this is a neighbourhood where tranquillity is naturally part of everyday life.
Just minutes away lies the full range of services offered along Böszörményi Road: bakeries, cafés, restaurants, pharmacies and small supermarkets. The nearby Hegyvidék Shopping Center provides further convenience with premium shops, dining options and everyday amenities. Schools, kindergartens and sports facilities — such as MOM Sport, Városmajor Park, and the year-round recreational area of Normafa — make daily life particularly comfortable.
Public transport is excellent: several bus lines connect directly to Széll Kálmán Square, Déli Railway Station and the city centre, making car-free mobility effortless. By car, key junctions and downtown Budapest are reachable within 10–15 minutes.
The Mátyás Király Road area offers a rare combination of quiet, green and secure surroundings with exceptional everyday convenience — a balance that has made this part of Hegyvidék one of the district’s most sought-after residential neighbourhoods.
THE BUILDING & THE GARDEN
The façade of the villa immediately reflects the character of classic Buda Hills architecture: a wide stone staircase, arched windows and a gracefully balanced balcony create an impression that blends the spirit of historic villas with the clean, contemporary appearance expected today. Light exterior tones and the sculpted roofline give the house an elegant yet effortless form, allowing it to settle naturally among the surrounding greenery.
The garden is one of the property’s most attractive features: mature vegetation, layered canopies and carefully created terraces make the outdoor space liveable and varied throughout the year. The large terrace at the rear connects to the garden at multiple points, allowing the indoor living area to extend naturally outdoors. The arrangement of the plants and the shaded trees offer gentle privacy, while the southeast orientation floods the garden with morning and late-morning light.
Symmetrical pathways, a well-proportioned front garden and a clean structural layout reinforce the villa’s suitability not only as a family home but also as a representative residence. The generous plot is well utilised and balanced in proportion, providing a perfect backdrop for the home’s spacious interior — the living room, terraces and upper-level balcony alike.
Together, the exterior and interior spaces form a harmonious whole in which architectural elegance and natural softness remain in constant dialogue.
INTERIOR ATMOSPHERE
The interior of the villa is defined by the generous use of light and classical detailing. From the entrance hall, the refined marble flooring and curved staircase hint at the openness of the gallery-like living room. Arched windows allow daylight to spill across the living area, while the wood-burning fireplace serves as a quiet, grounding focal point. From here, the house extends in several directions: the club room with its deeper tones on one side, the dining room and separate kitchen on the other.
The kitchen’s clean design balances function and aesthetics; the long work surfaces and garden-facing windows create a calm, practical environment, further extended by the dining area’s connection to the garden. Movement across the ground floor is organic — transitions between rooms are subtle, following the natural rhythm of daily life.
The staircase, adorned with wrought-iron detailing, leads to the gallery above, which frames the living room’s height. The semicircular landing is one of the villa’s most exceptional spaces: natural light circles the area and creates a timeless atmosphere suitable for relaxation or reading. The four bedrooms open from this central point, each with its own proportions and mood yet unified by a soft, understated colour palette.
The bathrooms feature elegant materials and thoughtful layouts, with double vanities and separate bath-and-shower arrangements that provide modern comfort. Natural light plays an important role here as well, with roof openings creating a calm, streamlined feel.
The lower level holds the practical yet intimate side of the home: a double garage with radiator heating, storage areas and a wellness section equipped with infrared and Finnish saunas. This floor serves as a peaceful counterbalance to the openness of the ground floor and the privacy of the upper level.
SUMMARY & RECOMMENDATION
This remarkable property is ideal for those seeking a home where classical proportions, refined surroundings and generous interior spaces form a natural, harmonious unity. It appeals to families who value bright, spacious rooms, well-structured layouts and the calm, elevated atmosphere of the Buda Hills — all while maintaining excellent urban access.
VIEWING
If you would like to experience the atmosphere of this villa in person,
I would be pleased to arrange a private viewing at your convenience.
---------------------------------------------
ADDITIONAL SERVICES
We provide complimentary, bank-independent mortgage advisory services to support buyers in making the most advantageous financial decisions.
Optional additional services — including legal support, energy certification and electrical safety inspections — ensure comprehensive professional guidance throughout every step of the purchase process.
----------------------------------------------
All information provided in this listing is for general guidance only. We reserve the right to make changes and do not accept responsibility for inaccuracies or technical errors.
Regisztrációs szám
H509980
Az ingatlan adatai
Értékesités
eladó
Jogi státusz
használt
Jelleg
ház
Építési mód
tégla
Méret
476,7 m²
Bruttó méret
494,8 m²
Telek méret
2 156 m²
Terasz / erkély mérete
19,8 m²
Fűtés
Gáz cirkó
Belmagasság
300 cm
Lakáson belüli szintszám
3
Tájolás
Dél-kelet
Állapot
Jó
Homlokzat állapota
Jó
Környék
csendes, zöld
Építés éve
2006
Fürdőszobák száma
4
Garázs férőhely
2
Víz
Van
Gáz
Van
Villany
Van
Csatorna
Van
Tároló
Önálló
Helyiségek
hálószoba
14.26 m²
gardrób
6.02 m²
zuhanyzó
3.81 m²
galéria
32 m²
előszoba
10.51 m²
hálószoba
15.68 m²
hálószoba
21.04 m²
hálószoba
19.12 m²
fürdőszoba-wc
15.72 m²
egyéb helyiség
47.85 m²
nappali
58.73 m²
előszoba
13.11 m²
gardrób
1.47 m²
konyha
14.73 m²
ebédlő
27.13 m²
wc
1.24 m²
konditerem
53.56 m²
zuhanyzó
4.74 m²
tároló
8.19 m²
garázs
47.99 m²
kazánház
17.27 m²
egyéb helyiség
37.37 m²
mosókonyha
6.09 m²
szárító
12.88 m²
terasz
19.84 m²
Tóth Róbert
Hitelszakértő