Elérhető Otthon Start hitellel
Eladó családi ház,
H509734
Nagykőrös
37 900 000 Ft
101 000 €
- 140m²
- 3 szoba
Felújítandó polgári stílusú családi ház élhető, nagy terekkel
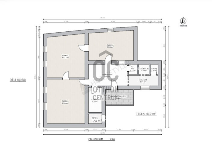
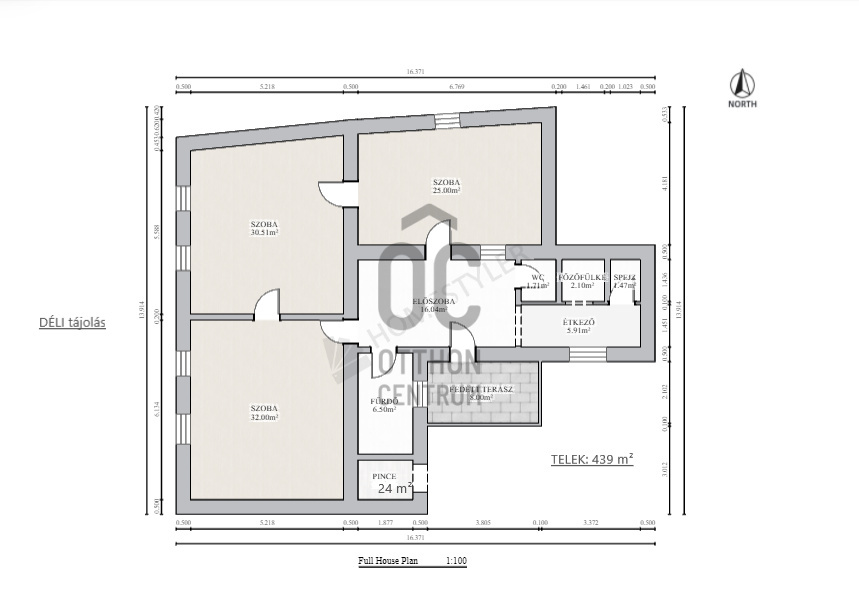
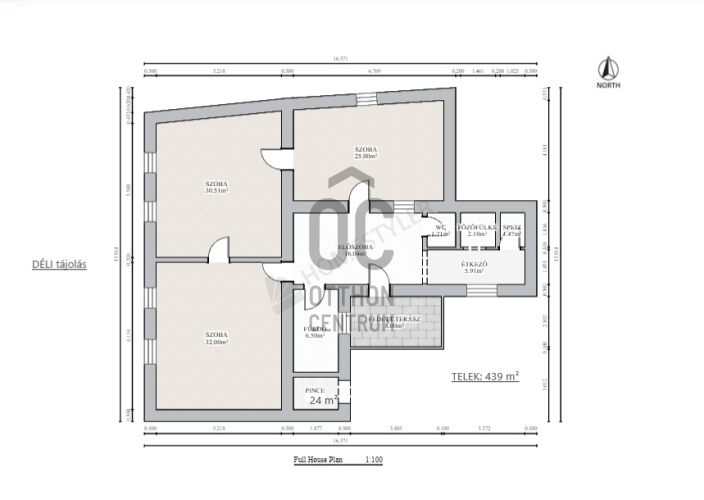
A három szobás családi ház egy 439 m², összközműves sarok telken helyezkedik el.
Az ingatlan polgári stílusban épült, az építés éve feltehetőleg az 1930-as évekre tehető.
A családi ház Nagykőrösön egy átmenő forgalomtól mentes, csendes, egyirányú utcában helyezkedik el.
Ez a tehermentes ingatlan kiváló lehetőség azoknak, akik kedvelik, értékelik a régi épületek varázsát.
A grandiózus tető tökéletes gerenda rendszerrel rendelkezik.
Patinás homlokzata normál, tetőszerkezete korához képest jó állapotú.
Fűthető hasznos alapterülete 140 m², kialakításának köszönhetően belülről körbe járható, és egy bejárattal rendelkezik.
A polgári stílusban épült ház utcafronti lakó egységében kettő nagyobb szoba, délre néző nappali, konyha, spejz, fürdőszoba külön WC helyiséggel valamint egy előszoba került kialakításra.
A 32 m² tágas nappali világos és barátságos légkört teremt, míg a 30.50 m² és a 25 m² szoba tökéletes helyszínt nyújt a pihenésre és a kikapcsolódásra.
Sajátos hangulatot áraszt, főként a nagyméretű ablakainak, a galériák kialakítására is elegendő 380 cm belmagasságnak, valamint egyedi elrendezésének köszönhetően.
Stílusos nagy méretű, jó állapotú beltéri ajtók és ablakok jellemzik az ingatlant, a nyílászárók fa szerkezetűek.
A nappaliban és a szobákban hajópadló, míg a többi helyiség járólappal borított.
Az előszoba álmenyezetet kapott, ez által csökkentve az eredeti belmagasságot.
A nyári napokon az 50 cm vastag főfalak biztosítják a kellemes, elviselhetőbb közérzetet, télen pedig lapradiátorok adják a meleget.
A ház fűtése központi rendszerű, lapradiátoros, mely egy régi, jó állapotú Heidi kazánról működtethető.
Opcionálisan működőképes CSERÉPKÁLYHA gondoskodik a három szoba kellemes hangulatáról.
A gépjármű részére egyférőhelyes 25 m² fedett GARÁZS biztosít helyet, mellette kialakításra került még kettő kisebb tároló.
Az épület elhelyezkedése, és elrendezése miatt sokoldalúan hasznosítható.
A garázs mellett egyéb tárolók kerültek kialakításra.
VÉTELÁR RÉSZÉT KÉPEZI
Igény szerint a bútorok a vételár részét képezhetik.
LOKÁCIÓ
A csendes, felkapott környék ideális választás családok számára, akik szeretnék élvezni a városi élet előnyeit, miközben megőrzik a nyugalmat és a biztonságot.
Ez a tehermentes ingatlan tökéletes lehetőség mindazok számára, akik egy világos, tágas házra vágynak, ahol a modern élet minden kényelmét megtalálják.
A környék infrastruktúrája kiváló, az ingatlan a piachoz közel található, a fontosabb intézmények, gyógyszertár, és üzletek pár perc kényelmes sétára elérhetőek.
Tökéletes otthona lehet gyerekes családoknak az iskola, óvoda közelsége miatt, hiszen az intézmények 1500 méterre helyezkednek el, gyalogosan, kényelmesen 2 perc sétára elérhetőek.
A hirdetésben szereplő információk a megbízótól kapott adatok alapján készültek, pontosságukért
felelősséget nem vállalunk!
Irodánkban teljes körű ügyintézéssel, ingyenes és bankfüggetlen hitel közvetítéssel várjuk!
#Nagykőrös #háromszoba #vegyesfalazat #garázs #cserépkályha
Az ingatlan polgári stílusban épült, az építés éve feltehetőleg az 1930-as évekre tehető.
A családi ház Nagykőrösön egy átmenő forgalomtól mentes, csendes, egyirányú utcában helyezkedik el.
Ez a tehermentes ingatlan kiváló lehetőség azoknak, akik kedvelik, értékelik a régi épületek varázsát.
A grandiózus tető tökéletes gerenda rendszerrel rendelkezik.
Patinás homlokzata normál, tetőszerkezete korához képest jó állapotú.
Fűthető hasznos alapterülete 140 m², kialakításának köszönhetően belülről körbe járható, és egy bejárattal rendelkezik.
A polgári stílusban épült ház utcafronti lakó egységében kettő nagyobb szoba, délre néző nappali, konyha, spejz, fürdőszoba külön WC helyiséggel valamint egy előszoba került kialakításra.
A 32 m² tágas nappali világos és barátságos légkört teremt, míg a 30.50 m² és a 25 m² szoba tökéletes helyszínt nyújt a pihenésre és a kikapcsolódásra.
Sajátos hangulatot áraszt, főként a nagyméretű ablakainak, a galériák kialakítására is elegendő 380 cm belmagasságnak, valamint egyedi elrendezésének köszönhetően.
Stílusos nagy méretű, jó állapotú beltéri ajtók és ablakok jellemzik az ingatlant, a nyílászárók fa szerkezetűek.
A nappaliban és a szobákban hajópadló, míg a többi helyiség járólappal borított.
Az előszoba álmenyezetet kapott, ez által csökkentve az eredeti belmagasságot.
A nyári napokon az 50 cm vastag főfalak biztosítják a kellemes, elviselhetőbb közérzetet, télen pedig lapradiátorok adják a meleget.
A ház fűtése központi rendszerű, lapradiátoros, mely egy régi, jó állapotú Heidi kazánról működtethető.
Opcionálisan működőképes CSERÉPKÁLYHA gondoskodik a három szoba kellemes hangulatáról.
A gépjármű részére egyférőhelyes 25 m² fedett GARÁZS biztosít helyet, mellette kialakításra került még kettő kisebb tároló.
Az épület elhelyezkedése, és elrendezése miatt sokoldalúan hasznosítható.
A garázs mellett egyéb tárolók kerültek kialakításra.
VÉTELÁR RÉSZÉT KÉPEZI
Igény szerint a bútorok a vételár részét képezhetik.
LOKÁCIÓ
A csendes, felkapott környék ideális választás családok számára, akik szeretnék élvezni a városi élet előnyeit, miközben megőrzik a nyugalmat és a biztonságot.
Ez a tehermentes ingatlan tökéletes lehetőség mindazok számára, akik egy világos, tágas házra vágynak, ahol a modern élet minden kényelmét megtalálják.
A környék infrastruktúrája kiváló, az ingatlan a piachoz közel található, a fontosabb intézmények, gyógyszertár, és üzletek pár perc kényelmes sétára elérhetőek.
Tökéletes otthona lehet gyerekes családoknak az iskola, óvoda közelsége miatt, hiszen az intézmények 1500 méterre helyezkednek el, gyalogosan, kényelmesen 2 perc sétára elérhetőek.
A hirdetésben szereplő információk a megbízótól kapott adatok alapján készültek, pontosságukért
felelősséget nem vállalunk!
Irodánkban teljes körű ügyintézéssel, ingyenes és bankfüggetlen hitel közvetítéssel várjuk!
#Nagykőrös #háromszoba #vegyesfalazat #garázs #cserépkályha
Regisztrációs szám
H509734
Az ingatlan adatai
Értékesités
eladó
Jogi státusz
használt
Jelleg
ház
Építési mód
vegyesfalazatú
Méret
140 m²
Bruttó méret
154 m²
Telek méret
439 m²
Terasz / erkély mérete
8 m²
Fűtés
gáz kazán
Belmagasság
370 cm
Tájolás
Dél
Állapot
Felújítandó
Homlokzat állapota
Átlagos
Pince
Önálló
Környék
csendes, jó közlekedés
Építés éve
1930
Fürdőszobák száma
1
Társaház kert
igen
Garázs
Benne van az árban
Garázs férőhely
1
Víz
Van
Gáz
Van
Villany
Van
Csatorna
Van
Tároló
Önálló
Helyiségek
előszoba
16 m²
szoba
30.5 m²
szoba
25 m²
szoba
32 m²
konyha
11.8 m²
előszoba
16 m²
fürdőszoba
6.5 m²
wc
1.4 m²
kamra
1.4 m²
pince
24 m²