Elérhető Otthon Start hitellel
Eladó ikerház, H509177
Budapest XVII. kerület, Rákosliget

96 900 000 Ft

256 000 €

  • 80m²
  • 2 szoba
Árgaranciával

Földszintes, felújított nagypolgári jellegű kertes ház nagy garázzsal, kiváló környéken eladó

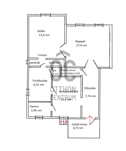
XVII. kerületben a méltán kedvelt Rákosligeten, csendes mellékutcában kínálunk megvásárlásra egy teljeskörűen felújított, FÖLDSZINTES kialakítású, nagypolgári jellegű kertes házat 480 nm-es parkosított telekkel, nagy garázzsal, ahol két autó egymás mellett kényelmesen parkolhat. A felújítás során kicserélték a nyílászárókat hőszigetelt üvegezésű műanyag ablakokra (redőny, szúnyogháló van), az elektromos hálózatot áthúzták, a vízcsöveket a fürdőszoba és a konyha felújításakor szintén cserélték. A homlokzat 10 cm-es dryvit szigetelést és új színezést kapott. A belső elosztás kényelmes és praktikus: a fedett teraszról nyílik a bejárat, a nagy előszobában bőven van hely gardróbszekrényeknek. Innen nyílik a világos, tágas konyha-étkező beépített újszerű bútorzattal, mely a vételár részét képezi. A nagy méretű kamrában van a villanybojler. A fürdőszobában épített zuhanykabin kapott helyet, igény esetén egy sarokkád is elfér. Külön helyiségben található a wc. A tágas nappaliban egy klíma is beépítésre került. A hálószobából le lett választva egy gardrób, így sok tárolási lehetőség van a házban. Szépek a burkolatok, szaniterek, a konyhabútor, a szobákban kiváló állapotú a fa parketta, a belső ajtók elegáns, dupla szárnyas nagypolgári ajtók. A lakás alatt van egy pince, mely két helyiségből áll, itt van lent a gázkazán és a vegyes tüzelésű kazán tartalék fűtésre. Mindkét helyiség ablakos, világos, tárolásra, konditeremnek is kiváló. A füvesített kertben több gyümölcsfa, díszfa is van, locsolási vízmérő van (nem kell csatorna díjat fizetni). A környék kiváló, csendes, rendezett lakóházakkal beépített. Buszmegálló, bevásárlási lehetőség, orvosi rendelő, gyógyszertár rövid sétával elérhető, vonatállomás is pár buszmegálló, innen a Keleti-pályaudvar 17 perc. Tehermentes ingatlan, szabadon hitelezhető.

Regisztrációs szám

H509177

Az ingatlan adatai

Értékesités
eladó
Jogi státusz
használt
Jelleg
ház
Építési mód
tégla
Méret
80 m²
Bruttó méret
115 m²
Telek méret
480 m²
Terasz / erkély mérete
8,7 m²
Kert méret
480 m²
Fűtés
Gáz cirkó
Belmagasság
320 cm
Tájolás
Dél
Állapot
Kiváló
Homlokzat állapota
Kiváló
Pince
Önálló
Építés éve
1968
Fürdőszobák száma
1
Társaház kert
igen
Garázs
Benne van az árban
Garázs férőhely
2
Víz
Van
Gáz
Van
Villany
Van
Csatorna
Van
Tároló
Önálló

Helyiségek

terasz
8.8 m²
előszoba
7.74 m²
konyha-étkező
11.1 m²
pince
26 m²
fürdőszoba
6.31 m²
kamra
3.42 m²
hálószoba
13.6 m²
nappali
27.4 m²
gardrób
6.44 m²
wc
1 m²
kamra
2.96 m²
Torday Tibor
Torday Tibor

Hitelszakértő

Irodánk kínálatából - XVII. kerület - Cinkotai út

for sale apartment

Index image
12

for sale apartment

Index image
data_sheet.details.realestate.section.main.otthonstart_flag.label
16

for sale panel apartment

Index image
data_sheet.details.realestate.section.main.otthonstart_flag.label
11

for sale panel apartment

Index image
data_sheet.details.realestate.section.main.otthonstart_flag.label
8

for sale apartment

Index image
43

for sale row house

Index image
data_sheet.details.realestate.section.main.otthonstart_flag.label
16

for sale family house

Index image
21

for sale family house

Index image
26

for sale row house

Index image
data_sheet.details.realestate.section.main.otthonstart_flag.label
14