Eladó családi ház, H508367
Szentendre, Pismány

298 000 000 Ft

759 000 €

  • 175m²
  • 4 szoba
Kiemelt megbízás

Szentendrén, a déli fekvésű Pismány hegy jól megközelíthető, középső részén található ez a panorámás, családi ház kültéri medencével.
Az ingatlan nagy gondossággal, minőségi anyagokból , saját részre épült. Az építőiparban jártas tulajdonosok beletették szívüket, lelküket.
Jelenleg a nappalin kívül három szoba van, de szükség esetén, könnyedén kialakíthatóak további hálószobák.
Ha szeretné magát megkímélni az építkezés hosszas, idegőrlő folyamatától és csak költözni szeretne egy minőségi otthonba, akkor melegen ajánlom ezt a házat.

Regisztrációs szám

H508367

Az ingatlan adatai

Értékesités
eladó
Jogi státusz
használt
Jelleg
ház
Építési mód
tégla
Méret
175 m²
Bruttó méret
230 m²
Telek méret
1 139 m²
Terasz / erkély mérete
44 m²
Fűtés
Gáz cirkó
Belmagasság
270 cm
Lakáson belüli szintszám
2
Tájolás
Dél
Panoráma
Zöldre néző panoráma
Állapot
Kiváló
Homlokzat állapota
Kiváló
Környék
csendes
Építés éve
2020
Fürdőszobák száma
3
Garázs férőhely
2
Víz
Van
Gáz
Van
Villany
Van
Csatorna
Van

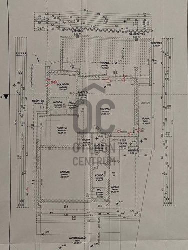
Helyiségek

nappali-étkező
37 m²
konyha
15 m²
dolgozószoba
10 m²
előszoba
8.5 m²
fürdőszoba
4.5 m²
háztartási helyiség
4 m²
garázs
37 m²
terasz
44 m²
hálószoba
14 m²
hálószoba
13 m²
gardrób
10.5 m²
fürdőszoba
8 m²
fürdőszoba
5 m²
közlekedő
6 m²
Korcsog Melinda
Korcsog Melinda

Hitelszakértő

Irodánk kínálatából - Szentendre - Dunakanyar körút

for sale family house

Index image
data_sheet.details.realestate.section.main.otthonstart_flag.label
26

for sale family house

Index image
data_sheet.details.realestate.section.main.otthonstart_flag.label
19

for sale semi-detached house

Index image
data_sheet.details.realestate.section.main.otthonstart_flag.label
23

for sale family house

Index image
20

eladó családi ház

Index image
Elérhető Otthon Start hitellel
16

for sale plot

Index image
11

for sale family house

Index image
8

for sale family house

Index image
data_sheet.details.realestate.section.main.otthonstart_flag.label
35

for sale vacation home

Index image
63

for sale plot

Index image
4

for sale commercial property

Index image
11