Elérhető Otthon Start hitellel
Eladó családi ház,
H507982
Budapest XVII. kerület, Rákosliget
94 900 000 Ft
243 000 €
- 90m²
- 3 szoba


















Igazi ritkaság Rákosligeten
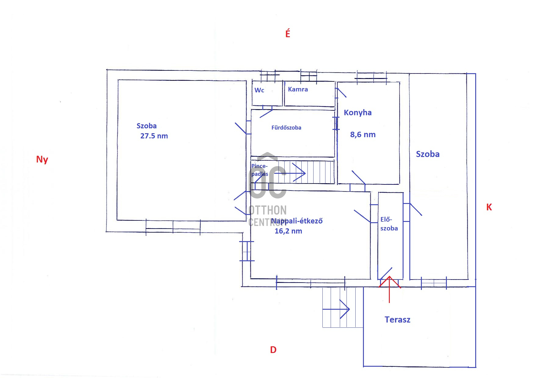
XVII. kerület kiemelt, egyik legjobb részén, Rákosligeten, ezen belül is a Régiakadémiatelepen kínálunk megvásárlásra egy szép 721 nm-es, kb. 25 méter széles telken álló nagypolgári házat. Ez az ingatlan több szempontból is különleges értéket képvisel: aki szeretné megőrizni ezt a nagypolgári jelleget, annak igazi kincs ez a lakóépület, elegáns, nagyvonalú ingatlant lehet belőle varázsolni egy teljeskörű felújítással. A házban két külön nyíló szoba, egy nappali-étkező, nagy konyha, kamra, fürdőszoba, előszoba, pince kapott helyet, a bejárat egy napos, kertre néző teraszról nyílik. A terasz alatt pince-tároló található.
Aki viszont kifejezetten jó környéken keres építési telket, annak is kiváló választás, mivel a kerületben üres telek jó környéken már nincs, a jelenlegi lakóépület lebontásával egy új ház épülhet. A telek szélessége lehetővé teszi egy földszintes lakóépület kialakítását is, a beépíthetősége 25%, a telek összközműves, déli tájolású.
A környék kifejezetten csendes, rendezett lakóházakkal beépített. Kiváló ellátottságú terület, tömegközlekedés a Gyöngytyúk, utcán, Ligetsoron, Ferihegyi úton, több buszjárat megállója pár perc sétára, vonat állomás szintén a közelben van. Továbbá iskola (Gregor általános iskola), óvoda, orvosi rendelő, bevásárlási lehetőségek (hentes, pék, SPAR) gyalog is kényelmesen elérhetők.
Az ingatlan üres, tehermentes, rövid időn belül birtokba vehető.
Aki viszont kifejezetten jó környéken keres építési telket, annak is kiváló választás, mivel a kerületben üres telek jó környéken már nincs, a jelenlegi lakóépület lebontásával egy új ház épülhet. A telek szélessége lehetővé teszi egy földszintes lakóépület kialakítását is, a beépíthetősége 25%, a telek összközműves, déli tájolású.
A környék kifejezetten csendes, rendezett lakóházakkal beépített. Kiváló ellátottságú terület, tömegközlekedés a Gyöngytyúk, utcán, Ligetsoron, Ferihegyi úton, több buszjárat megállója pár perc sétára, vonat állomás szintén a közelben van. Továbbá iskola (Gregor általános iskola), óvoda, orvosi rendelő, bevásárlási lehetőségek (hentes, pék, SPAR) gyalog is kényelmesen elérhetők.
Az ingatlan üres, tehermentes, rövid időn belül birtokba vehető.
Regisztrációs szám
H507982
Az ingatlan adatai
Értékesités
eladó
Jogi státusz
használt
Jelleg
ház
Építési mód
tégla
Méret
90 m²
Bruttó méret
100 m²
Telek méret
721 m²
Fűtés
gázkonvektor
Belmagasság
310 cm
Tájolás
Dél
Állapot
Felújítandó
Homlokzat állapota
Átlagos
Pince
Önálló
Környék
csendes, jó közlekedés, zöld
Építés éve
1936
Fürdőszobák száma
1
Víz
Van
Gáz
Van
Villany
Van
Csatorna
Van
Tároló
Önálló
Helyiségek
nappali
16 m²
szoba
20 m²
szoba
16 m²
konyha
8 m²

Torday Tibor
Hitelszakértő