Elérhető Otthon Start hitellel
Eladó családi ház, H507548
Gyál

67 900 000 Ft

175 000 €

  • 78,6m²
  • 4 szoba
Kiemelt megbízás

Azonnal költözhető, felújított családi ház Gyálon

• nettó 78 m2-es
• kétszintes
• nappali + 3 hálószoba (ebből egy a földszinten)
• új fürdőszoba (zuhanyzós és kádas is)
• új burkolatok
• új műanyag nyílászárók
• új tető
• új villanyvezetékek
• beépített LED lámpák
• fűtése: gázcirkó, alsó szinten padlófűtés, emeleten lapradiátor
• 2 db hűtő-fűtő klíma
• szigetelés 5 cm
• erkély
• szaletli
• melléképületek, tyúktartásra alkalmas hely
• szerelőaknás garázs
• fúrt kút
• összközműves

Regisztrációs szám

H507548

Az ingatlan adatai

Értékesités
eladó
Jogi státusz
használt
Jelleg
ház
Építési mód
tégla
Méret
78,6 m²
Bruttó méret
78,6 m²
Telek méret
509 m²
Terasz / erkély mérete
4 m²
Fűtés
Gáz cirkó
Belmagasság
240 cm
Lakáson belüli szintszám
1
Tájolás
Dél-kelet
Állapot
Átlagos
Homlokzat állapota
Átlagos
Építés éve
1992
Fürdőszobák száma
1
Társaház kert
igen
Garázs
Benne van az árban
Garázs férőhely
1
Víz
Van
Gáz
Van
Villany
Van
Csatorna
Van
Tároló
Önálló

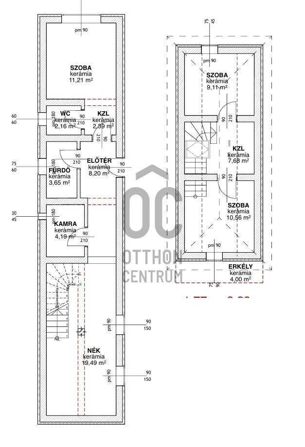
Helyiségek

nappali
19.49 m²
kamra
4.19 m²
fürdőszoba
3.65 m²
wc
2.16 m²
előszoba
8.2 m²
közlekedő
2.39 m²
hálószoba
11.21 m²
hálószoba
9.11 m²
közlekedő
7.68 m²
hálószoba
10.56 m²
Joó Krisztina
Joó Krisztina

Hitelszakértő

Irodánk kínálatából - Szigethalom

for sale family house

Index image
data_sheet.details.realestate.section.main.otthonstart_flag.label
14

for sale row house

Index image
data_sheet.details.realestate.section.main.otthonstart_flag.label
19

for sale panel apartment

Index image
data_sheet.details.realestate.section.main.otthonstart_flag.label
25

for sale new construction semi-detached house

Index image
19