230 000 000 Ft
592 000 €
- 220m²
- 5 szoba

































Szentendrén, kiválóan megközelíthető, gondozott, lakóparki környezetben található ez a tágas, világos, meleg, családias hangulatú otthon.
Az ingatlan lakóparkon belüli elhelyezkedése is kedvező, mivel szélső ház, viszonylag nagy telek tartozik hozzá, illetve van garázs is.
Az emeleti hálószobák mérete megengedné, hogy akár két szobát alakítsanak ki belőlük.
Olyan, akár többgyermekes családoknak ajánlanám, akiknek fontos a biztonság, illetve a gyerekek önálló közlekedése az otthonuk és az iskola között.
Az ingatlan lakóparkon belüli elhelyezkedése is kedvező, mivel szélső ház, viszonylag nagy telek tartozik hozzá, illetve van garázs is.
Az emeleti hálószobák mérete megengedné, hogy akár két szobát alakítsanak ki belőlük.
Olyan, akár többgyermekes családoknak ajánlanám, akiknek fontos a biztonság, illetve a gyerekek önálló közlekedése az otthonuk és az iskola között.
Regisztrációs szám
H506470
Az ingatlan adatai
Értékesités
eladó
Jogi státusz
használt
Jelleg
ház
Építési mód
tégla
Méret
220 m²
Bruttó méret
220 m²
Telek méret
344 m²
Terasz / erkély mérete
33 m²
Kert méret
344 m²
Fűtés
Gáz cirkó
Belmagasság
270 cm
Lakáson belüli szintszám
3
Tájolás
Dél-kelet
Állapot
Kiváló
Homlokzat állapota
Kiváló
Környék
csendes, jó közlekedés
Építés éve
2010
Fürdőszobák száma
3
Társaház kert
igen
Garázs férőhely
1
Víz
Van
Gáz
Van
Villany
Van
Csatorna
Van
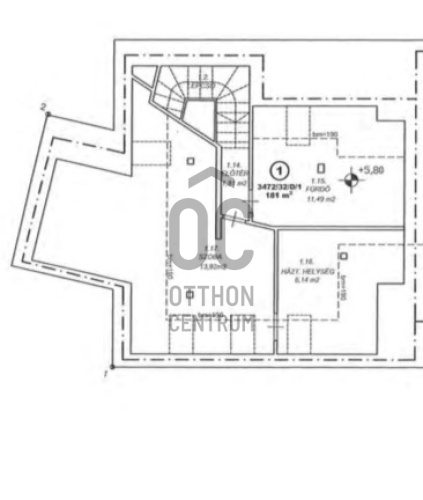
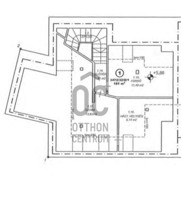
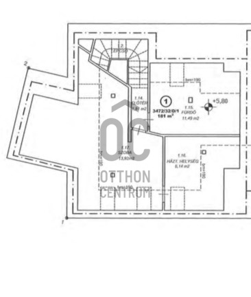
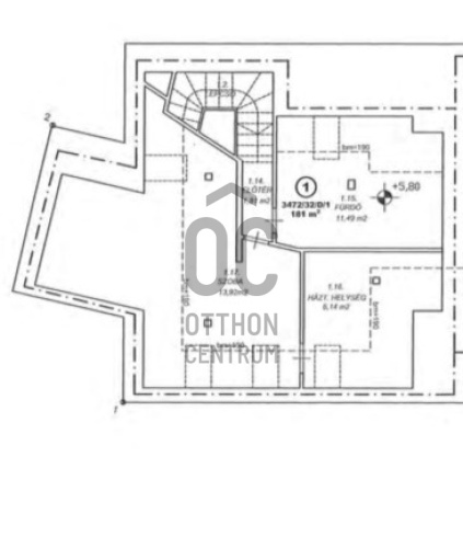
Helyiségek
nappali-étkező
37 m²
konyha
14 m²
előszoba
13 m²
zuhanyzó
4 m²
kamra
2 m²
garázs
17 m²
hálószoba
27 m²
hálószoba
19 m²
gardrób
6 m²
galéria
9 m²
fürdőszoba-wc
13 m²
erkély
8 m²
dolgozószoba
6 m²
hálószoba
14 m²
fürdőszoba-wc
12 m²

Korcsog Melinda
Hitelszakértő