Elérhető Otthon Start hitellel
                                        
                                    
                                                                Eladó tanya,
                                H506383
                            Szekszárd, Felsőváros
                            15 000 000 Ft
39 000 €
- 90m²
- 2 szoba
 
            
                                                             
            
                                                             
            
                                                             
            
                                                             
            
                                                             
            
                                                             
            
                                                             
            
                                                             
            
                                                             
            
                                                             
            
                                                             
            
                                                             
            
                                                             
            
                                                             
            
                                                            Eladó nagyobb méretű gazdasági épület
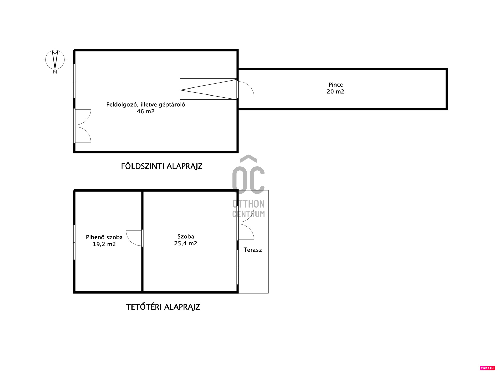
Szekszárdon a Kisbödő hegyen eladó 4120 m2-es telken 90 m2-es alapterületű ház (alsó szint 46 m2, felső szint 44 m2 bruttó).
A tanya tégla épület, 270 cm-es belmagasságú, ipari árammal ellátott.
Az esővizet 4 m3-es beton ciszternában tárolják, a terasz alatt.
Beton úton megközelíthető.
10 méter hosszú téglázott pince, és további 2 m földpince tartozik a gazdasági épülethez.
A területen bor szőlő és csemege szőlő is található, illetve a telek felső részén egy konyhakert is van.
A telek méretéből adódóan alkalmas annyi növény megtermelésére, ami egy család megélhetését tudja biztosítani.
A tanya alsó szintje garázsként is használható a nagyméretű kapunak, és az egyben 46 m2 alapterületnek.
Menjünk nézzük meg!
                    A tanya tégla épület, 270 cm-es belmagasságú, ipari árammal ellátott.
Az esővizet 4 m3-es beton ciszternában tárolják, a terasz alatt.
Beton úton megközelíthető.
10 méter hosszú téglázott pince, és további 2 m földpince tartozik a gazdasági épülethez.
A területen bor szőlő és csemege szőlő is található, illetve a telek felső részén egy konyhakert is van.
A telek méretéből adódóan alkalmas annyi növény megtermelésére, ami egy család megélhetését tudja biztosítani.
A tanya alsó szintje garázsként is használható a nagyméretű kapunak, és az egyben 46 m2 alapterületnek.
Menjünk nézzük meg!
Regisztrációs szám
H506383
                Az ingatlan adatai
Értékesités
                                        eladó
                                                                                                                                                Jogi státusz
                                        használt
                                                                                                                                                Jelleg
                                        ház
                                                                                                                                                                                                                                                                                        Építési mód
                                        tégla
                                                                                                                                                                                                                                                                                                                                                                                                                                                                                                    Méret
                                        90 m²
                                                                                                                                                Bruttó méret
                                        90 m²
                                                                                                                                                Telek méret
                                        4 120 m²
                                                                                                                                                                                                                                                                                                                                                                                                                                                                                                    Fűtés
                                        cserépkályha (vegyes)
                                                                                                                                                Belmagasság
                                        272 cm
                                                                                                                                                                                                                    Tájolás
                                        Kelet
                                                                                                                                                Panoráma
                                        Zöldre néző panoráma
                                                                                                                                                                                                                    Állapot
                                        Jó
                                                                                                                                                Homlokzat állapota
                                        Jó
                                                                                                                                                                                                                    Pince
                                        Önálló
                                                                                                                                                Környék
                                        csendes, jó közlekedés, zöld
                                                                                                                                                Építés éve
                                        1988
                                                                                                                                                                                                                                                                                                                                                                                                                                                                                                                                                                        Garázs férőhely
                                        2
                                                                                                                                                                                                                                                                                                                                                                                                                                Villany
                                        Van
                                                                                                                                                                                                                                                                                                                                                                                                                                                                                                                                                                                                                                                                Helyiségek
egyéb helyiség
                                        46 m²
                                                                            szoba
                                        19.2 m²
                                                                            szoba
                                        25.4 m²
                                                                     
            
                            Moczok Ágnes
Hitelszakértő
 
                    
                 
                         
                         
                         
                         
                         
                         
                         
                         
                         
                         
                         
                         
                         
                         
                         
                    
                 
                 
                 
                 
                 
                 
                 
                 
                 
                 
                 
                