Elérhető Otthon Start hitellel
Eladó családi ház,
H505705
Dány
79 900 000 Ft
205 000 €
- 90m²
- 3 szoba





















Berendezett, modern családi ház eladó Dányban
Dányban kínálunk megvásárlásra egy gyönyörűen felújított, földszintes önálló családi házat 1230 nm-es telekkel, kerti tóval, sütögetővel, hatalmas fedett terasszal, két autó számára fedett beállóval. A ház az utóbbi években műszakilag és esztétikailag fel lett újítva, komplett tető csere 2024-ben, fűtés korszerűsítés (kondenzációs kazán), elektromos hálózat, vízcsövek,. lefolyó csövek is cserélve lettek. Továbbá a nyílászárók, konyha, fürdőszoba, szaniterek és burkolatok is megújultak. Modern, esztétikus belső design jellemzi a házat. A nagy, fedett teraszról nyílik a bejárat, itt található egy előszoba pakolási lehetőséggel, majd a modern bútorral és gépekkel felszerelt konyha-étkező, kamra (alatta pince), egy szép zuhanyzós és kádas fürdőszoba, nagy hálószoba, teraszkapcsolatos nappali és még egy hálószoba, mely befejezésre vár (festés és burkolás van hátra, igény esetén a tulajdonos befejezi külön megállapodás alapján). A ház első része vegyes falazat, szigetelt alappal, a további részek tégla építésűek. A tégla részeken 20 cm dryvit szigetelés van, A tetőt Tondach cserép fedi. A teljes bútorzat a vételár részét képezi, tehermentes ingatlan, rövid időn belül birtokba vehető.
Regisztrációs szám
H505705
Az ingatlan adatai
Értékesités
eladó
Jogi státusz
használt
Jelleg
ház
Építési mód
tégla
Méret
90 m²
Bruttó méret
135 m²
Telek méret
1 230 m²
Terasz / erkély mérete
45 m²
Fűtés
Gáz cirkó
Belmagasság
280 cm
Tájolás
Dél
Állapot
Kiváló
Homlokzat állapota
Jó
Pince
Önálló
Környék
jó közlekedés, zöld
Építés éve
1960
Fürdőszobák száma
1
Fedett beállók száma
2
Víz
Van
Gáz
Van
Villany
Van
Csatorna
Van
Tároló
Önálló
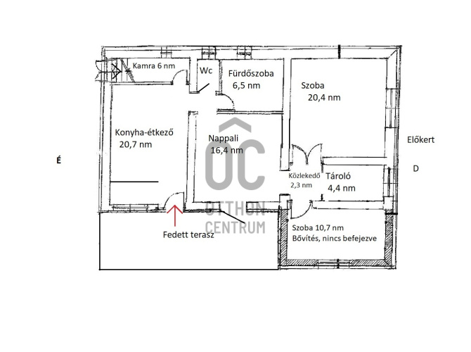
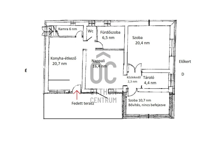
Helyiségek
konyha-étkező
20.7 m²
kamra
6 m²
előszoba
1 m²
fürdőszoba
6.5 m²
nappali
16.4 m²
hálószoba
20.4 m²
közlekedő
2.3 m²
hálószoba
10.7 m²
tároló
4.4 m²
terasz
45 m²

Torday Tibor
Hitelszakértő