Eladó családi ház, H504661
Tihany

750 000 000 Ft

1 925 000 €

  • 144m²
  • 4 szoba

Lake Balaton estate with eternal panorama located in Tihany Óvár, 200 meters from the shore.

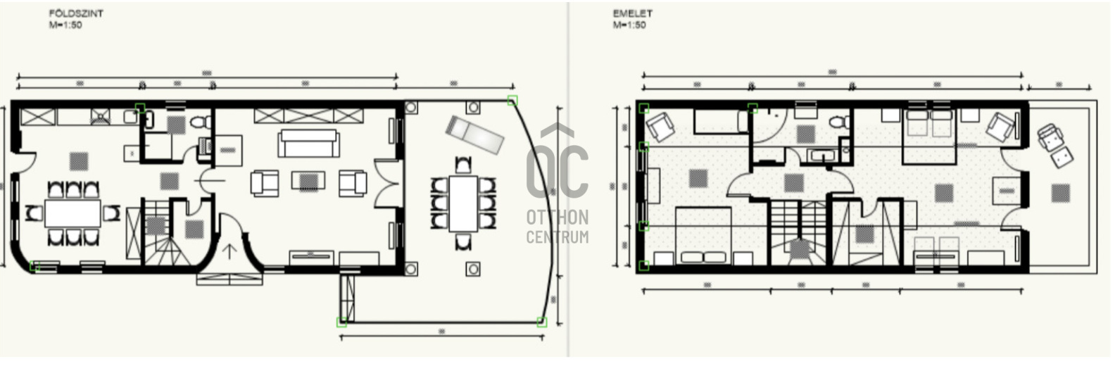
In the most prestigious part of the Balaton-Felvidék region, there is a two-story family house built in 2002 on a 856 m2 plot, with a full view of Lake Balaton. The area is well-known as a favorite holiday destination for the cultural and social elite, characterized by nearby wine cellars, wineries, the Tihany Echo, and villas that blend into the landscape. The uniquely located plot is situated in a protected natural environment. The 144 m2 family house features two bedrooms and a spacious living room. The plot also includes a wine cellar, sauna, and garden storage. Parking is available for four cars. About the location: Tihany Óvár is one of the highest, oldest, and most prestigious parts of the Tihany Peninsula. The view from here is breathtaking: it offers a direct panorama of Lake Balaton, and on clear days, you can see as far as Badacsony, with several towns on the southern shore also visible in the distance. Tihany Óvár is not only close to nature but also offers a calm, somewhat secluded atmosphere. It is far from main roads, and the noise of boat traffic is not heard here. Transportation: - Balatonfüred is a 15-minute drive away. - Easily accessible by ferry from Szántód, followed by a short drive. - Public transport: there is a bus stop in the center, but many of the houses can also be reached on foot within a 5-10 minute walk. If you desire a truly unparalleled panoramic, tranquil, nature-close home in the heart of Lake Balaton, where the landscape unfolds before you like a painting every day – Tihany Óvár is the place where your dreams can become reality.

Regisztrációs szám

H504661

Az ingatlan adatai

Értékesités
eladó
Jogi státusz
használt
Jelleg
ház
Építési mód
tégla
Méret
144 m²
Bruttó méret
144 m²
Telek méret
846 m²
Fűtés
Gáz cirkó
Belmagasság
3 200 cm
Lakáson belüli szintszám
2
Tájolás
Kelet
Állapot
Homlokzat állapota
Pince
Önálló
Környék
csendes, zöld
Építés éve
2002
Fürdőszobák száma
2
Garázs
Benne van az árban
Víz
Van
Gáz
Van
Villany
Van
Csatorna
Van
Tároló
Önálló
Vízpart távolsága
200 méterre

Helyiségek

nappali
48 m²
hálószoba
25 m²
hálószoba
25 m²
konyha
20 m²
hall
10 m²
hall
8 m²
fürdőszoba
8 m²
Berkes-Jakus Kinga
Berkes-Jakus Kinga

Hitelszakértő

Irodánk kínálatából - XIII. kerület - Béke Residence

for sale apartment

Index image
data_sheet.details.realestate.section.main.otthonstart_flag.label
8

eladó ikerház

Index image
28

for sale apartment

Index image
data_sheet.details.realestate.section.main.otthonstart_flag.label
12

for sale apartment

Index image
22

for sale apartment

Index image
11

for sale new construction apartment

Index image
6

for sale apartment

Index image
13

for sale apartment

Index image
16

for sale new construction apartment

Index image
4

for sale family house

Index image
data_sheet.details.realestate.section.main.otthonstart_flag.label
26