154 900 000 Ft
396 000 €
- 390m²
- 8 szoba










































Fantastic opportunity, a large family house converted into a condominium.
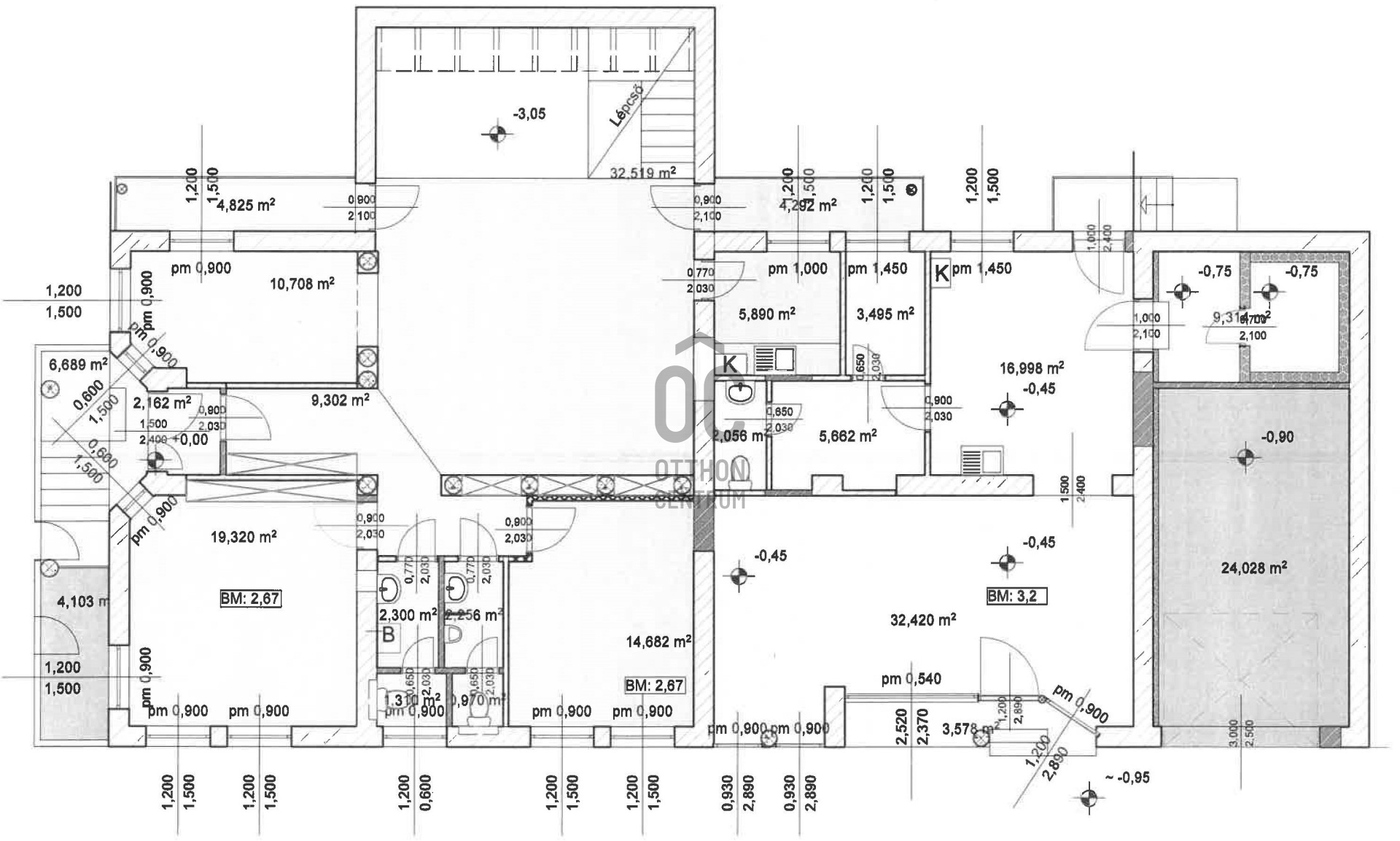
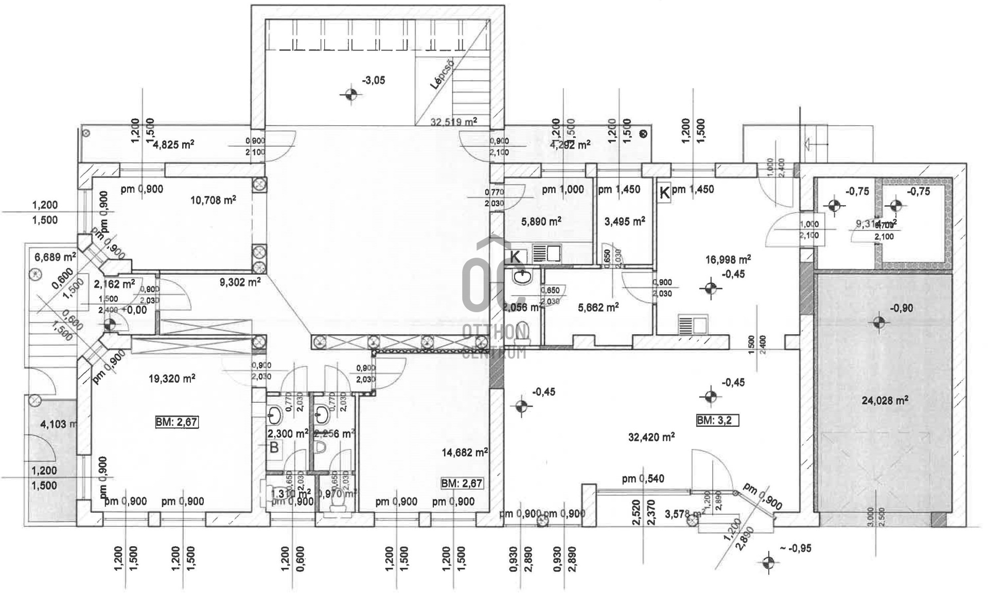
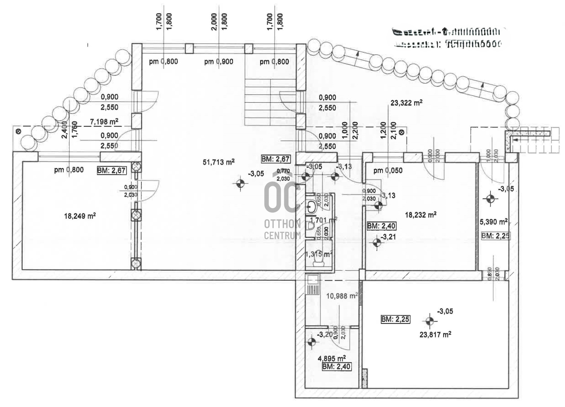
I am offering the following family house, which has been converted into a condominium, for sale in the city center of Nagykanizsa. Currently, it consists of offices and a commercial space with a garage. Property features: - It is located on a 607 m2 plot, which includes an internal enclosed courtyard paved with stone. - There are currently 8 rooms functioning as offices, along with 2 balconies, a terrace, a garage, storage rooms, restrooms, corridors, and a commercial space. - During the conversion into a condominium, 6 separate land registry numbers were planned, including 4 separate apartments, storage, a garage, and common areas. - The black-and-white floor plans included among the pictures show the current layout, while the colored ones depict potential configurations. - The largest apartment is 252 m2, the next one is 57.7 m2, the third is 44.3 m2, and the smallest, the fourth, is 29.1 m2. - Additionally, a corridor, storage room, and terrace have been separated, totaling 33.2 m2, as well as a garage measuring 23.6 m2. - The size of the common areas is 22.5 m2. - Currently, 390 m2 is in use, but with the planned expansion into the attic, this can be increased to 463 m2. - The restrooms are configured as WC and handwashing areas according to current use. - All utilities are available on the property. - There are currently 2 electricity meters, 2 gas meters, and 3 water meters. The commercial space and the offices have separate metering. - Heating is provided by 2 gas boilers. - Cooling is managed by air conditioning units. - The building is in excellent condition both inside and out, having been completely renovated. - It is built on a concrete foundation, with brick construction and a concrete ceiling, allowing for attic conversion. - The roof is covered with tiles. - The house has received waterproofing and external thermal insulation. - Parking for several cars is provided in the enclosed courtyard. Our office offers comprehensive services to our clients. We provide assistance with professional advice, free CSOK and loan administration, preparation of energy certificates, and affordable legal services!
Regisztrációs szám
H495405
Az ingatlan adatai
Értékesités
eladó
Jogi státusz
használt
Jelleg
ház
Építési mód
tégla
Méret
390 m²
Bruttó méret
460 m²
Telek méret
607 m²
Terasz / erkély mérete
32 m²
Fűtés
Gáz cirkó
Belmagasság
265 cm
Lakáson belüli szintszám
2
Tájolás
Nyugat
Állapot
Kiváló
Homlokzat állapota
Kiváló
Környék
csendes, jó közlekedés, központi
Építés éve
1990
Garázs
Benne van az árban
Garázs férőhely
1
Víz
Van
Gáz
Van
Villany
Van
Csatorna
Van
Tároló
Önálló
Helyiségek
szoba
10.7 m²
szoba
32.5 m²
szoba
19.3 m²
szoba
14.7 m²
előszoba
11.5 m²
erkély
9 m²
wc-kézmosó
8.8 m²
konyha-étkező
5.9 m²
üzlet
58.58 m²
garázs
22 m²
tároló
9.3 m²
szoba
18.24 m²
szoba
51.7 m²
terasz
23 m²
wc-kézmosó
3 m²
szoba
18.2 m²
tároló
29.2 m²

Horváth Szabina
Hitelszakértő