Elérhető Otthon Start hitellel
Eladó ikerház,
H484704
Sződliget
149 000 000 Ft
395 000 €
- 154m²
- 6 szoba
Dunához közeli eladó ikerház.
Különleges lehetőség várja Önt Göd és Sződliget között, a Dunához közel, egy 2022-ben épült, három gyermekes család igényeit tökéletesen kielégítő ikerház formájában. Ez a családias otthon 533 nm-es telken áll, és minden kényelmet megad, amit egy család csak kívánhat.
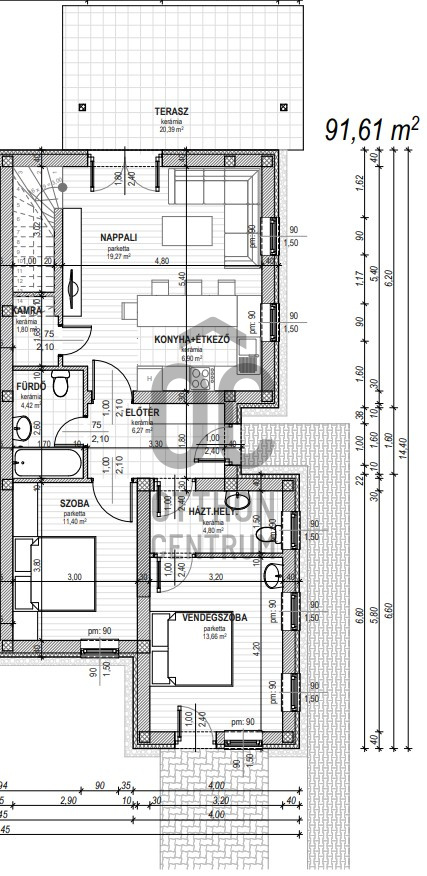
A ház bruttó alapterülete 154 m2, melyben a nappali mellett négy hálószoba, két fürdőszoba, egy kamra, egy háztartási helyiség és egy üzlethelyiség található, ami könnyedén átalakítható akár egy további hálószobává is. A fedett terasz kiváló lehetőséget kínál a kikapcsolódásra, míg a szintén fedett emeleti teraszról a csodálatos kilátás nyílik a budai hegyekre.
A gyepszőnyegezett kert közvetlen kapcsolatban áll az amerikai konyhás nappalival és a terasszal, ideális helyszínt teremtve családi összejövetelekhez és baráti grillezésekhez. A gondosan karbantartott kert saját fúrt kútból nyert vízzel működő automata öntöző és csepegtető rendszerrel rendelkezik, így mindig zöld és virágzó marad. A ház és a telek déli tájolású, így egész nap éri a nap.
A kertben található egy 16 nm-es faház/tároló a kerti eszközök és felszerelések számára, valamint egy kisebb fa játszótér is, hogy a gyerekek teljes szabadságot élvezhessenek a játékban és a szórakozásban. Emellett a fedett kuka- és biciklitároló segítségével könnyedén rendezett marad az udvar és biztonságban tarthatók a kerékpárok.
A földszinten padlófűtés, míg az emeleten radiátorok biztosítják a megfelelő hőmérsékletet, melyeket egy Bosch gázkazán táplál. Ezek két körön futnak, így a hőmérséklet külön szabályozható a földszinten és az emeleten. A légkondicionálás gondoskodik a kellemes hőmérsékletről, míg az automata alumínium redőnyök és szúnyoghálók az ablakokon és teraszajtón garantálják a nyugodt alvást és a zavartalan pihenést.
A ház 30-as porotherm téglából épült 15 cm-es szigeteléssel, illetve a padláson extra üveggyapot lett fújva 25cm vastagon.
Földszint:
Amerikai konyhás nappali: 26 nm
Hálószoba: 11,4 nm
Üzlethelység/vendégszoba: 13,7 nm
Fürdőszoba: 4,4 nm
Háztartási helység: 4,8 nm
Kamra: 4,4 nm
Előtér: 6,3 nm
Terasz: 20,4 nm
Emelet:
Hálószoba: 12,8 nm
Hálószoba: 12,5 nm
Hálószoba: 9,4 nm
Fürdőszoba: 5 nm
Terasz: 13,4 nm
A ház bruttó alapterülete 154 m2, melyben a nappali mellett négy hálószoba, két fürdőszoba, egy kamra, egy háztartási helyiség és egy üzlethelyiség található, ami könnyedén átalakítható akár egy további hálószobává is. A fedett terasz kiváló lehetőséget kínál a kikapcsolódásra, míg a szintén fedett emeleti teraszról a csodálatos kilátás nyílik a budai hegyekre.
A gyepszőnyegezett kert közvetlen kapcsolatban áll az amerikai konyhás nappalival és a terasszal, ideális helyszínt teremtve családi összejövetelekhez és baráti grillezésekhez. A gondosan karbantartott kert saját fúrt kútból nyert vízzel működő automata öntöző és csepegtető rendszerrel rendelkezik, így mindig zöld és virágzó marad. A ház és a telek déli tájolású, így egész nap éri a nap.
A kertben található egy 16 nm-es faház/tároló a kerti eszközök és felszerelések számára, valamint egy kisebb fa játszótér is, hogy a gyerekek teljes szabadságot élvezhessenek a játékban és a szórakozásban. Emellett a fedett kuka- és biciklitároló segítségével könnyedén rendezett marad az udvar és biztonságban tarthatók a kerékpárok.
A földszinten padlófűtés, míg az emeleten radiátorok biztosítják a megfelelő hőmérsékletet, melyeket egy Bosch gázkazán táplál. Ezek két körön futnak, így a hőmérséklet külön szabályozható a földszinten és az emeleten. A légkondicionálás gondoskodik a kellemes hőmérsékletről, míg az automata alumínium redőnyök és szúnyoghálók az ablakokon és teraszajtón garantálják a nyugodt alvást és a zavartalan pihenést.
A ház 30-as porotherm téglából épült 15 cm-es szigeteléssel, illetve a padláson extra üveggyapot lett fújva 25cm vastagon.
Földszint:
Amerikai konyhás nappali: 26 nm
Hálószoba: 11,4 nm
Üzlethelység/vendégszoba: 13,7 nm
Fürdőszoba: 4,4 nm
Háztartási helység: 4,8 nm
Kamra: 4,4 nm
Előtér: 6,3 nm
Terasz: 20,4 nm
Emelet:
Hálószoba: 12,8 nm
Hálószoba: 12,5 nm
Hálószoba: 9,4 nm
Fürdőszoba: 5 nm
Terasz: 13,4 nm
Regisztrációs szám
H484704
Az ingatlan adatai
Értékesités
eladó
Jogi státusz
használt
Jelleg
ház
Építési mód
tégla
Méret
154 m²
Bruttó méret
154 m²
Telek méret
533 m²
Fűtés
Gáz cirkó
Belmagasság
265 cm
Lakáson belüli szintszám
2
Tájolás
Kelet
Állapot
Kiváló
Homlokzat állapota
Kiváló
Környék
csendes, zöld
Építés éve
2022
Fürdőszobák száma
2
Víz
Van
Gáz
Van
Villany
Van
Csatorna
Van
Vízpart távolsága
200 méterre
Helyiségek
nappali-konyha
26 m²
hálószoba
11 m²
hálószoba
14 m²
fürdőszoba-wc
4.5 m²
háztartási helyiség
5 m²
kamra
4.4 m²
előszoba
6.3 m²
terasz
20.5 m²
hálószoba
13 m²
hálószoba
12.5 m²
hálószoba
10 m²
fürdőszoba-wc
5 m²
terasz
13.4 m²