Elérhető Otthon Start hitellel
Eladó családi ház,
H482194
Lőrinci
24 900 000 Ft
65 000 €
- 170m²
- 4 szoba



























Stílusos 4 szobás ház Lőrinci szívében - Heves vármegye
Kedveli a nagy tereket? Ezt látnia kell!
Lőrinci csendes utcájában ajánlom figyelmébe ezt a téglaházat.
Az épület felújítást igényel, méretéből adódóan, nagy családok számára lehet ideális választás.
A tetőtér nem került befejezésre, az alsó szintet használták, ahol korábban fodrászszalon működött.
Az épületben nincsen áram szolgáltatás.
A fűtés gázkonvektoros, korszerűsítése szükséges.
A tető fedése cserére szorul, a szerkezete ép.
Tudta?
Amennyiben babaváró kölcsönt és CSOK PLUSZ kamattámogatott hitelt vesz fel, akkor illeték mentességre is jogosult?
Támogatás és Hitelközvetítő Szakértőnk díjmentesen segít Önnek megtalálni a megfelelő megoldást!
További információkért várom hívását, minden nap 8-18 óráig.
Lőrinci csendes utcájában ajánlom figyelmébe ezt a téglaházat.
Az épület felújítást igényel, méretéből adódóan, nagy családok számára lehet ideális választás.
A tetőtér nem került befejezésre, az alsó szintet használták, ahol korábban fodrászszalon működött.
Az épületben nincsen áram szolgáltatás.
A fűtés gázkonvektoros, korszerűsítése szükséges.
A tető fedése cserére szorul, a szerkezete ép.
Tudta?
Amennyiben babaváró kölcsönt és CSOK PLUSZ kamattámogatott hitelt vesz fel, akkor illeték mentességre is jogosult?
Támogatás és Hitelközvetítő Szakértőnk díjmentesen segít Önnek megtalálni a megfelelő megoldást!
További információkért várom hívását, minden nap 8-18 óráig.
Regisztrációs szám
H482194
Az ingatlan adatai
Értékesités
eladó
Jogi státusz
használt
Jelleg
ház
Építési mód
tégla
Méret
170 m²
Bruttó méret
200 m²
Telek méret
525 m²
Terasz / erkély mérete
7 m²
Fűtés
gázkonvektor
Belmagasság
268 cm
Lakáson belüli szintszám
1
Tájolás
Nyugat
Állapot
Felújítandó
Homlokzat állapota
Átlagos
Pince
Önálló
Építés éve
1981
Fürdőszobák száma
1
Garázs
Benne van az árban
Garázs férőhely
1
Víz
Van
Villany
Utcán
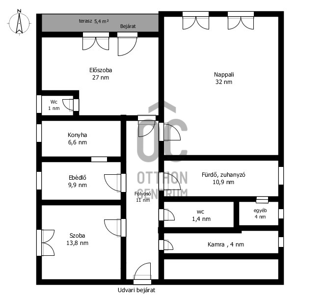
Helyiségek
előszoba
27 m²
nappali
32 m²
szoba
13.8 m²
konyha
6.6 m²
ebédlő
10 m²
közlekedő
11 m²
fürdőszoba
10.9 m²
wc
1.4 m²
kamra
1.5 m²
szoba
15.6 m²
szoba
15.6 m²
nappali
16 m²
tároló
3 m²
wc-kézmosó
4 m²

Pampuk Rita
Hitelszakértő