644 672 Ft
1 650 €
- 102,5m²
- 2 szoba
- 1. emelet
























































Panorámás két szobás, teraszos lakás bérelhető a VÁRNEGYEDNÉL + külön hozzá bérelhető 150 m²-es IRODA! - AZONNAL KÖLTÖZHETŐ
Kevés ehhez hasonló ingatlan érhető el a piacon!
Jó hangulatú, DK-i tájolású, világos, minden irányból Budára néző kilátással kiadó 102,5-es lakás, csendes, egyirányú, alacsony forgalmú mellékutcában, a várnegyed közvetlen közelében. A lakáshoz tartozik két autónak való bérelhető terembeálló és ugyanabban az épületben, a földszinten 150 m²-es IRODA is bérelhető a lakáshoz!
RITKA, EGYEDI AJÁNLAT, hogy a várnegyed elegáns környékén egy épületen belül panorámás lakás és hozzá kertkapcsolatos, szintén panorámás IRODA is bérelhető!
A lakáshoz tartozik még bérelhető két autó férőhelyes terembeálló. Garázs havonta (gépkocsinként) bruttó: 191,00 EUR/hó
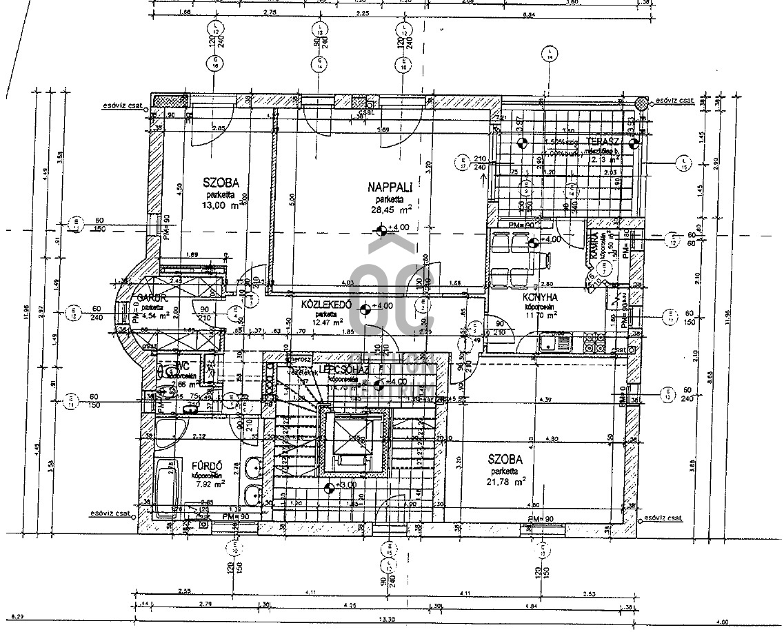
A bútorozatlan 1 emeleti lakásban két külön nyíló tágas szoba található, az egyik szobának 13 m² minkét oldaláról erkély, a másik 28, 45 m²-es szobából terasz nyílik. A konyhában konyhabútor, kerámia főzőlap, mosogatógép, hűtő, minden helyiségben légkondicionáló berendezés, továbbá videó kaputelefon van és lift is a házban. A teraszra a konyhából is közvetlenül ki lehet menni. A nappaliban egy berendezett gépesített plusz konyha is található. Külön gardróbszoba, fürdőszoba két mosdókagylóval, kád, zuhanyzó, külön wc plusz piszoár.
Helyiségek:
- szoba 13 m²
- szoba 28,45 m²
- nappali 21,78 m²
- konyha 11,7 m²
- gardróbszoba 4,54 m²
- terasz 12,13 m²
- 5 db erkély
- 1 fürdőszoba 7,92 m²
- 1 wc 2,66 m²
- gardróbszoba 4,54 m²
- közlekedő 12,47 m²
Miért érdemes ezt a lakást választania?
- egyedi és ritka ajánlat - Bérelhető a lakáshoz ugyanabban az épületben 150 m²-es IRODA
- hangulatos és biztonságos környék
- az újépítésű épületben van lift és videós kaputelefon
- Panoráma az irodánál kertkapcsolat
- 2 férőhelyes bérelhető teremgarázs beálló
- jó minőségű kivitelezés, légkondicionált helyiségek
- praktikus elosztás
Gépesítve, bútorozatlanul, beépített szekrényekkel kiadó. Igény esetén a lakáshoz bérelhető
TEREMGARÁZS 100EUR + Áfáért.
Milyen feltételekkel bérelhető az ingatlan?
- havi bérleti díj: 1650 EUR + Áfa
- minimum 12 hónap
- számlásan (1650EUR + ÁFA)
- háziállat NEM hozható
- dohányzás NEM engedélyezett
- 2 havi kaució
- 100.000 Ft + Áfa közösköltség
A bérleti díj nem tartalmazza a rezsi költségeket. Minden egyedi fogyasztás szerint fizetendő.
Előre egyeztetett időpontban tekinthető meg. Részletekkel kapcsolatban keresen telefonon!
#budapest #buda #kiadó #kiado #újépítés #számlaképes #azonnalköltözhető #luxus #ingatlan #ingatlanközvetítés #varnegyed #igényes #újszerű
Kevés ehhez hasonló ingatlan érhető el a piacon!
Jó hangulatú, DK-i tájolású, világos, minden irányból Budára néző kilátással kiadó 102,5-es lakás, csendes, egyirányú, alacsony forgalmú mellékutcában, a várnegyed közvetlen közelében. A lakáshoz tartozik két autónak való bérelhető terembeálló és ugyanabban az épületben, a földszinten 150 m²-es IRODA is bérelhető a lakáshoz!
RITKA, EGYEDI AJÁNLAT, hogy a várnegyed elegáns környékén egy épületen belül panorámás lakás és hozzá kertkapcsolatos, szintén panorámás IRODA is bérelhető!
A lakáshoz tartozik még bérelhető két autó férőhelyes terembeálló. Garázs havonta (gépkocsinként) bruttó: 191,00 EUR/hó
A bútorozatlan 1 emeleti lakásban két külön nyíló tágas szoba található, az egyik szobának 13 m² minkét oldaláról erkély, a másik 28, 45 m²-es szobából terasz nyílik. A konyhában konyhabútor, kerámia főzőlap, mosogatógép, hűtő, minden helyiségben légkondicionáló berendezés, továbbá videó kaputelefon van és lift is a házban. A teraszra a konyhából is közvetlenül ki lehet menni. A nappaliban egy berendezett gépesített plusz konyha is található. Külön gardróbszoba, fürdőszoba két mosdókagylóval, kád, zuhanyzó, külön wc plusz piszoár.
Helyiségek:
- szoba 13 m²
- szoba 28,45 m²
- nappali 21,78 m²
- konyha 11,7 m²
- gardróbszoba 4,54 m²
- terasz 12,13 m²
- 5 db erkély
- 1 fürdőszoba 7,92 m²
- 1 wc 2,66 m²
- gardróbszoba 4,54 m²
- közlekedő 12,47 m²
Miért érdemes ezt a lakást választania?
- egyedi és ritka ajánlat - Bérelhető a lakáshoz ugyanabban az épületben 150 m²-es IRODA
- hangulatos és biztonságos környék
- az újépítésű épületben van lift és videós kaputelefon
- Panoráma az irodánál kertkapcsolat
- 2 férőhelyes bérelhető teremgarázs beálló
- jó minőségű kivitelezés, légkondicionált helyiségek
- praktikus elosztás
Gépesítve, bútorozatlanul, beépített szekrényekkel kiadó. Igény esetén a lakáshoz bérelhető
TEREMGARÁZS 100EUR + Áfáért.
Milyen feltételekkel bérelhető az ingatlan?
- havi bérleti díj: 1650 EUR + Áfa
- minimum 12 hónap
- számlásan (1650EUR + ÁFA)
- háziállat NEM hozható
- dohányzás NEM engedélyezett
- 2 havi kaució
- 100.000 Ft + Áfa közösköltség
A bérleti díj nem tartalmazza a rezsi költségeket. Minden egyedi fogyasztás szerint fizetendő.
Előre egyeztetett időpontban tekinthető meg. Részletekkel kapcsolatban keresen telefonon!
#budapest #buda #kiadó #kiado #újépítés #számlaképes #azonnalköltözhető #luxus #ingatlan #ingatlanközvetítés #varnegyed #igényes #újszerű
Regisztrációs szám
H479431
Az ingatlan adatai
Értékesités
kiadó
Jogi státusz
használt
Jelleg
lakás
Építési mód
tégla
Méret
102,5 m²
Bruttó méret
102,5 m²
Fűtés
Gáz cirkó
Belmagasság
250 cm
Lakáson belüli szintszám
5
Tájolás
Dél-kelet
Lépcsőház típusa
zárt lépcsőház
Állapot
Jó
Homlokzat állapota
Jó
Lépcsőház állapota
Jó
Környék
csendes
Építés éve
1980
Fürdőszobák száma
1
Fekvés
kertre néző
Víz
Van
Gáz
Van
Villany
Van
Csatorna
Van
Lift
van
Helyiségek
közlekedő
12.47 m²
szoba
21.78 m²
szoba
13 m²
fürdőszoba
7.92 m²
wc
2.66 m²
konyha
11.7 m²
nappali
27.45 m²
gardrób
4.54 m²
terasz
12.13 m²
erkély
4.54 m²
erkély
3 m²

Pfeffer Kinga
Hitelszakértő