Elérhető Otthon Start hitellel
Eladó újépítésű ikerház,
DHZ053310
Sülysáp
94 000 000 Ft
249 000 €
- 99,3m²
- 4 szoba
SÜLYSÁP ÚJ ÉPÍTÉSŰ IKERHÁZFÉL, KIEMELKEDŐ MŰSZAKI TARTALOMMAL
HÁTSÓ Ikerház fél.
Kb 270 m2-es telekkel.
Sülysápon kínálunk megvételre egy modern kialakítású ikerházfelet, amelynek tervezése és kivitelezése során a minőség, az energiahatékonyság és a hosszú távú fenntarthatóság állt a középpontban. Az ingatlan ideális választás családoknak és mindazoknak, akik korszerű, alacsony fenntartású otthont keresnek.
Fontos tudnivalók:
Teljes műszaki leírás és dokumentáció rendelkezésre áll
A H-tarifa igényléséhez szükséges villanyóra kiépítésre került, az új tulajdonosnak már csak igényelnie kell
Várható átadás: 2026 nyár közepe
Műszaki tartalom röviden:
Levegővíz hőszivattyús melegvíz-ellátás indirekt tárolóval
Prémium minőségű szaniterek és csaptelepek
Korszerű, szigetelt víz- és szennyvízhálózat
Padlófűtéses hőleadás, igény szerint falfűtés és mennyezethűtés
Gázmentes, modern energetikai rendszer
Csapadékvíz telken belüli szikkasztással megoldva
-Redőny felszerelése benne van az árban.
-Garázs beálló viacolorral lesz kiépítve.
- 25 cm tető SZIGETELÉS.
- 20 CM KÜLSŐ SZIGETELÉS.
- WPC WALL PANEL kerül kivitelezésre a belső terek burkolása kapcsán.
Ez az ikerházfél jövőálló műszaki megoldásokat, magas komfortfokozatot és kiszámítható rezsiköltségeket kínál új tulajdonosának.
A NAPELEM kiépítéséhez szükséges kivitelezés előkészítése megtörténik az ingatlanoknál.
Ez az ingatlan nemcsak megjelenésében, hanem műszaki megoldásaiban is a jövőt képviseli. A tervezés során a hangsúly az energiahatékonyságon, a komforton és a hosszú távú megbízhatóságon volt.
Melegvíz-ellátás
A melegvizet levegővíz hőszivattyú biztosítja indirekt tárolós rendszerrel, korszerű, hőszigetelt vezetékhálózaton keresztül gazdaságos és környezetbarát megoldás.
Prémium szaniterek és szerelvények
A fürdőszobákba Alföldi porcelán szaniterek (vagy azzal egyenértékű minőség),
víztakarékos, öblítőstopos WC-tartályok (Geberit),
valamint Mofém / Kludi minőségű csaptelepek kerülnek beépítésre.
Szakszerű víz- és csatornahálózat
A teljes ivóvíz- és szennyvízrendszer korszerű PVC és KG-PVC elemekből készül, megfelelő hő- és párazáró szigeteléssel, fertőtlenítéssel és nyomáspróbával.
Az épületbe belépésnél visszamosható vízszűrő gondoskodik a tiszta vízről, a használatbavételhez akkreditált vízvizsgálat készül.
Csapadékvíz-kezelés telken belül megoldva
A tetőről érkező csapadékvíz szikkasztással és vízvisszatartással kerül hasznosításra, korszerű, tisztítható csatornarendszeren keresztül.
Fűtés modern hőszivattyús rendszer
Az épület fűtését 2 db, egyenként 5 kW-os levegővíz hőszivattyú biztosítja.( 1500 W)
A hőleadás padlófűtéssel, igény szerint falfűtéssel történik, REHAU Rautherm rendszerekkel, osztó-gyűjtős szabályozással.
Zárt, szivattyús rendszer, automata légtelenítéssel, iszapleválasztással és teljes körű nyomáspróbával.
Hűtési lehetőség
Mennyezethűtés hőszivattyúval, harmatpont-érzékelőkkel, a nyári komfortérzet maximális biztosítására.
Szellőzés
Természetes szellőzés nyílászárókon és elszívó ventilátorokon keresztül, opcionálisan központi szellőztető rendszerrel bővíthető.
Gázmentes, jövőálló megoldás
Az ingatlan gázellátás nélkül, teljes mértékben korszerű elektromos és hőszivattyús rendszerre épül alacsony fenntartási költségek mellett.
Várom megtisztelő Hívását!Tekintsük meg új ÁLOM OTTHONÁT!
HÁTSÓ Ikerház fél.
Kb 270 m2-es telekkel.
Sülysápon kínálunk megvételre egy modern kialakítású ikerházfelet, amelynek tervezése és kivitelezése során a minőség, az energiahatékonyság és a hosszú távú fenntarthatóság állt a középpontban. Az ingatlan ideális választás családoknak és mindazoknak, akik korszerű, alacsony fenntartású otthont keresnek.
Fontos tudnivalók:
Teljes műszaki leírás és dokumentáció rendelkezésre áll
A H-tarifa igényléséhez szükséges villanyóra kiépítésre került, az új tulajdonosnak már csak igényelnie kell
Várható átadás: 2026 nyár közepe
Műszaki tartalom röviden:
Levegővíz hőszivattyús melegvíz-ellátás indirekt tárolóval
Prémium minőségű szaniterek és csaptelepek
Korszerű, szigetelt víz- és szennyvízhálózat
Padlófűtéses hőleadás, igény szerint falfűtés és mennyezethűtés
Gázmentes, modern energetikai rendszer
Csapadékvíz telken belüli szikkasztással megoldva
-Redőny felszerelése benne van az árban.
-Garázs beálló viacolorral lesz kiépítve.
- 25 cm tető SZIGETELÉS.
- 20 CM KÜLSŐ SZIGETELÉS.
- WPC WALL PANEL kerül kivitelezésre a belső terek burkolása kapcsán.
Ez az ikerházfél jövőálló műszaki megoldásokat, magas komfortfokozatot és kiszámítható rezsiköltségeket kínál új tulajdonosának.
A NAPELEM kiépítéséhez szükséges kivitelezés előkészítése megtörténik az ingatlanoknál.
Ez az ingatlan nemcsak megjelenésében, hanem műszaki megoldásaiban is a jövőt képviseli. A tervezés során a hangsúly az energiahatékonyságon, a komforton és a hosszú távú megbízhatóságon volt.
Melegvíz-ellátás
A melegvizet levegővíz hőszivattyú biztosítja indirekt tárolós rendszerrel, korszerű, hőszigetelt vezetékhálózaton keresztül gazdaságos és környezetbarát megoldás.
Prémium szaniterek és szerelvények
A fürdőszobákba Alföldi porcelán szaniterek (vagy azzal egyenértékű minőség),
víztakarékos, öblítőstopos WC-tartályok (Geberit),
valamint Mofém / Kludi minőségű csaptelepek kerülnek beépítésre.
Szakszerű víz- és csatornahálózat
A teljes ivóvíz- és szennyvízrendszer korszerű PVC és KG-PVC elemekből készül, megfelelő hő- és párazáró szigeteléssel, fertőtlenítéssel és nyomáspróbával.
Az épületbe belépésnél visszamosható vízszűrő gondoskodik a tiszta vízről, a használatbavételhez akkreditált vízvizsgálat készül.
Csapadékvíz-kezelés telken belül megoldva
A tetőről érkező csapadékvíz szikkasztással és vízvisszatartással kerül hasznosításra, korszerű, tisztítható csatornarendszeren keresztül.
Fűtés modern hőszivattyús rendszer
Az épület fűtését 2 db, egyenként 5 kW-os levegővíz hőszivattyú biztosítja.( 1500 W)
A hőleadás padlófűtéssel, igény szerint falfűtéssel történik, REHAU Rautherm rendszerekkel, osztó-gyűjtős szabályozással.
Zárt, szivattyús rendszer, automata légtelenítéssel, iszapleválasztással és teljes körű nyomáspróbával.
Hűtési lehetőség
Mennyezethűtés hőszivattyúval, harmatpont-érzékelőkkel, a nyári komfortérzet maximális biztosítására.
Szellőzés
Természetes szellőzés nyílászárókon és elszívó ventilátorokon keresztül, opcionálisan központi szellőztető rendszerrel bővíthető.
Gázmentes, jövőálló megoldás
Az ingatlan gázellátás nélkül, teljes mértékben korszerű elektromos és hőszivattyús rendszerre épül alacsony fenntartási költségek mellett.
Várom megtisztelő Hívását!Tekintsük meg új ÁLOM OTTHONÁT!
Regisztrációs szám
DHZ053310
Az ingatlan adatai
Értékesités
eladó
Jogi státusz
új
Jelleg
ház
Építési mód
tégla
Méret
99,3 m²
Bruttó méret
99,3 m²
Telek méret
1 102 m²
Terasz / erkély mérete
11 m²
Fűtés
egyéb
Belmagasság
285 cm
Lakáson belüli szintszám
1
Tájolás
Észak-kelet
Állapot
Jó
Homlokzat állapota
Jó
Építés éve
2026
Fürdőszobák száma
1
Fekvés
udvari
Víz
Van
Gáz
Utcán
Villany
Van
Csatorna
Van
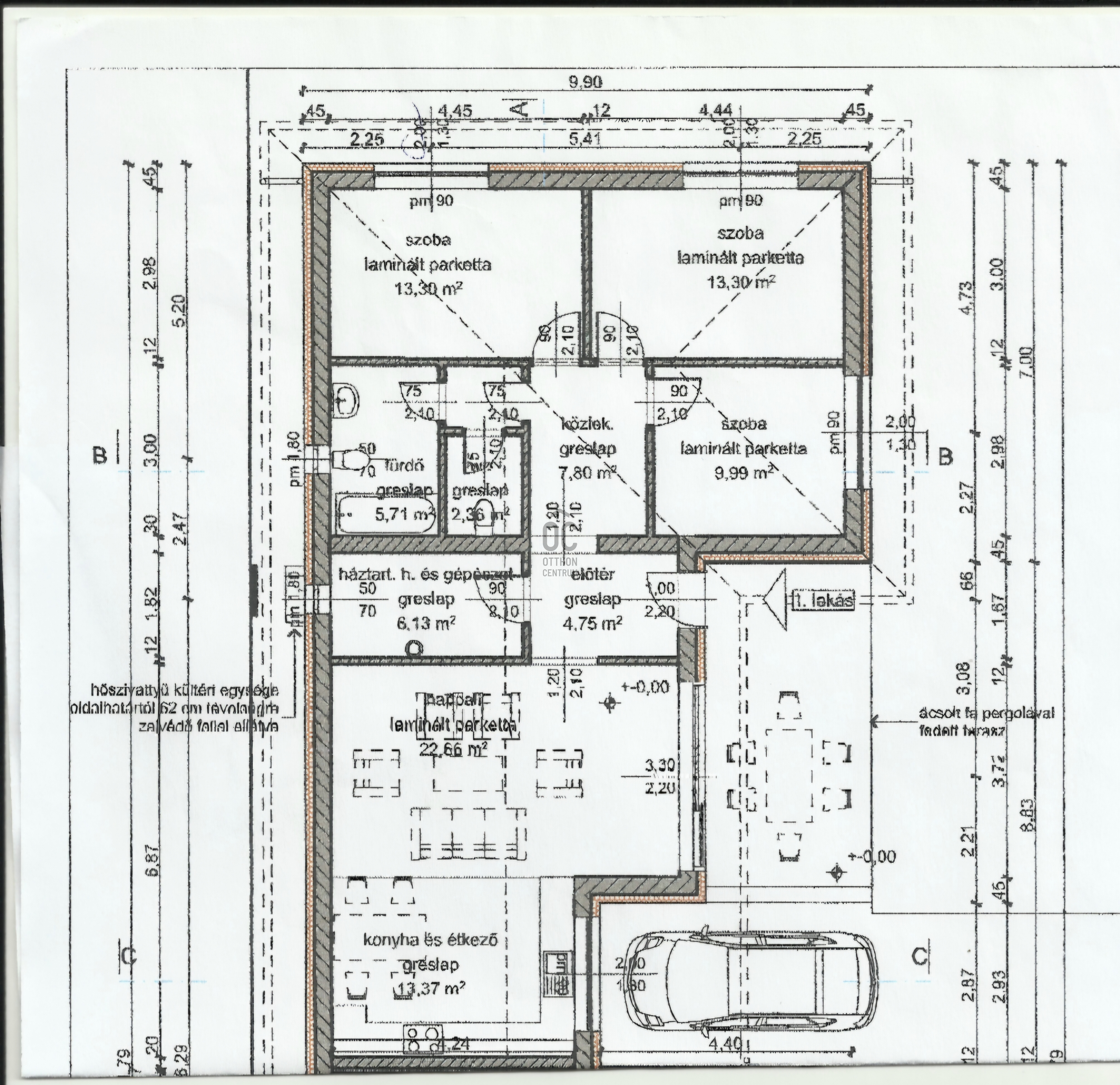
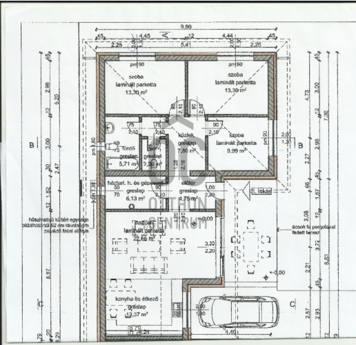
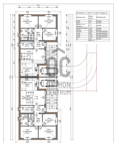
Helyiségek
szoba
13.3 m²
szoba
13.3 m²
szoba
9.99 m²
wc
2.36 m²
közlekedő
7.8 m²
nappali
22.66 m²
konyha-étkező
13.37 m²
háztartási helyiség
6.13 m²
terasz
11 m²