120 000 000 Ft
306 000 €
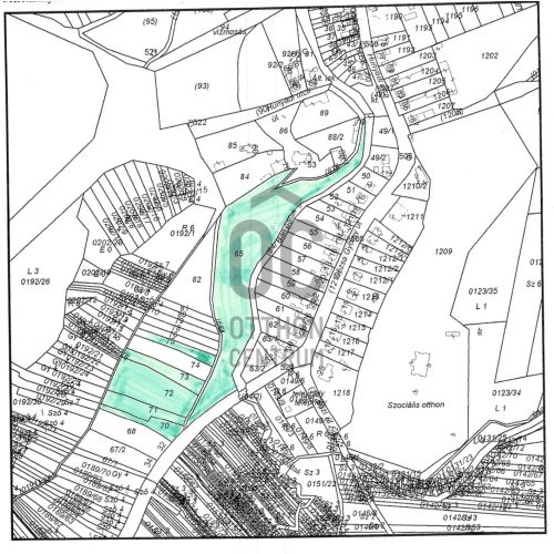
- 31 233m²




















Discover the plot of your dreams in Dédestapolcsány – whether for investment or your own home, the opportunity is before you!
Step into the future by purchasing a truly special plot of land located in the picturesque surroundings of Dédestapolcsány, in Borsod-Abaúj-Zemplén County. This 31,233 square meter plot is classified as residential land, offering an ideal opportunity for anyone looking to build their own home or seeking valuable real estate for investment purposes. The plot stands out not only for its size but also for the unique characteristics of the area, as it is part of a mountainous region that guarantees not only proximity to nature but also tranquility. The plot offers panoramic views overlooking the surrounding hills and forests, so every morning you will be greeted by a new, wonderful sight. The buildability of the plot allows you to realize your dream home while the opportunities provided by the area and the fresh air ensure pleasant living conditions. The area is safe and quiet, making it an ideal choice for families or even investors looking for a peaceful retreat. The plot extends completely from the hillside into the center of the village, with one boundary line adjacent to the Catholic church and its courtyard, and the other bordering the Bán stream that runs through the settlement. The services available in the vicinity of Dédestapolcsány, such as shops, schools, and healthcare facilities, all contribute to making this plot an ideal choice, whether for long-term housing or investment purposes. The area includes: - A 35 m² small house built into the hillside, which is a single space heated by a solid fuel stove, with electricity connected, and water supplied by a well and three springs located on the plot. - Two barns for hay storage. - A stable in a sheltered location. - A four-stall feeder. - A well. - Three springs. Don’t miss this great opportunity to acquire a property that not only represents value but also offers a lifestyle. Please do not hesitate to contact us if you have any questions about the plot or this segment of the real estate market. We are here to help you make the best decision and are ready to assist you at every step of the purchasing process.
Regisztrációs szám
BI000551
Az ingatlan adatai
Értékesités
eladó
Jelleg
telek
Típus
Építési telek
Övezet
lakóövezet
Telek méret
31 233 m²
Tájolás
Észak-kelet
Panoráma
Zöldre néző panoráma
Környék
csendes, zöld
Villany
Van
Telek lejtés
10-20% között
Beépíthetőség
80%
Homlokzat magassága
280
Építhető ingatlan típusa
Családi ház, Társasház 50 lakás felett, Iroda, szálloda, vagy egyéb intézmény, Kiskereskedelmi épület, Lakóövezeti telek parcellázás, Gazdasági épület