XI. SASAD, CSENDES MELLÉKUTCÁBAN, 4 ÉPÜLETBEN 16 db ÚJÉPÍTÉSŰ LAKÁS
XI. SASAD, CSENDES MELLÉKUTCÁBAN, 4 ÉPÜLETBEN 16 db ÚJÉPÍTÉSŰ LAKÁS
XI. Kerület SASAD KÖRZETÉBEN, CSENDES MELLÉKUTCÁBAN, SÍK, négyzet alakú, 4 db KÜLÖNÁLLÓ 1000 m2 FELETTI TELKEN, 4 ÖNÁLLÓ 3 lakószintes LIFTES TÁRSASHÁZBAN KÍNÁLUNK ELADÁSRA 16 db DNY-i TÁJOLÁSÚ KERTRE NÉZŐ ÚJÉPÍTÉSŰ LAKÁST, MINDEGYIK LAKÁSHOZ 2 db TEREMGARÁZZSAL (+10 Mft/db), és 5 m2 körüli TÁROLÓKKAL (1Mft/m2).
A 4 ÉPÜLET, és a BENNÜK ÉPÜLŐ LAKÁSOK FORMAILAG és MÉRETBEN is MEGEGYEZŐEK LESZNEK, TEREMGARÁZSOKTÓL közlekedő LIFT kerül beépítésre.
Fűtés-hűtés: Hőszivattyús rendszerrel padlófűtés, illetve mennyezet hűtés – fűtés. Külső nyílászárók: Műanyag profilú 6 légkamrás, kívül színes fólia, 3 rétegű üvegezés.
Az ingatlan főfalak által behatárolt területe jelen pillanatban még a leendő vásárlói igényeknek megfelelően alakítható: válaszfalak elhelyezése, szobaszám, szobák mérete….stb.
A KIVITELEZŐ TÖBB MINT 100!!! TÁRSASHÁZAT ÉPÍTETT MÁR FEL A 2,11,12. KERÜLETEKBEN) a LAKÁSOK KULCSRAKÉSZ ÁLLAPOTA 2026 ÉV VÉGÉRE várható.
Közlekedés: 53, 108E, 139, és 140 buszok 5 perc sétatávolságra, M4 METRÓ KELENFÖLDI VÉGÁLLOMÁSA BUSSZAL 5 PERC ALATT ELÉRHETŐ.
LAKÁSOK ÉPÜLETENKÉNTI KIOSZTÁSA:
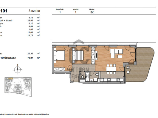
FSZT.: 142 m2 (50 m2 terasz 1/2 méretének a beszámítása mellett. A terasz nélküli nettó alapterület 117 m2), DNY-i, 5 szobás, 2 fürdőszobás, 2 db teremgarázs hely (+10 Mft/db), 5,5 m2 tárolóval (+5,5 Mft) és 192 m2 saját kert.
1.E.: 2 db 68 m2-es (20 m2 terasz 1/2 méretének a beszámítása mellett. A terasz nélküli nettó alapterület 58 m2), DNY-i, 3 szobás, 2 db teremgarázs hely (+10 Mft/db), és 4,5 m2 tárolóval (+4,5 Mft)
2.E. PENTHOUSE: 131 m2-es (60 m2 terasz 1/2 méretének a beszámítása mellett. A terasz nélküli nettó alapterület 101 m2), 4 szobás, 2 fürdőszobás, 2 db teremgarázs hellyel (+10 Mft/db), és 5,5 m2 tárolóval (+5,5 Mft)
TISZTELT ÉRDEKLŐDŐ!
AMENNYIBEN SZÁNDÉKÁBAN ÁLL INGATLANT ELADNI - A LEGRÖVIDEBB IDŐN BELÜL, GARANTÁLT JOGI, ÉS BANKI HÁTTÉRREL - KERESSEN BIZALOMMAL, HOGY EGY SZEMÉLYES HELYSZÍNI FELMÉRÉST KÖVETŐ INGYENES ÉRTÉKMEGÁLLAPÍTÁS UTÁN, EGYÜTT TUDJUNK MŰKÖDNI AZ ÖN INGATLANÁNAK AZ ÉRTÉKESÍTÉSÉBEN IS!
XI. Kerület SASAD KÖRZETÉBEN, CSENDES MELLÉKUTCÁBAN, SÍK, négyzet alakú, 4 db KÜLÖNÁLLÓ 1000 m2 FELETTI TELKEN, 4 ÖNÁLLÓ 3 lakószintes LIFTES TÁRSASHÁZBAN KÍNÁLUNK ELADÁSRA 16 db DNY-i TÁJOLÁSÚ KERTRE NÉZŐ ÚJÉPÍTÉSŰ LAKÁST, MINDEGYIK LAKÁSHOZ 2 db TEREMGARÁZZSAL (+10 Mft/db), és 5 m2 körüli TÁROLÓKKAL (1Mft/m2).
A 4 ÉPÜLET, és a BENNÜK ÉPÜLŐ LAKÁSOK FORMAILAG és MÉRETBEN is MEGEGYEZŐEK LESZNEK, TEREMGARÁZSOKTÓL közlekedő LIFT kerül beépítésre.
Fűtés-hűtés: Hőszivattyús rendszerrel padlófűtés, illetve mennyezet hűtés – fűtés. Külső nyílászárók: Műanyag profilú 6 légkamrás, kívül színes fólia, 3 rétegű üvegezés.
Az ingatlan főfalak által behatárolt területe jelen pillanatban még a leendő vásárlói igényeknek megfelelően alakítható: válaszfalak elhelyezése, szobaszám, szobák mérete….stb.
A KIVITELEZŐ TÖBB MINT 100!!! TÁRSASHÁZAT ÉPÍTETT MÁR FEL A 2,11,12. KERÜLETEKBEN) a LAKÁSOK KULCSRAKÉSZ ÁLLAPOTA 2026 ÉV VÉGÉRE várható.
Közlekedés: 53, 108E, 139, és 140 buszok 5 perc sétatávolságra, M4 METRÓ KELENFÖLDI VÉGÁLLOMÁSA BUSSZAL 5 PERC ALATT ELÉRHETŐ.
LAKÁSOK ÉPÜLETENKÉNTI KIOSZTÁSA:
FSZT.: 142 m2 (50 m2 terasz 1/2 méretének a beszámítása mellett. A terasz nélküli nettó alapterület 117 m2), DNY-i, 5 szobás, 2 fürdőszobás, 2 db teremgarázs hely (+10 Mft/db), 5,5 m2 tárolóval (+5,5 Mft) és 192 m2 saját kert.
1.E.: 2 db 68 m2-es (20 m2 terasz 1/2 méretének a beszámítása mellett. A terasz nélküli nettó alapterület 58 m2), DNY-i, 3 szobás, 2 db teremgarázs hely (+10 Mft/db), és 4,5 m2 tárolóval (+4,5 Mft)
2.E. PENTHOUSE: 131 m2-es (60 m2 terasz 1/2 méretének a beszámítása mellett. A terasz nélküli nettó alapterület 101 m2), 4 szobás, 2 fürdőszobás, 2 db teremgarázs hellyel (+10 Mft/db), és 5,5 m2 tárolóval (+5,5 Mft)
TISZTELT ÉRDEKLŐDŐ!
AMENNYIBEN SZÁNDÉKÁBAN ÁLL INGATLANT ELADNI - A LEGRÖVIDEBB IDŐN BELÜL, GARANTÁLT JOGI, ÉS BANKI HÁTTÉRREL - KERESSEN BIZALOMMAL, HOGY EGY SZEMÉLYES HELYSZÍNI FELMÉRÉST KÖVETŐ INGYENES ÉRTÉKMEGÁLLAPÍTÁS UTÁN, EGYÜTT TUDJUNK MŰKÖDNI AZ ÖN INGATLANÁNAK AZ ÉRTÉKESÍTÉSÉBEN IS!



