New Palace II. ütem
A New Palace a XIII. kerület csendes részén épül. A megújult kertvárosias környezet a pesti oldal egyik legkedveltebb részei közé tartozik, az itt élők egyszerre élvezhetik a csöndes kis utcák nyugalmát és a belváros közelségét.
A társasház különleges, extravagáns homlokzatával egyedi fiatalos dizájnjával, kiemelkedik a környező épületek közül és ezáltal lesz majd sokáig a környék ismert és meghatározó tájékozódási pontja. A már eddig is komoly fejlődésen és megújuláson átesett városrész a projekt megvalósulásával beírja magát a kerület új városrészei közé.
A földszint + 12 emelet magas épületet elegáns, kertépítők által tervezet parkok veszik körül, megreformálva a társasház környezetét is. A zárt, csak a társasház lakói által megközelíthető udvaron fákkal, cserjékkel tarkított, füvesített zöldkert kerül kialakításra.
A lakások két elegáns, egymástól elkülönülő lobbyn keresztül közelíthetőek meg, lépcsőházanként két-két lifttel. A lakáskínálatban az egyszobás lakástól egészen a négyszobásig mindenféle elosztású megoldás megtalálható, a kínálatban alig van két egyforma lakás. Minden lakás rendelkezik erkéllyel vagy terasszal, a földszinti és néhány exkluzív emeleti lakás pedig, intenzív zöldtetővel, saját kertrésszel.
Figyelembe véve a jövő elvárásait, a társasház modern, környezetbarát, mennyezeti hűtő, -fűtő rendszerrel ellátott.
Vevőinknek lehetőségük nyílik arra is, hogy megvásárolt otthonukat az utolsó részletig személyre szabhassák: módosítással élhetnek otthonuk elosztása tekintetében is, továbbá széles kollekcióból választhatnak meleg- és hideg burkolatokat. Az alapáras burkolatokon felül, elérhetőek feláras termékek is, mely biztosítja, hogy személyiségük otthonukban is vissza tükröződhessen.
Az infrastruktúra is magáért beszél: a közeli Váci út kiváló közlekedése és bevásárlási lehetőségei, a megújult 3-as metró Gyöngyösi utcai megállója rövid sétával elérhető, hasonlóan az idilli hangulatú Gyöngyösi sétányhoz, mely a kerület egyik legkedveltebb részei közé tartozik. Szintén pár perc sétatávolságra a folyamatosan megújuló és minden igényt kielégítő Duna Pláza bevásárlóközpont (benne: SPAR, gyógyszertár, Rossmann, DM, Médiamarkt, tisztító, fodrászatok, virágbolt, Libri könyvesbolt, papír-írószerbolt és számos ruházati bolt. Kényelmesen megoldható a napi fogyasztási cikkek beszerzése is a nap bármely órájában a közvetlen közelben lévő Tesco áruházban és az üzletsoron lévő boltokban. A lakópark tágabb vonzáskörzetében de még mindig elérhető távolságban találjuk Újpest-központot, a Népszigetet és az Újpest vasútállomást.
Irodánkban a legtöbb XIII. kerületi beruházás lakásai elérhetőek ügyfeleink számára.
A jelen adatok tájékoztató jellegűek, ezért a Beruházó (sem a hirdető) azok változásával, vagy bármely attól való eltéréssel kapcsolatban semmilyen kötelezettséget, vagy felelősséget nem vállal.
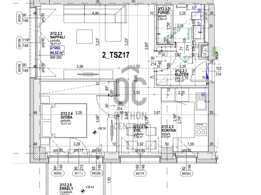
Az alaprajzokon ábrázolt berendezési tárgyak és bútorok, a burkolatok megjelenése nem képezi a szerződés tárgyát. A pontos felszereltségről a műszaki leírásban olvashat bővebben.
Az aktuális lakáskínálatról és árakról érdeklődjön telefonon!
A New Palace a XIII. kerület csendes részén épül. A megújult kertvárosias környezet a pesti oldal egyik legkedveltebb részei közé tartozik, az itt élők egyszerre élvezhetik a csöndes kis utcák nyugalmát és a belváros közelségét.
A társasház különleges, extravagáns homlokzatával egyedi fiatalos dizájnjával, kiemelkedik a környező épületek közül és ezáltal lesz majd sokáig a környék ismert és meghatározó tájékozódási pontja. A már eddig is komoly fejlődésen és megújuláson átesett városrész a projekt megvalósulásával beírja magát a kerület új városrészei közé.
A földszint + 12 emelet magas épületet elegáns, kertépítők által tervezet parkok veszik körül, megreformálva a társasház környezetét is. A zárt, csak a társasház lakói által megközelíthető udvaron fákkal, cserjékkel tarkított, füvesített zöldkert kerül kialakításra.
A lakások két elegáns, egymástól elkülönülő lobbyn keresztül közelíthetőek meg, lépcsőházanként két-két lifttel. A lakáskínálatban az egyszobás lakástól egészen a négyszobásig mindenféle elosztású megoldás megtalálható, a kínálatban alig van két egyforma lakás. Minden lakás rendelkezik erkéllyel vagy terasszal, a földszinti és néhány exkluzív emeleti lakás pedig, intenzív zöldtetővel, saját kertrésszel.
Figyelembe véve a jövő elvárásait, a társasház modern, környezetbarát, mennyezeti hűtő, -fűtő rendszerrel ellátott.
Vevőinknek lehetőségük nyílik arra is, hogy megvásárolt otthonukat az utolsó részletig személyre szabhassák: módosítással élhetnek otthonuk elosztása tekintetében is, továbbá széles kollekcióból választhatnak meleg- és hideg burkolatokat. Az alapáras burkolatokon felül, elérhetőek feláras termékek is, mely biztosítja, hogy személyiségük otthonukban is vissza tükröződhessen.
Az infrastruktúra is magáért beszél: a közeli Váci út kiváló közlekedése és bevásárlási lehetőségei, a megújult 3-as metró Gyöngyösi utcai megállója rövid sétával elérhető, hasonlóan az idilli hangulatú Gyöngyösi sétányhoz, mely a kerület egyik legkedveltebb részei közé tartozik. Szintén pár perc sétatávolságra a folyamatosan megújuló és minden igényt kielégítő Duna Pláza bevásárlóközpont (benne: SPAR, gyógyszertár, Rossmann, DM, Médiamarkt, tisztító, fodrászatok, virágbolt, Libri könyvesbolt, papír-írószerbolt és számos ruházati bolt. Kényelmesen megoldható a napi fogyasztási cikkek beszerzése is a nap bármely órájában a közvetlen közelben lévő Tesco áruházban és az üzletsoron lévő boltokban. A lakópark tágabb vonzáskörzetében de még mindig elérhető távolságban találjuk Újpest-központot, a Népszigetet és az Újpest vasútállomást.
Irodánkban a legtöbb XIII. kerületi beruházás lakásai elérhetőek ügyfeleink számára.
A jelen adatok tájékoztató jellegűek, ezért a Beruházó (sem a hirdető) azok változásával, vagy bármely attól való eltéréssel kapcsolatban semmilyen kötelezettséget, vagy felelősséget nem vállal.
Az alaprajzokon ábrázolt berendezési tárgyak és bútorok, a burkolatok megjelenése nem képezi a szerződés tárgyát. A pontos felszereltségről a műszaki leírásban olvashat bővebben.
Az aktuális lakáskínálatról és árakról érdeklődjön telefonon!




