238,000,000 Ft
665,000 €
- 137m²
- ground floor
Newly Built Commercial Space for Sale!
I am offering for sale a newly constructed unit located on the ground floor of a building, situated in the vicinity of Lőportárdűlő, close to the City Center - City Park - Margaret Island - Westend City Center - Váci Road Office Corridor, surrounded by newly built residential complexes. The exceptional visibility and significant traffic provide an ideal backdrop for business, office, or investment use. It could also be suitable for a company headquarters or a showroom, as well as various retail or service-oriented businesses. Total Area: 171 m²
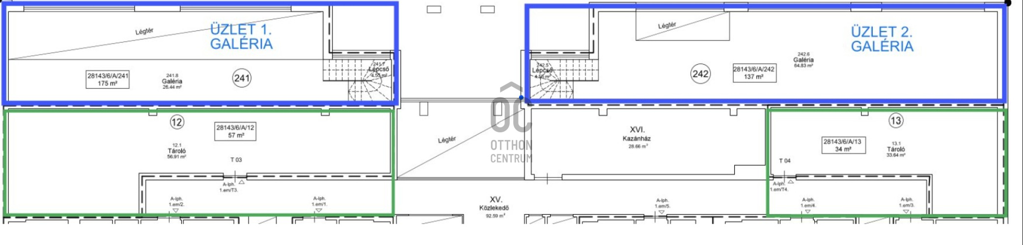
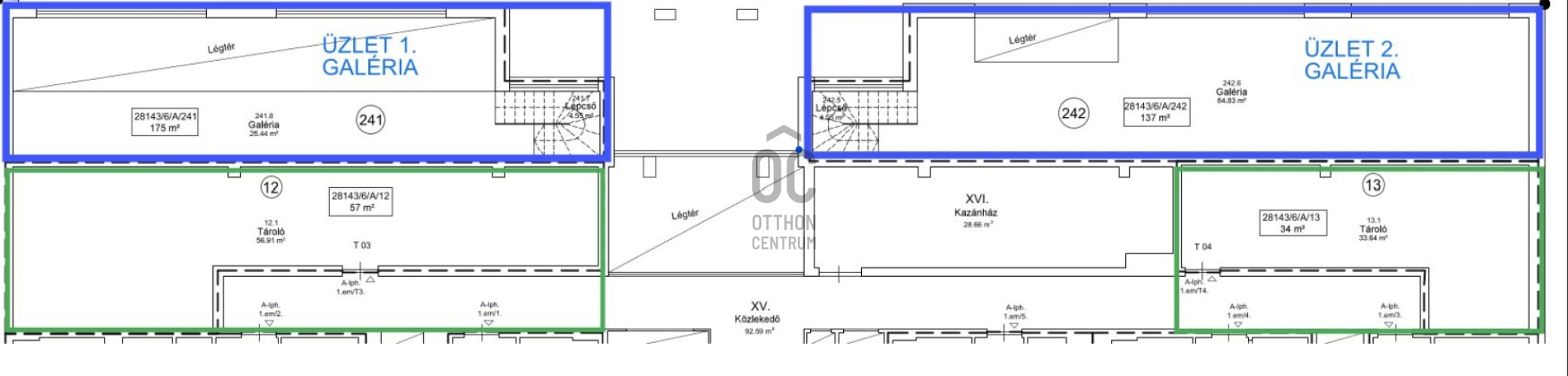
Retail Space: 137 m²* *Storage on the Gallery: +34 m² (can be combined with the retail space if desired)
Layout: Ground floor + Gallery
Condition: Shell and core – customizable according to personal needs
Modern Technical Features
Preparation for ceiling cooling and heating
Preparation for underfloor heating
Purchase Price: 238 million HUF + VAT*
The location also offers numerous advantages in terms of transportation. The M3 metro line, tram lines 12 and 14, and several bus routes are all just a stone's throw away, making it easily accessible for those traveling by car as well. The proximity to Budapest's most popular office market location, the Váci Road Office Corridor, is also a significant advantage from an investment perspective. For more information and to arrange a viewing, please feel free to call!
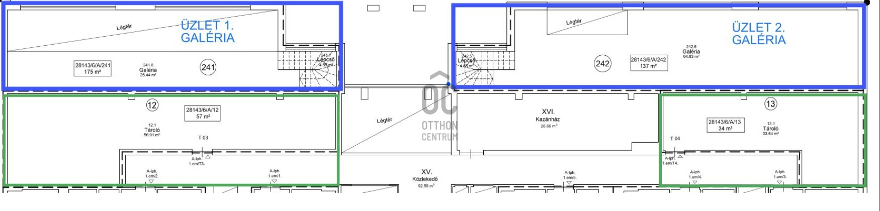
Retail Space: 137 m²* *Storage on the Gallery: +34 m² (can be combined with the retail space if desired)
Layout: Ground floor + Gallery
Condition: Shell and core – customizable according to personal needs
Modern Technical Features
Preparation for ceiling cooling and heating
Preparation for underfloor heating
Purchase Price: 238 million HUF + VAT*
The location also offers numerous advantages in terms of transportation. The M3 metro line, tram lines 12 and 14, and several bus routes are all just a stone's throw away, making it easily accessible for those traveling by car as well. The proximity to Budapest's most popular office market location, the Váci Road Office Corridor, is also a significant advantage from an investment perspective. For more information and to arrange a viewing, please feel free to call!
Registration Number
UZ019433
Property Details
Sales
for sale
Legal Status
new
Character
commercial
Type of Business Property
part of building
Construction Method
brick
Net Size
137 m²
Above-Ground Net Size
137 m²
Heating
heat pump
Ceiling Height
300 cm
Condition
Excellent
Condition of Facade
Excellent
Condition of Staircase
Excellent
Year of Construction
2025
Water
Available
Electricity
Available
Sewer
Available
Visibility
Easily visible on a high foot traffic street
Accessibility
Entrance from high foot traffic street
Utilization
vacant
Németh István
Credit Expert