549,000 Ft
1,440 €
- 105m²
- 2nd floor
I.ker. Történelmi hangulatú környezetben, patinás épületek, középkori eredetű műemlékek ölelésében, több helyiségből
álló iroda kiadó.
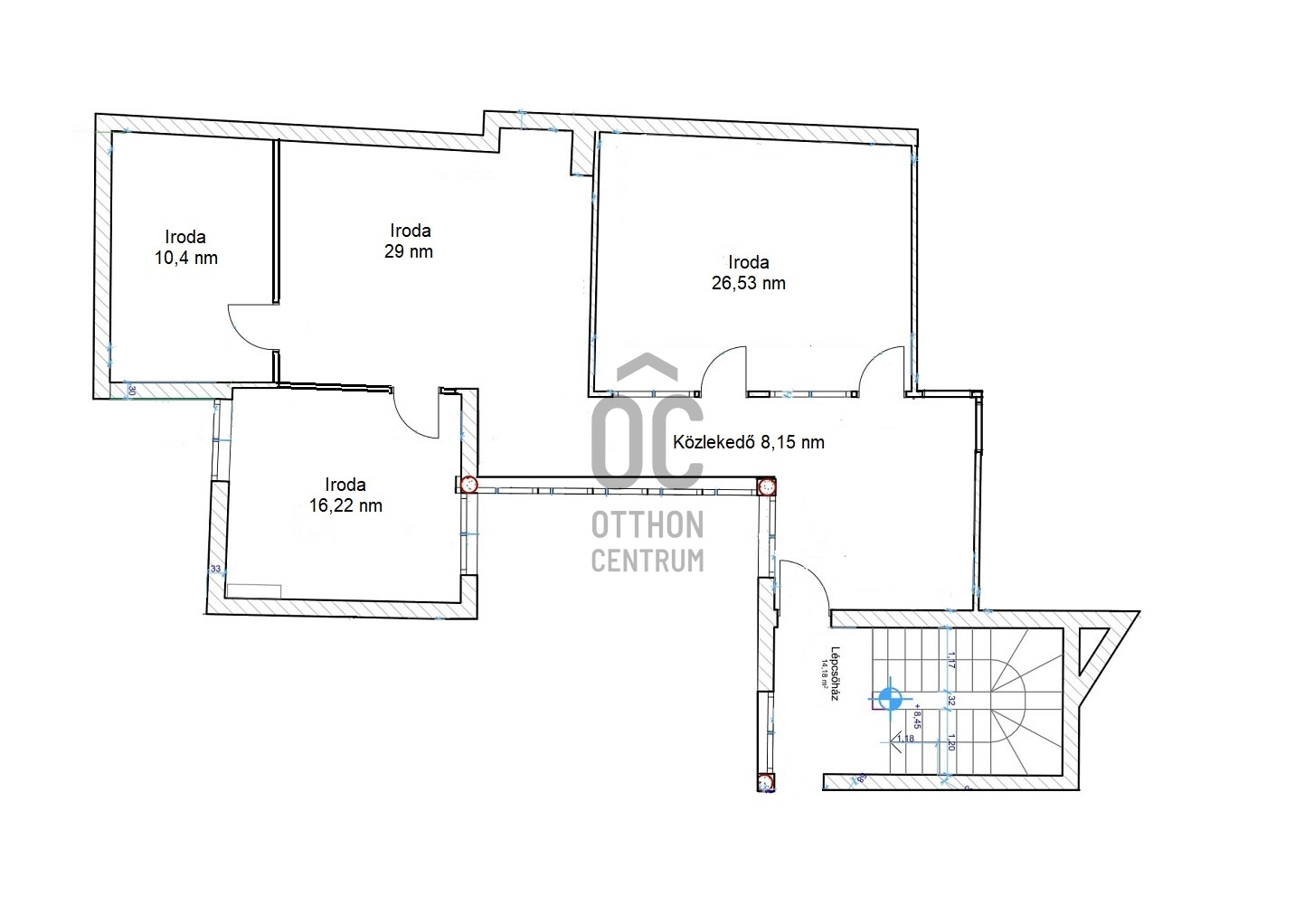
- jelenleg 4 helyiségre osztva, de igény szerint a belső elosztás módosítható,
- 2. emeleti, lift nincs,
- a közösségi terek használatát a bérlati díj tartalmazza ( mosdó, földszinti lobby, konyha-ebédlő )
- a tágas helyiségek, légkondicionáltak, napfényesek,
- a földszinti konferenciaterem és impozáns tárgyaló külön bérelhető akár egy-egy napra is ( épületen belül) .
- bútorozatlanok,
- az elegáns épületben több cég irodái működnek,
- bérleti díj: 13,0 EUR / nm
- üzemeltetési díj: 3 EUR / nm
- elektromos áram és gáz átalány külön fizetendő,
- takarítás (opcionális): külön díj ellenében.
- beltéri teremgarázs parkolási lehetőség: 35.000 HUF + ÁFA / hó díjért
- azonnal költözhető,
- Clark Ádám tér és a Batthyány tér között helyezkedik el, jól megközelíthető BKV járatokkal, ( villamosok, buszok, metró
pár perc séta )
- A modern építészet és a masszív középkori falak, freskók jól megférnek egymással az épületben, amely őrzi a régi
idők hangulatát.
álló iroda kiadó.
- jelenleg 4 helyiségre osztva, de igény szerint a belső elosztás módosítható,
- 2. emeleti, lift nincs,
- a közösségi terek használatát a bérlati díj tartalmazza ( mosdó, földszinti lobby, konyha-ebédlő )
- a tágas helyiségek, légkondicionáltak, napfényesek,
- a földszinti konferenciaterem és impozáns tárgyaló külön bérelhető akár egy-egy napra is ( épületen belül) .
- bútorozatlanok,
- az elegáns épületben több cég irodái működnek,
- bérleti díj: 13,0 EUR / nm
- üzemeltetési díj: 3 EUR / nm
- elektromos áram és gáz átalány külön fizetendő,
- takarítás (opcionális): külön díj ellenében.
- beltéri teremgarázs parkolási lehetőség: 35.000 HUF + ÁFA / hó díjért
- azonnal költözhető,
- Clark Ádám tér és a Batthyány tér között helyezkedik el, jól megközelíthető BKV járatokkal, ( villamosok, buszok, metró
pár perc séta )
- A modern építészet és a masszív középkori falak, freskók jól megférnek egymással az épületben, amely őrzi a régi
idők hangulatát.
Registration Number
UZ018280
Property Details
Sales
for rent
Legal Status
used
Character
commercial
Type of Business Property
part of building
Construction Method
brick
Net Size
105 m²
Above-Ground Net Size
105 m²
Heating
mixed fan-coil
Ceiling Height
280 cm
Number of Levels Within the Property
1
View
city view
Condition
Excellent
Condition of Facade
Excellent
Condition of Staircase
Excellent
Water
Available
Electricity
Available
Sewer
Available
Distance to Waterfront
200 meters
Possible Functions
office
Visibility
Located on a side street
Accessibility
Entrance from side street
Utilization
vacant
Ruczek Krisztina
Credit Expert