3,473,100,000 Ft
9,000,000 €
- 14,000m²
Az ingatlanban jelenleg egy 500 ágyas jól menő munkásszálló működik.
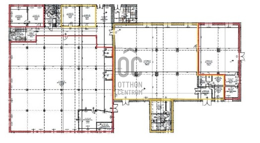
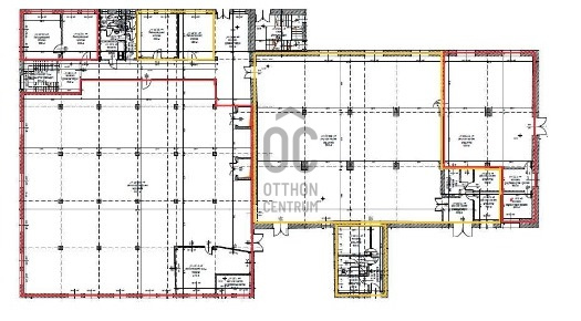
A területen 4 önálló felépítmény található, az alábbiak szerint:
A ép:3370 m2, 300 férőhelyes munkásszálló
B ép:2390 m2, 109 férőhelyes munkásszálló
C ép:3893 m2, irodák, raktárak, üzlet, munkásszálló 59 férőhely
Lakótömb:1143 m2, lakások, közös helyiségek, 54 férőhely
Épületek nettó alapterülete mindösszesen: 10797 m2. Telekméret: 13017 m2. Beépíthetőség: 45%.
A munkásszállón 2-5 ágyas szobák vannak, szintenként korszerű főzőkonyha, valamint minden szobában mosdó és televízió csatlakozási lehetőség van. Emeletráépítéssel potenciálisan továbbfejleszthető, akár újabb vendégszobák kialakítására is van lehetőség.
Az ingatlan mind gépkocsival mind tömegközlekedéssel jól megközelíthető.
Az eladási ár nettó ár további áfa terheli.
A területen 4 önálló felépítmény található, az alábbiak szerint:
A ép:3370 m2, 300 férőhelyes munkásszálló
B ép:2390 m2, 109 férőhelyes munkásszálló
C ép:3893 m2, irodák, raktárak, üzlet, munkásszálló 59 férőhely
Lakótömb:1143 m2, lakások, közös helyiségek, 54 férőhely
Épületek nettó alapterülete mindösszesen: 10797 m2. Telekméret: 13017 m2. Beépíthetőség: 45%.
A munkásszállón 2-5 ágyas szobák vannak, szintenként korszerű főzőkonyha, valamint minden szobában mosdó és televízió csatlakozási lehetőség van. Emeletráépítéssel potenciálisan továbbfejleszthető, akár újabb vendégszobák kialakítására is van lehetőség.
Az ingatlan mind gépkocsival mind tömegközlekedéssel jól megközelíthető.
Az eladási ár nettó ár további áfa terheli.
Registration Number
UZ008687
Property Details
Sales
for sale
Legal Status
used
Character
commercial
Type of Business Property
entire building
Construction Method
brick
Net Size
14,000 m²
Gross Size
13,017 m²
Plot Size
13,017 m²
Above-Ground Net Size
14,000 m²
Ceiling Height
300 cm
Number of Levels Within the Property
1
Condition
Good
Condition of Facade
Good
Number of Bathrooms
1
Water
Available
Gas
Available
Electricity
Available
Sewer
Available
Possible Functions
guesthouse, hostel
Utilization
vacant