570,000,000 Ft
1,467,000 €
- 215m²
- 5 Rooms
Premium new-build home in Remetekertváros
Newly built family house with private pool in a landscaped setting
WELCOME HOME!
Clean, contemporary architecture, true green surroundings and high technical standards – an independent family home that forms a carefully designed harmony with its garden.
THE PROPERTY AND ITS SURROUNDINGS
Three separate houses on a large plot (each with its own lot number), in a tastefully landscaped environment:
- carefully planned planting
- lawn areas
- garden with automatic irrigation system
- 6×3 m private pool – home wellness directly off the living room terrace
Only one house remains for sale.
KEY DATA
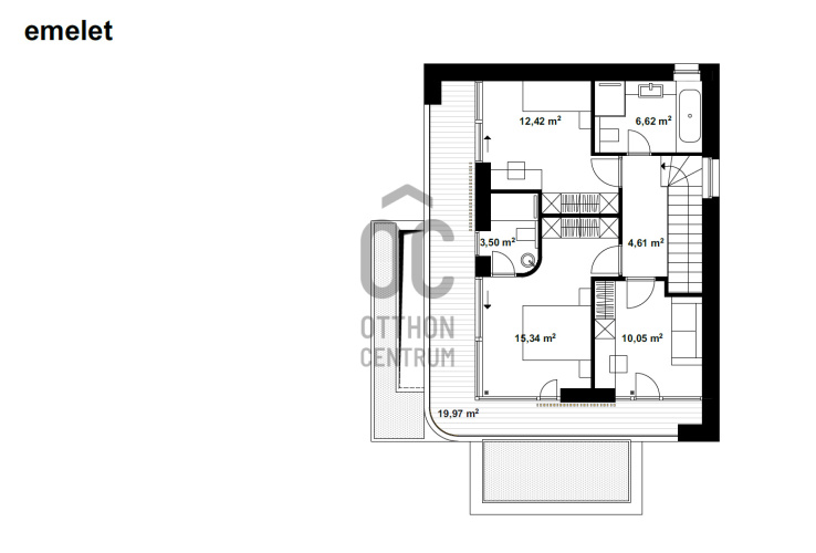
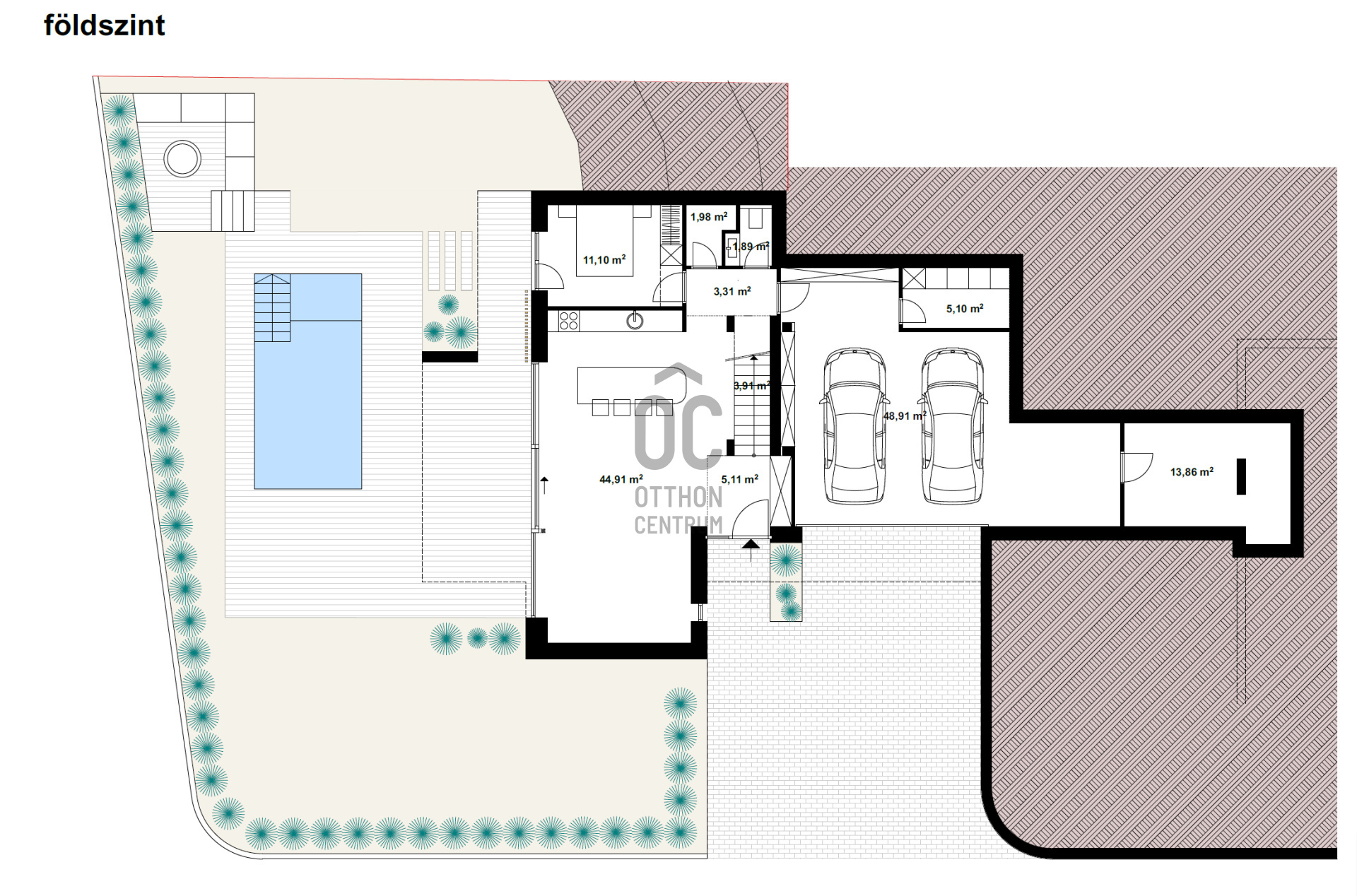
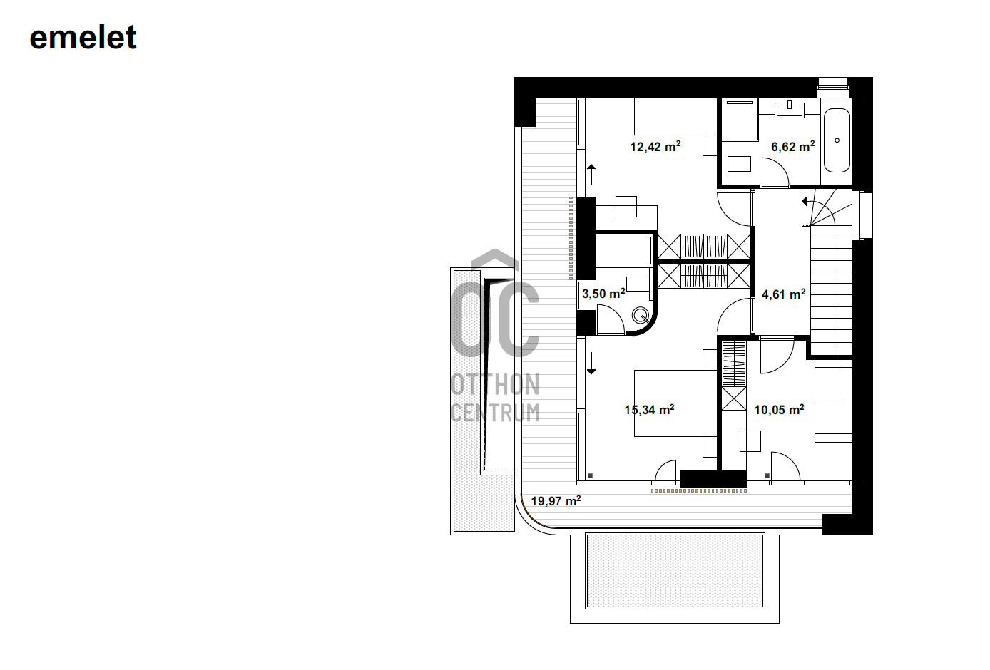
- Net usable floor area: 193 m²
- Terrace: 44 m²
- Separate pool: 18 m²
- Gross floor area: 215 m²
- Private garden with exclusive use: 520 m²
Functional layout:
- Living room + 4 bedrooms
- 2 bathrooms
- 1 separate WC
- Storage
- Heated garage for 3 cars
- Utility / laundry room
- Technical / plant room
TECHNICAL SPECIFICATION – HEAT PUMP, COMFORT, ENERGY EFFICIENCY
- Individual heat pump system
- Ceiling cooling and heating, individually controllable in each room
- Underfloor heating for even, comfortable temperatures
- 30 cm Porotherm X‑Therm “smart brick” external walls
- 20 cm Dryvit external thermal insulation – modern, energy-efficient building envelope
TURNKEY DELIVERY – PREMIUM DETAILS INCLUDED
The house is completed; the price includes:
- Cohesive interior design concept by an interior designer
- Custom-made interior doors by carpenter
- Built‑in bathroom cabinets
- Premium TRES taps and fittings
- Fully fitted NOBILIA kitchen with appliances
- Outside: landscaping, irrigation system, private pool
WHO IS THIS HOME IDEAL FOR?
For someone who:
- is looking not just for a new house, but for a complete living environment,
- values high technical quality and lower running costs,
- considers a private garden and own pool essential,
- thinks long term and wants a stable, premium, value‑retaining home.
For you, buying such a property is not an everyday event – for me, every day is about this.
If you would like to go through the technical details and possible customisation options, feel free to contact me – let’s see together what this home can offer you.
Budapest, Buda, District II, Remetekertváros, house for sale, new build, 5 rooms, living room + 4 bedrooms, 2 bathrooms, guest WC, 3‑car garage, large terrace, pool
WELCOME HOME!
Clean, contemporary architecture, true green surroundings and high technical standards – an independent family home that forms a carefully designed harmony with its garden.
THE PROPERTY AND ITS SURROUNDINGS
Three separate houses on a large plot (each with its own lot number), in a tastefully landscaped environment:
- carefully planned planting
- lawn areas
- garden with automatic irrigation system
- 6×3 m private pool – home wellness directly off the living room terrace
Only one house remains for sale.
KEY DATA
- Net usable floor area: 193 m²
- Terrace: 44 m²
- Separate pool: 18 m²
- Gross floor area: 215 m²
- Private garden with exclusive use: 520 m²
Functional layout:
- Living room + 4 bedrooms
- 2 bathrooms
- 1 separate WC
- Storage
- Heated garage for 3 cars
- Utility / laundry room
- Technical / plant room
TECHNICAL SPECIFICATION – HEAT PUMP, COMFORT, ENERGY EFFICIENCY
- Individual heat pump system
- Ceiling cooling and heating, individually controllable in each room
- Underfloor heating for even, comfortable temperatures
- 30 cm Porotherm X‑Therm “smart brick” external walls
- 20 cm Dryvit external thermal insulation – modern, energy-efficient building envelope
TURNKEY DELIVERY – PREMIUM DETAILS INCLUDED
The house is completed; the price includes:
- Cohesive interior design concept by an interior designer
- Custom-made interior doors by carpenter
- Built‑in bathroom cabinets
- Premium TRES taps and fittings
- Fully fitted NOBILIA kitchen with appliances
- Outside: landscaping, irrigation system, private pool
WHO IS THIS HOME IDEAL FOR?
For someone who:
- is looking not just for a new house, but for a complete living environment,
- values high technical quality and lower running costs,
- considers a private garden and own pool essential,
- thinks long term and wants a stable, premium, value‑retaining home.
For you, buying such a property is not an everyday event – for me, every day is about this.
If you would like to go through the technical details and possible customisation options, feel free to contact me – let’s see together what this home can offer you.
Budapest, Buda, District II, Remetekertváros, house for sale, new build, 5 rooms, living room + 4 bedrooms, 2 bathrooms, guest WC, 3‑car garage, large terrace, pool
Registration Number
U0049515
Property Details
Sales
for sale
Legal Status
new
Character
house
Construction Method
brick
Net Size
215 m²
Gross Size
215 m²
Plot Size
520 m²
Size of Terrace / Balcony
45 m²
Heating
heat pump
Ceiling Height
280 cm
Number of Levels Within the Property
1
Orientation
West
View
city view, Green view
Condition
Excellent
Condition of Facade
Excellent
Neighborhood
quiet, green
Year of Construction
2025
Number of Bathrooms
2
Garage
Included in the price
Garage Spaces
3
Water
Available
Gas
On the street
Electricity
Available
Sewer
Available
Rooms
open-plan kitchen and living room
44.9 m²
bedroom
11.1 m²
pantry
2 m²
toilet-washbasin
1.9 m²
bedroom
15.3 m²
bedroom
12.4 m²
bedroom
10.1 m²
bathroom-toilet
6.6 m²
bathroom-toilet
3.5 m²
Tóth Róbert
Credit Expert