data_sheet.details.realestate.section.main.otthonstart_flag.label
For sale new construction family house,
U0049062
Hajdúsámson
97,500,000 Ft
258,000 €
- 93m²
- 3 Rooms
Az otthon, ahol a minőség alapfelszereltség
Hajdúsámson csendes részén, rövid időn belül beköltözhető, modern családi ház eladó!
Az ingatlan egy 93 m²-es, új építésű, korszerű kialakítású 3 szobás + amerikai konyhás-nappalis családi ház, amely kimagasló műszaki tartalommal és energiahatékonysággal készül.
Szerkezet és szigetelés
- 30 cm-es Porotherm/Leier tégla falazat
- 15 cm homlokzati EPS hőszigetelés
- 10 cm XPS lábazati szigetelés
- 30 cm födémszigetelés
- 3 rétegű üvegezésű, 6 légkamrás műanyag nyílászárók
Fűtés és gépészet
- korszerű padlófűtés
- a vételár része 2 db inverteres klíma
- a modern technológiának köszönhetően rendkívül alacsony fenntartási költség várható
Közműellátás
- A kivitelező a közművek telken belüli csatlakoztatását elvégzi, amennyiben erre adott a lehetőség.
- Városi víz hiányában házi vízmű kerül kialakításra
- Csatornahálózat hiányában 3 m³-es zárt szennyvíztartály készül (igény szerint nagyobb kapacitásúra is cserélhető, azonban ez nem része az alapárnak)
A ház jelenleg körülbelül 70%-os készültségi szinten áll, a tervezett átadás 3–4 hónapon belül várható.
Az ingatlan kiváló választás mindazoknak, akik megbízható kivitelezésű, jól szigetelt, energiatakarékos és alacsony rezsijű új otthont keresnek nyugodt, csendes környezetben, mégis elérhető közelségben a várostól.
Az ingatlan egy 93 m²-es, új építésű, korszerű kialakítású 3 szobás + amerikai konyhás-nappalis családi ház, amely kimagasló műszaki tartalommal és energiahatékonysággal készül.
Szerkezet és szigetelés
- 30 cm-es Porotherm/Leier tégla falazat
- 15 cm homlokzati EPS hőszigetelés
- 10 cm XPS lábazati szigetelés
- 30 cm födémszigetelés
- 3 rétegű üvegezésű, 6 légkamrás műanyag nyílászárók
Fűtés és gépészet
- korszerű padlófűtés
- a vételár része 2 db inverteres klíma
- a modern technológiának köszönhetően rendkívül alacsony fenntartási költség várható
Közműellátás
- A kivitelező a közművek telken belüli csatlakoztatását elvégzi, amennyiben erre adott a lehetőség.
- Városi víz hiányában házi vízmű kerül kialakításra
- Csatornahálózat hiányában 3 m³-es zárt szennyvíztartály készül (igény szerint nagyobb kapacitásúra is cserélhető, azonban ez nem része az alapárnak)
A ház jelenleg körülbelül 70%-os készültségi szinten áll, a tervezett átadás 3–4 hónapon belül várható.
Az ingatlan kiváló választás mindazoknak, akik megbízható kivitelezésű, jól szigetelt, energiatakarékos és alacsony rezsijű új otthont keresnek nyugodt, csendes környezetben, mégis elérhető közelségben a várostól.
Registration Number
U0049062
Property Details
Sales
for sale
Legal Status
new
Character
house
Construction Method
brick
Net Size
93 m²
Gross Size
127 m²
Plot Size
728 m²
Size of Terrace / Balcony
24 m²
Heating
Gas circulator
Ceiling Height
260 cm
Orientation
North
Condition
Excellent
Condition of Facade
Excellent
Neighborhood
quiet
Year of Construction
2025
Number of Bathrooms
2
Water
On the street
Gas
Available
Electricity
Available
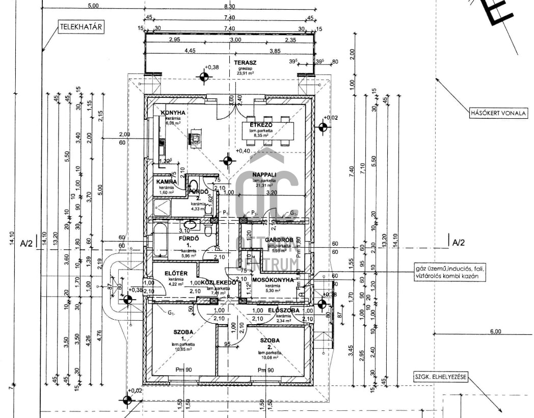
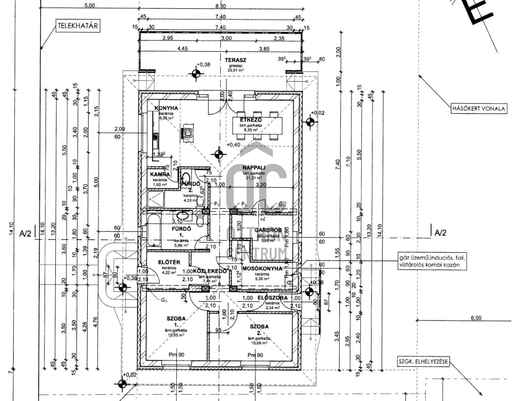
Rooms
bedroom
10.85 m²
bedroom
10 m²
bedroom
21.31 m²
open-plan kitchen and dining room
14.43 m²
pantry
1.6 m²
bathroom-toilet
4.33 m²
bathroom-toilet
5.96 m²
entryway
4.22 m²
corridor
7.41 m²
wardrobe
5.98 m²
entryway
2.34 m²
laundry room
5.3 m²
entryway
4.22 m²
terrace
23.91 m²
Czellér András
Credit Expert