For sale new construction family house, U0048981
Telki

180,000,000 Ft

466,000 €

  • 142m²
  • 4 Rooms

Telki. Újépítésű.

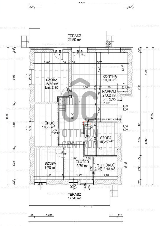
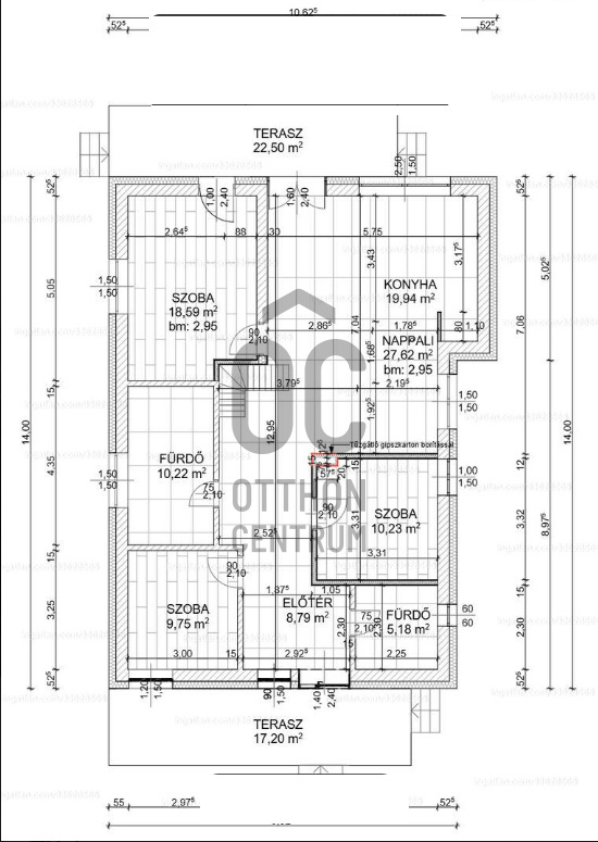
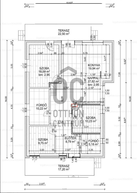
Eladó Telkiben új építésű, K. ÉK.-i fekvésű, családi ház, csendes mellékutcában. Alap, falak, födém és tető szigetelt. A Minimál stílusú épület nappali-étkező- konyha, előtér (bejárat), kettő fürdőszoba (káddal és zuhanyzóval), három hálószoba, kettő félszoba (padlástérben), közlekedő valamint előszoba. A nappaliból valamint a konyhából a kényelmes, kertkapcsolatos teraszra lehet kilépni. A kertben kettő – három autónak nyitott gépkocsibeálló került kialakításra, betonozott, térkövezett. Kívülről a már végleges arculatával kerül átadásra az ingatlan, új kerítéssel, automatizált kapuval. A kert terep-rendezetten, füvesítve, (benne már koros fák, találhatóak), továbbá kerti csap és kerti világítás is kialakításra került. Továbbá a kertben kicsi faházikó van, egyéb tárolási lehetőséget biztosít, benne víz és csatorna kiállásokkal. A mai korszerű igényeknek megfelelően kiváló műszaki és energetikai paraméterek. Cserépfedés. Falazat 30-as Porotherm tégla 20 cm szigeteléssel, a tetőn 25 cm. – 30 cm. szigetelés. 10 Kw-os energiatakarékos levegő- vizes Hőszivattyú fűtés, padlófűtéssel és fan-coil rendszerű hűtéssel. Fatüzelésű kandalló kialakítva. Napelemrendszer vezetékezése előkészítve (igény szerint kiépítés). Három rétegű szigetelő műanyag (bukó - nyíló) nyílászárók. Biztonsági bejárati ajtó. Kaputelefon. TV és Internethez szükséges vezetékezés.

Registration Number

U0048981

Property Details

Sales
for sale
Legal Status
new
Character
house
Construction Method
brick
Net Size
142 m²
Gross Size
206 m²
Plot Size
707 m²
Size of Terrace / Balcony
40 m²
Heating
heat pump
Ceiling Height
270 cm
Number of Levels Within the Property
2
Orientation
North-East
Condition
Excellent
Condition of Facade
Excellent
Neighborhood
quiet, good transport, green
Year of Construction
2025
Number of Bathrooms
2
Condominium Garden
yes
Water
Available
Electricity
Available
Sewer
Available
Storage
Independent

Rooms

open-plan kitchen and living room
47 m²
room
18.5 m²
room
13 m²
room
12 m²
bathroom-toilet
13 m²
bathroom-toilet
9 m²
corridor
13 m²
room
13 m²
room
10.5 m²
Bitó István
Bitó István

Credit Expert

From Our Office Listings - Budaörs - Templom tér

for sale panel apartment

Index image
data_sheet.details.realestate.section.main.otthonstart_flag.label
30

for sale semi-detached house

Index image
32

for sale new construction semi-detached house

Index image
data_sheet.details.realestate.section.main.otthonstart_flag.label
5

for sale new construction semi-detached house

Index image
data_sheet.details.realestate.section.main.otthonstart_flag.label
6

for rent apartment

Index image
11

for sale apartment

Index image
24

for sale family house

Index image
14

for sale apartment

Index image
17

for sale family house

Index image
25