223,000,000 Ft
585,000 €
- 159m²
- 5 Rooms
Új építésű, kulcsrakész családi ház a XV. kerületben, a Berezedi Pál utcában!
Eladó egy kiváló elrendezésű, kétszintes, 140 m²-es családi ház egy 350 m²-es telken, Budapest 15. kerületének egyik csendes, rendezett utcájában, a Berezedi Pál utcában.
Az ingatlan modern, energiatakarékos építészeti megoldásokkal készül, cirkó fűtéssel, korszerű hőszigeteléssel, és tágas, napfényes terekkel.
Főbb jellemzők:
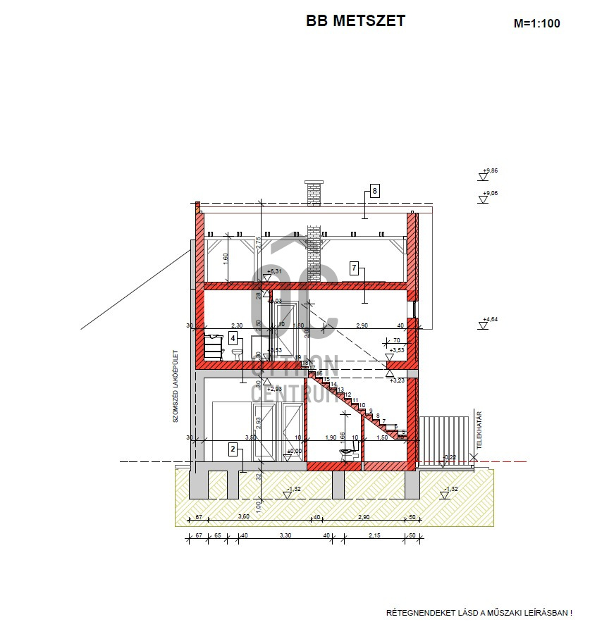
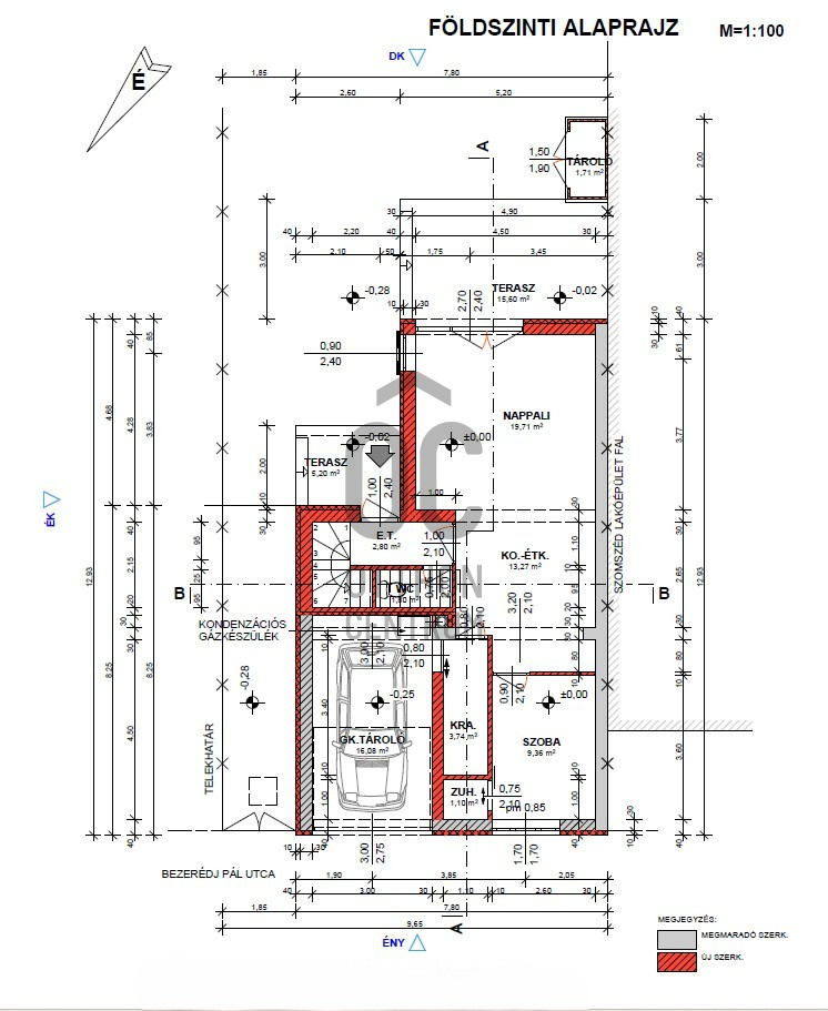
•Hasznos alapterület: 140 m²
•Telek mérete: 350 m²
•Szintek száma: 2
•Szobák száma: 5
•Fűtés: cirkó
•Saját garázs a ház elején, közvetlen bejárattal
•Tágas nappali-konyha-étkező egy légtérben
•Kertkapcsolatos terasz
•Világos, jól kihasználható terek
A ház építése jelenleg folyamatban van, így az új tulajdonosnak lehetősége van a belső burkolatok és nyílászárók egyedi kiválasztására, saját ízlése szerint alakítva az otthon hangulatát.
A tetőtér szigetelt kevés ráfordítással beépíthető, ezzel is növelve a hasznos alapterületet.
Környék és elhelyezkedés:
A Berezedi Pál utca csendes, családi házas övezetben található, kiváló infrastruktúrával és jó közlekedéssel. A közelben:
•bevásárlási lehetőségek (Lidl, Aldi, Spar),
•iskolák, óvodák,
•orvosi rendelő, gyógyszertár,
•parkok, sportolási lehetőségek,
•buszmegállók pár perc sétára, amelyekkel gyorsan elérhető az M3-as metró és a belváros is.
Ez a ház ideális választás családoknak, akik nyugodt, biztonságos környezetben szeretnének élni, modern, új építésű otthonban, ugyanakkor elérhető közelségben a város nyüzsgésétől.
Eladó egy kiváló elrendezésű, kétszintes, 140 m²-es családi ház egy 350 m²-es telken, Budapest 15. kerületének egyik csendes, rendezett utcájában, a Berezedi Pál utcában.
Az ingatlan modern, energiatakarékos építészeti megoldásokkal készül, cirkó fűtéssel, korszerű hőszigeteléssel, és tágas, napfényes terekkel.
Főbb jellemzők:
•Hasznos alapterület: 140 m²
•Telek mérete: 350 m²
•Szintek száma: 2
•Szobák száma: 5
•Fűtés: cirkó
•Saját garázs a ház elején, közvetlen bejárattal
•Tágas nappali-konyha-étkező egy légtérben
•Kertkapcsolatos terasz
•Világos, jól kihasználható terek
A ház építése jelenleg folyamatban van, így az új tulajdonosnak lehetősége van a belső burkolatok és nyílászárók egyedi kiválasztására, saját ízlése szerint alakítva az otthon hangulatát.
A tetőtér szigetelt kevés ráfordítással beépíthető, ezzel is növelve a hasznos alapterületet.
Környék és elhelyezkedés:
A Berezedi Pál utca csendes, családi házas övezetben található, kiváló infrastruktúrával és jó közlekedéssel. A közelben:
•bevásárlási lehetőségek (Lidl, Aldi, Spar),
•iskolák, óvodák,
•orvosi rendelő, gyógyszertár,
•parkok, sportolási lehetőségek,
•buszmegállók pár perc sétára, amelyekkel gyorsan elérhető az M3-as metró és a belváros is.
Ez a ház ideális választás családoknak, akik nyugodt, biztonságos környezetben szeretnének élni, modern, új építésű otthonban, ugyanakkor elérhető közelségben a város nyüzsgésétől.
Registration Number
U0048909
Property Details
Sales
for sale
Legal Status
new
Character
house
Construction Method
brick
Net Size
159 m²
Gross Size
166 m²
Plot Size
350 m²
Size of Terrace / Balcony
24.5 m²
Heating
Gas circulator
Ceiling Height
275 cm
Number of Levels Within the Property
2
Orientation
North-West
Condition
Excellent
Condition of Facade
Excellent
Neighborhood
quiet, good transport
Year of Construction
2025
Number of Bathrooms
2
Garage
Included in the price
Garage Spaces
1
Water
Available
Gas
Available
Electricity
Available
Sewer
Available
Rooms
living room
19.71 m²
open-plan kitchen and dining room
13.27 m²
entryway
2.8 m²
toilet
1.8 m²
room
9.36 m²
garage
16.08 m²
bedroom
19.13 m²
balcony
3.75 m²
entryway
3.78 m²
bathroom
9.06 m²
corridor
7.36 m²
room
14.55 m²
room
14.7 m²
attic
60 m²
Varga Beáta
Credit Expert