data_sheet.details.realestate.section.main.otthonstart_flag.label
For sale new construction family house,
U0048579
Balatongyörök
119,900,000 Ft
314,000 €
- 179m²
- 5 Rooms
Fedezze fel álmai otthonát Balatongyörökön: új, 5 szobás ház várja Önt!
Balatongyörök szívében, Zala vármegyében kínálok eladásra egy exkluzív, új építésű házat, amely ideális választás családosok számára.
AZ OTTHON CENTRUM KIEMELT KÍNÁLATÁBAN!
Az ingatlan főbb jellemzői:
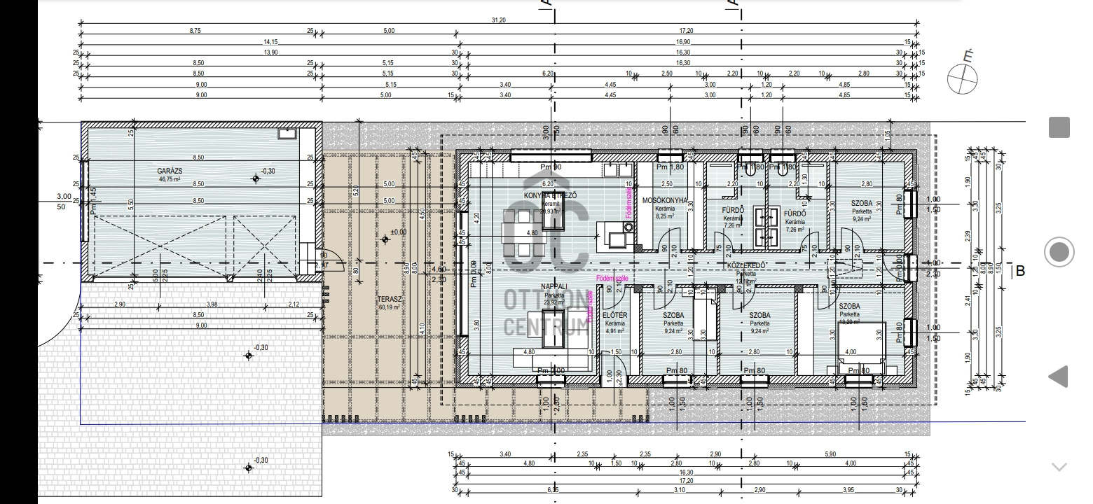
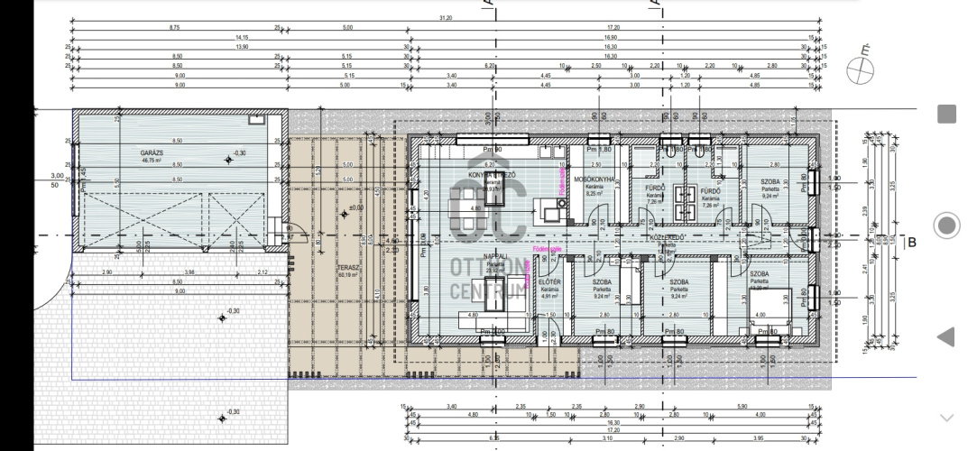
- Az ingatlan 179 négyzetméteres alapterülettel rendelkezik, és egy 868 négyzetméteres telken helyezkedik el, így bőséges teret biztosít a mindennapi élethez és a kikapcsolódáshoz. A ház öt tágas szobával és két modern fürdőszobával várja új lakóit, akik értékelni fogják a prémium kivitelezést és a világos, barátságos tereket. A nappali a lakás középpontja, ahol a családi összejövetelek és baráti találkozók felejthetetlen pillanatai születhetnek. A modern dizájn és a nagy ablakok révén természetes fény árad a térbe, így mindig kellemes hangulatot teremtve.
- Az ingatlan fűtése elektromos hőszivattyú rendszerrel megoldott (Daikin), padlófűtés, és mennyezet fűtés, a hűtést pedig mennyezethűtéssel biztosítja a nyári kényelem érzetét. A rendszer H tarifával rendelkezik.
- A ház téglából épült, és 15cm-es grafitos szigetelést kapott.
- Nyílászárói műanyag szerkezetűek 3 rétegű üvegezéssel, és redőnnyel ellátottak.
- A ház beton födémmel rendelkezik ,mely 30cm szigetelést kapott.
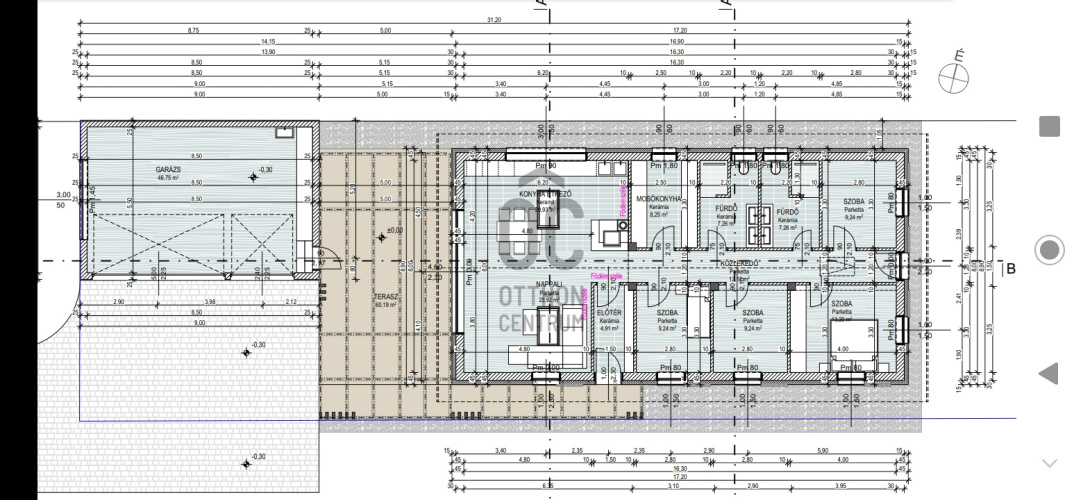
- A tetőtér igény esetén beépíthető, egy külső lépcsőház kialakításával, mely körülbelül 60nm.
- A nappaliban kèmény kiállás található, így lehetőség van egy hangulatos kandalló elhelyezèsère.
- Az utcában jelenleg nincs kiépítve a víz és a csatorna, ezért a kivitelezés során kutat fúrtak, melyből egy szivattyú segítségével vizet nyernek, ehhez szükséges még egy víztisztító rendszer beépítése, és a ház vízellátása megoldott. A szennyvíz elvezetés jelenleg egy deritőbe történik.
Amint az utcában lesz víz és csatorna, akkor rá lehet kötni a rendszerre.
- A kertben egy 7m3-es esővíz gyűjtő lett elhelyezve az épület mögött.
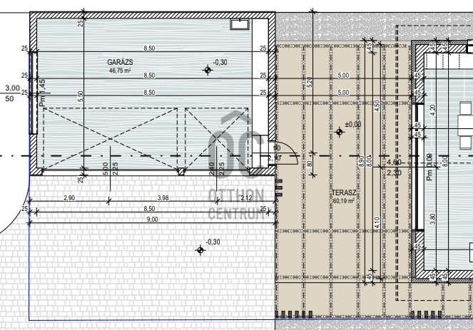
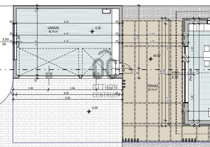
- A három garázs férőhely pedig praktikus megoldást nyújt a család autóinak tárolására.
- A környék csendes és biztonságos, ideális helyszínt biztosít a gyermekek számára a szabadban való játékra és felfedezésre.
Balatongyörök nemcsak a természet szépségeivel, hanem a közeli Balaton nyújtotta lehetőségekkel is büszkélkedhet. A település jól megközelíthető autóval, és a tömegközlekedési lehetőségek is biztosítják a könnyű elérhetőséget a környező városok felé. A közeli bevásárlóközpontok, iskolák és óvodák pedig minden családi igényt kielégítenek.
Ez az ingatlan nem csupán egy új otthon, hanem egy életstílus szimbóluma is, amely lehetőséget ad a modern, kényelmes életvitelre, miközben a természet közelségét élvezheti.
Balatongyörök szívében, Zala vármegyében kínálok eladásra egy exkluzív, új építésű házat, amely ideális választás családosok számára.
AZ OTTHON CENTRUM KIEMELT KÍNÁLATÁBAN!
Az ingatlan főbb jellemzői:
- Az ingatlan 179 négyzetméteres alapterülettel rendelkezik, és egy 868 négyzetméteres telken helyezkedik el, így bőséges teret biztosít a mindennapi élethez és a kikapcsolódáshoz. A ház öt tágas szobával és két modern fürdőszobával várja új lakóit, akik értékelni fogják a prémium kivitelezést és a világos, barátságos tereket. A nappali a lakás középpontja, ahol a családi összejövetelek és baráti találkozók felejthetetlen pillanatai születhetnek. A modern dizájn és a nagy ablakok révén természetes fény árad a térbe, így mindig kellemes hangulatot teremtve.
- Az ingatlan fűtése elektromos hőszivattyú rendszerrel megoldott (Daikin), padlófűtés, és mennyezet fűtés, a hűtést pedig mennyezethűtéssel biztosítja a nyári kényelem érzetét. A rendszer H tarifával rendelkezik.
- A ház téglából épült, és 15cm-es grafitos szigetelést kapott.
- Nyílászárói műanyag szerkezetűek 3 rétegű üvegezéssel, és redőnnyel ellátottak.
- A ház beton födémmel rendelkezik ,mely 30cm szigetelést kapott.
- A tetőtér igény esetén beépíthető, egy külső lépcsőház kialakításával, mely körülbelül 60nm.
- A nappaliban kèmény kiállás található, így lehetőség van egy hangulatos kandalló elhelyezèsère.
- Az utcában jelenleg nincs kiépítve a víz és a csatorna, ezért a kivitelezés során kutat fúrtak, melyből egy szivattyú segítségével vizet nyernek, ehhez szükséges még egy víztisztító rendszer beépítése, és a ház vízellátása megoldott. A szennyvíz elvezetés jelenleg egy deritőbe történik.
Amint az utcában lesz víz és csatorna, akkor rá lehet kötni a rendszerre.
- A kertben egy 7m3-es esővíz gyűjtő lett elhelyezve az épület mögött.
- A három garázs férőhely pedig praktikus megoldást nyújt a család autóinak tárolására.
- A környék csendes és biztonságos, ideális helyszínt biztosít a gyermekek számára a szabadban való játékra és felfedezésre.
Balatongyörök nemcsak a természet szépségeivel, hanem a közeli Balaton nyújtotta lehetőségekkel is büszkélkedhet. A település jól megközelíthető autóval, és a tömegközlekedési lehetőségek is biztosítják a könnyű elérhetőséget a környező városok felé. A közeli bevásárlóközpontok, iskolák és óvodák pedig minden családi igényt kielégítenek.
Ez az ingatlan nem csupán egy új otthon, hanem egy életstílus szimbóluma is, amely lehetőséget ad a modern, kényelmes életvitelre, miközben a természet közelségét élvezheti.
Registration Number
U0048579
Property Details
Sales
for sale
Legal Status
new
Character
house
Construction Method
brick
Net Size
179 m²
Gross Size
200 m²
Plot Size
868 m²
Heating
electric circulator
Ceiling Height
270 cm
Orientation
South-West
Condition
Excellent
Condition of Facade
Excellent
Year of Construction
2021
Number of Bathrooms
2
Garage
Included in the price
Garage Spaces
3
Electricity
Available
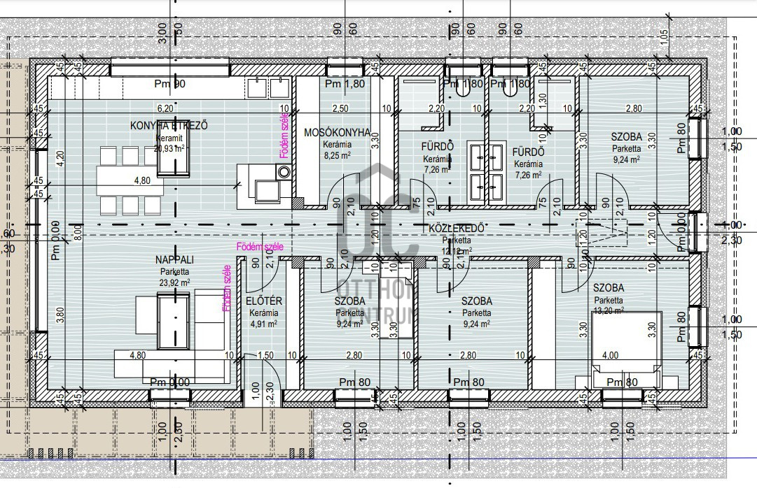
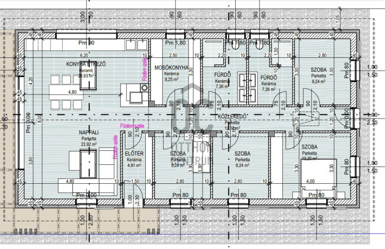
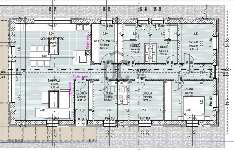
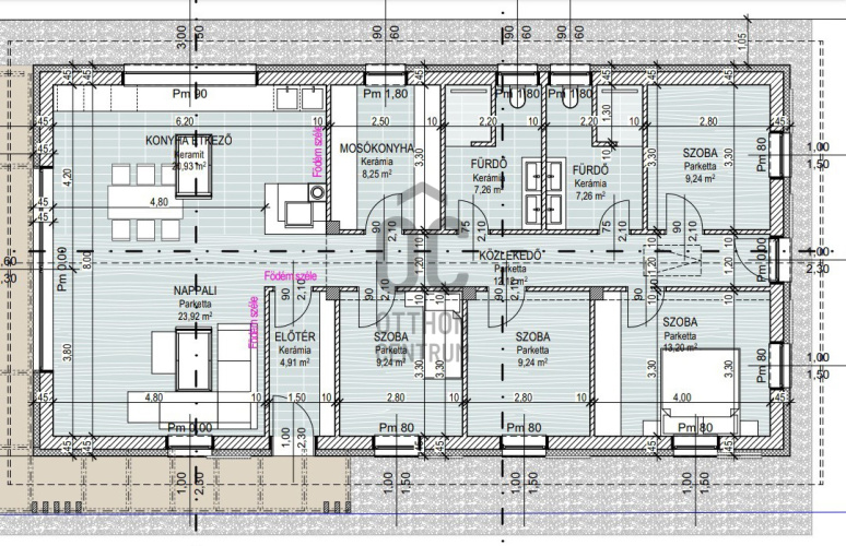
Rooms
entryway
4.91 m²
open-plan kitchen and living room
44.85 m²
utility room
8.25 m²
bathroom-toilet
7.26 m²
bathroom-toilet
7.26 m²
bedroom
9.24 m²
bedroom
9.24 m²
bedroom
9.24 m²
bedroom
13.2 m²
corridor
12.12 m²
terrace
60.19 m²
garage
46.75 m²