280,000 Ft
740 €
- 71m²
- 4 Rooms
- 1st floor
Városközpontban új építésű 3 hálószobás lakás kiadó!
Az első emeleti lakás 2024-ben készült el, Ytong falazattal, azon 15 cm szigeteléssel.
Fűtése távfűtés egyedi méréssel.
Zárt lépcsőházból érhető el.
A házban 3 lakás található összesen, így nem fogják zavarni a szomszédok.
Kaputelefon rendszer működik a házban.
A lépcsőház világítása mozgásérzékelős.
Ablakok 3 rétegű műanyagok szúnyoghálóval ellátva. Méretük miatt a lakás rendkívül világos.
A burkolatok greslap, illetve laminált padló a hálószobákban.
Az egybe nyitott nappali-étkező-konyha bútora méretre készült, beépített konyhagépekkel van ellátva.
A három hálószoba mindegyike külön nyílik.
Nagy teljesítményű klíma gondoskodik a hűtésről a nyári melegben, illetve a fűtést is kiválthatja.
A zuhanyzós fürdőszoba szintén bútorozott.
A képeken látható minden gép, bútor és világítótest a lakás tartozéka.
A kivitelezéskor ügyeltek a minőségi anyaghasználatra, és az esztétikus kialakításra.
Amennyiben szeretne egy kifogástalan állapotú, új építésű lakásban élni a város szívében, akkor megtalálta, amit keresett!
Bolt, óvoda, iskola és minden szolgáltató 3 percen belül elérhető gyalogosan.
A dohányzás és a kisállattartás a lakásban nem megengedett.
Egy havi bérleti díjjal, két havi kaucióval, közjegyző előtti nyilatkozattal azonnal bérbe vehető.
Hívjon, és szívesen megmutatom élőben!
kiadó 2 szoba 2. emelet beépített konyha új építésű városközpont zárt lépcsőház OC U0047975
Fűtése távfűtés egyedi méréssel.
Zárt lépcsőházból érhető el.
A házban 3 lakás található összesen, így nem fogják zavarni a szomszédok.
Kaputelefon rendszer működik a házban.
A lépcsőház világítása mozgásérzékelős.
Ablakok 3 rétegű műanyagok szúnyoghálóval ellátva. Méretük miatt a lakás rendkívül világos.
A burkolatok greslap, illetve laminált padló a hálószobákban.
Az egybe nyitott nappali-étkező-konyha bútora méretre készült, beépített konyhagépekkel van ellátva.
A három hálószoba mindegyike külön nyílik.
Nagy teljesítményű klíma gondoskodik a hűtésről a nyári melegben, illetve a fűtést is kiválthatja.
A zuhanyzós fürdőszoba szintén bútorozott.
A képeken látható minden gép, bútor és világítótest a lakás tartozéka.
A kivitelezéskor ügyeltek a minőségi anyaghasználatra, és az esztétikus kialakításra.
Amennyiben szeretne egy kifogástalan állapotú, új építésű lakásban élni a város szívében, akkor megtalálta, amit keresett!
Bolt, óvoda, iskola és minden szolgáltató 3 percen belül elérhető gyalogosan.
A dohányzás és a kisállattartás a lakásban nem megengedett.
Egy havi bérleti díjjal, két havi kaucióval, közjegyző előtti nyilatkozattal azonnal bérbe vehető.
Hívjon, és szívesen megmutatom élőben!
kiadó 2 szoba 2. emelet beépített konyha új építésű városközpont zárt lépcsőház OC U0047975
Registration Number
U0047975
Property Details
Sales
for rent
Legal Status
new
Character
apartment
Construction Method
ytong
Net Size
71 m²
Gross Size
73.1 m²
Heating
individual district heating
Ceiling Height
265 cm
Orientation
East
View
city view
Staircase Type
enclosed staircase
Condition
Excellent
Condition of Facade
Excellent
Condition of Staircase
Excellent
Neighborhood
good transport, green, central
Year of Construction
2024
Number of Bathrooms
1
Position
street-facing
Water
Available
Electricity
Available
Sewer
Available
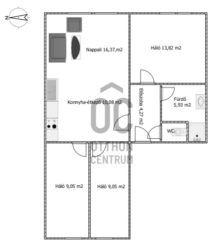
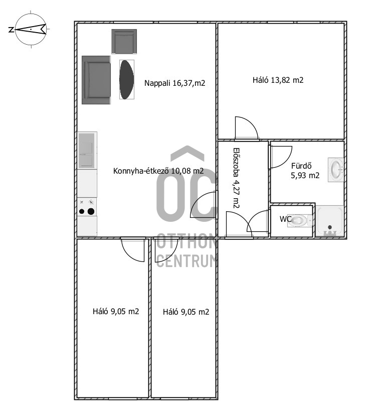
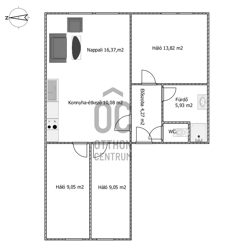
Rooms
entryway
4.27 m²
open-plan kitchen and living room
26.45 m²
room
13.82 m²
room
9.5 m²
room
9.5 m²
bathroom
5.93 m²
bathroom-toilet
2.1 m²
Deli Richárd
Credit Expert