data_sheet.details.realestate.section.main.otthonstart_flag.label
For sale new construction semi-detached house,
U0047951
Budapest XXII. kerület, Nagytétény
110,000,000 Ft
284,000 €
- 84.6m²
- 4 Rooms
Nagytétényi új építésű ikerházat kínálunk megvételre, mely kiváló választás lehet mind fiataloknak, mind idősebbeknek.
Az ingatlan XXII. kerület nyugodt "zsákutcájában" egy és két szintes családi házak szomszédságában épül.
A tulajdonos eddig épített ingatlanaihoz hasonlóan itt is a letisztult stílus és a minőségi anyagok felhasználása a jellemző .
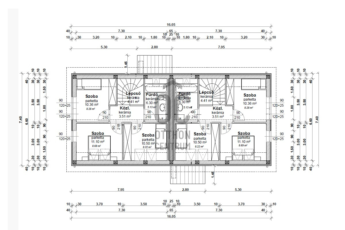
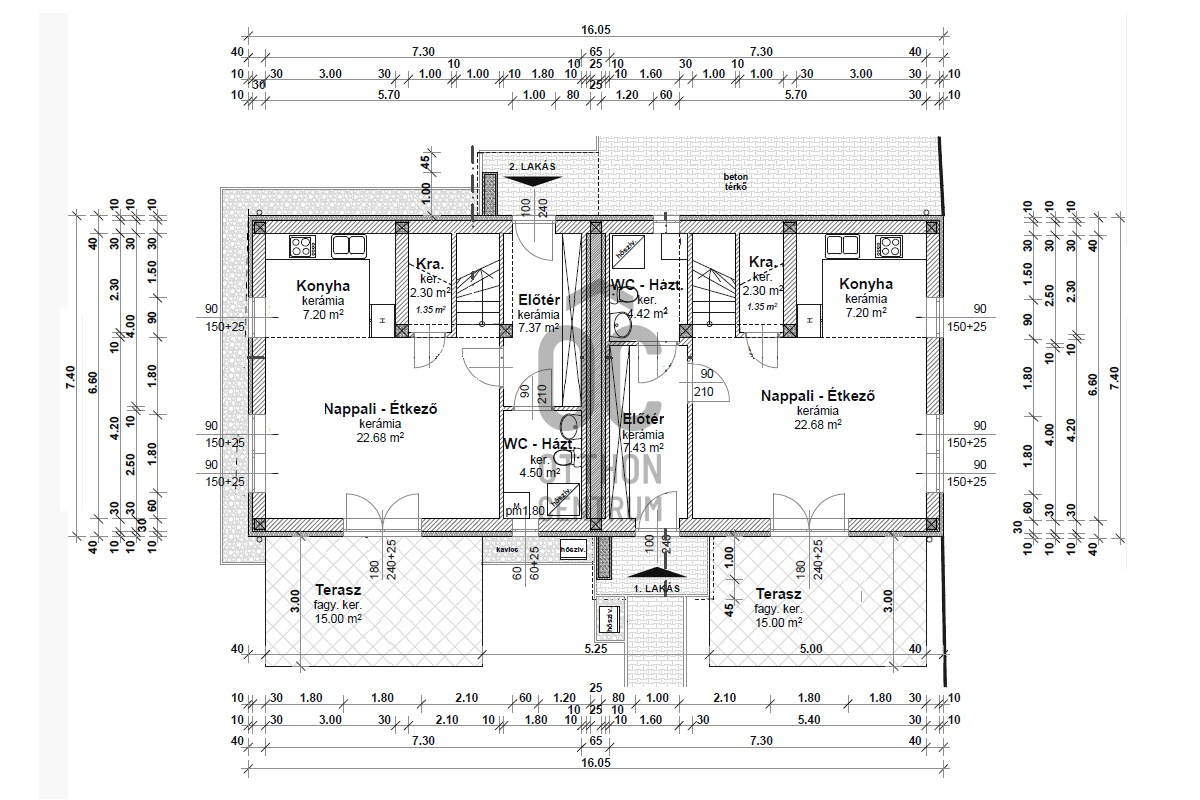
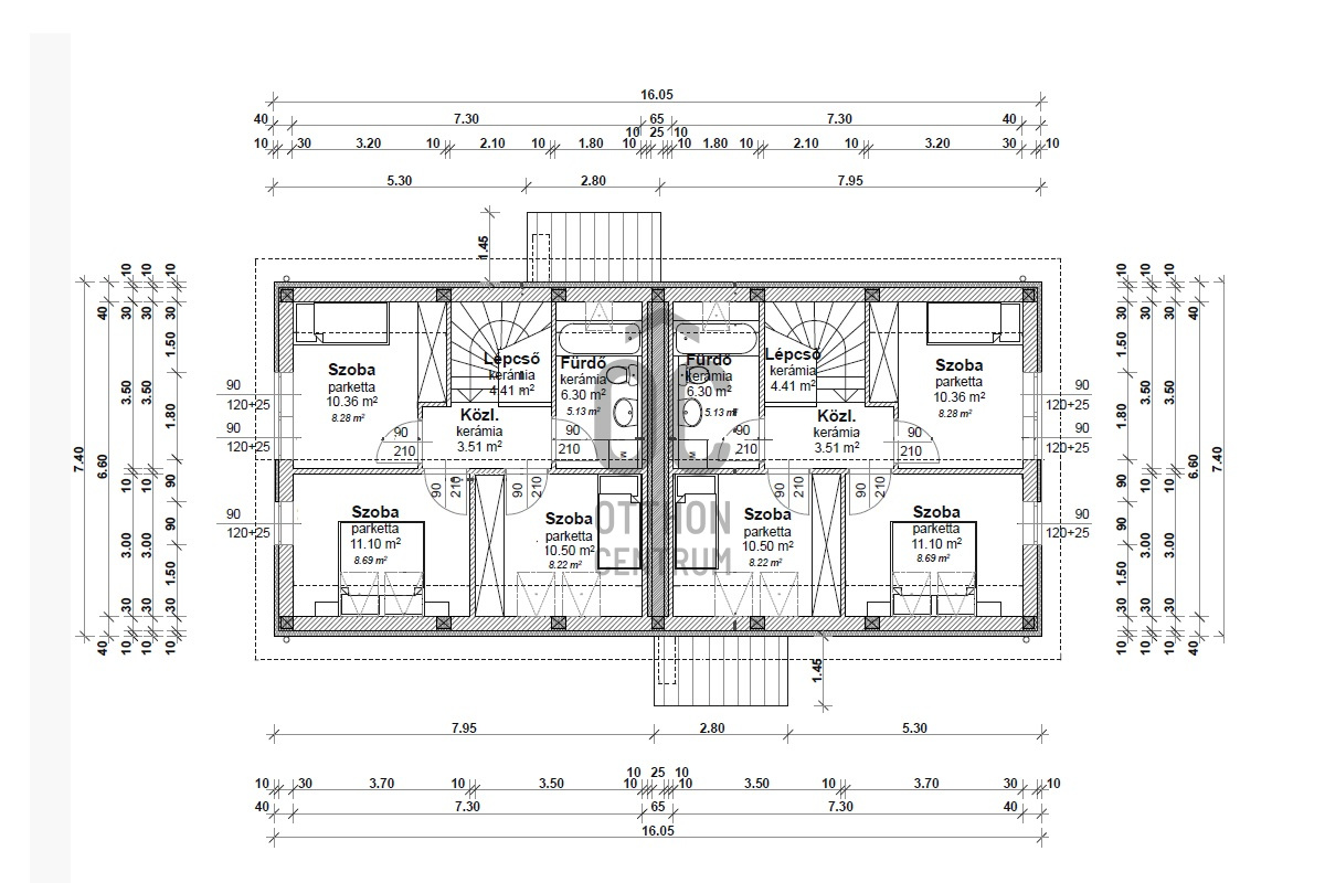
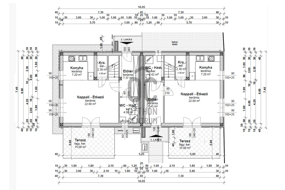
A netto 85 m2-es lakás belső terei az építtető több éves tapasztalatai és hosszú tervezői munka eredményeként kerültek kialakításra, figyelembe véve minden részletet. A lakásban a nappali-étkező-konyha kényelmesen elfér, mely egy nagy 15 m2-es terasszal és a saját kerttel kapcsolódik össze. A földszinten egy 4,5nm-es fürdőszoba és egy kamra is helyet kapott, így biztosítva a kényelmessé életteret az egész család számára. A három hálószoba és a nagy fürdőszoba az emeleti szinten került elhelyezésre.
Az épület kiemelkedő hőszigetelő képességgel rendelkezik, Leier 30 N+F kerámia téglából és 10cm homlokzati szigeteléssel épül. Fűtése és meleg víz ellátása kondenzációs kazánnal történik, a fűtés hőleadása padlófűtésen keresztűl történik. A kivitelező elképzelése szerint a szobákban laminált parketta, míg a többi helyiségben kerámia burkolatok készülnek. A lakás tulajdonosa az egyedi mérőóráknak köszönhetően pontosan annyit fizet, amennyit valóban használ. A lakások saját kerttel és egy nyitott gépkocsi beállóval rendelkeznek.
Az ingatlan környezete is ideális, hiszen a XXII. kerület fejlődő területén található, a tömegközlekedési eszközök mindössze 5 perc sétára vannak.
Ha Ön is szeretne egy modern otthont, amely minden igényt kielégít, akkor ne habozzon, hívjon most!
Az építkezés elkezdődött, a várható átadás időpontja: 2025 december 31.
Az ingatlan XXII. kerület nyugodt "zsákutcájában" egy és két szintes családi házak szomszédságában épül.
A tulajdonos eddig épített ingatlanaihoz hasonlóan itt is a letisztult stílus és a minőségi anyagok felhasználása a jellemző .
A netto 85 m2-es lakás belső terei az építtető több éves tapasztalatai és hosszú tervezői munka eredményeként kerültek kialakításra, figyelembe véve minden részletet. A lakásban a nappali-étkező-konyha kényelmesen elfér, mely egy nagy 15 m2-es terasszal és a saját kerttel kapcsolódik össze. A földszinten egy 4,5nm-es fürdőszoba és egy kamra is helyet kapott, így biztosítva a kényelmessé életteret az egész család számára. A három hálószoba és a nagy fürdőszoba az emeleti szinten került elhelyezésre.
Az épület kiemelkedő hőszigetelő képességgel rendelkezik, Leier 30 N+F kerámia téglából és 10cm homlokzati szigeteléssel épül. Fűtése és meleg víz ellátása kondenzációs kazánnal történik, a fűtés hőleadása padlófűtésen keresztűl történik. A kivitelező elképzelése szerint a szobákban laminált parketta, míg a többi helyiségben kerámia burkolatok készülnek. A lakás tulajdonosa az egyedi mérőóráknak köszönhetően pontosan annyit fizet, amennyit valóban használ. A lakások saját kerttel és egy nyitott gépkocsi beállóval rendelkeznek.
Az ingatlan környezete is ideális, hiszen a XXII. kerület fejlődő területén található, a tömegközlekedési eszközök mindössze 5 perc sétára vannak.
Ha Ön is szeretne egy modern otthont, amely minden igényt kielégít, akkor ne habozzon, hívjon most!
Az építkezés elkezdődött, a várható átadás időpontja: 2025 december 31.
Registration Number
U0047951
Property Details
Sales
for sale
Legal Status
new
Character
house
Construction Method
brick
Net Size
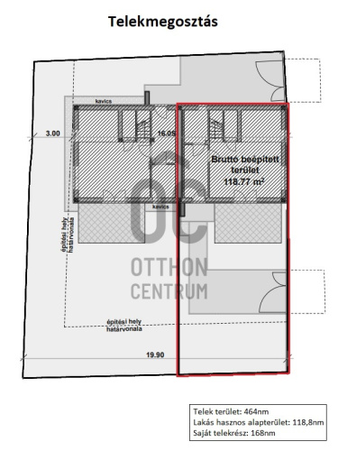
84.6 m²
Gross Size
118.8 m²
Plot Size
168 m²
Size of Terrace / Balcony
15 m²
Heating
Gas circulator
Ceiling Height
265 cm
Number of Levels Within the Property
2
Orientation
South-East
Condition
Excellent
Condition of Facade
Excellent
Year of Construction
2025
Number of Bathrooms
1
Water
Available
Gas
Available
Electricity
Available
Sewer
Available
Rooms
entryway
7.43 m²
open-plan living and dining room
22.68 m²
kitchen
7.2 m²
utility room
4.42 m²
pantry
2.3 m²
staircase
2.3 m²
room
10.5 m²
room
11.1 m²
room
10.36 m²
corridor
3.51 m²
bathroom-toilet
6.3 m²
staircase
4.41 m²
Pongó Miklós
Credit Expert