204,000,000 Ft
539,000 €
- 198m²
- 6 Rooms
Fedezze fel álmai otthonát: 6 szobás új ház Pest kedvelt részén, Cinkotán!
LUXUS FELSZERELTSÉG - MINŐSÉGI KIVITELEZÉS - PRÉMIUM ANYAGHASZNÁLAT
5 HÁLÓSZOBA + 4 FÜRDŐSZOBA - PRIVÁT FÜRDŐSZOBA A SZÜLŐKNEK - TÁGAS TEREK - GARÁZS
Az újépítésű ikerházak a XVI. kerület frekventált részén épülnek, kiváló közlekedéssel, a telek végében pedig természetvédelmi területtel.
Főbb tulajdonságok:
- nettó 198 m2, bruttó 244 m2 alapterület,
- teljesen alápincézett,
- vasbeton pince és födémszerkezet,
- geotermikus fűtés-hűtés rendszer, talajszondás rendszerrel,
- mennyezet és padló fűtéssel, mennyezet hűtéssel,
- 37,5cm VIABLOKK D450 termo téglából épült főfalak, természetesen szellőző,
- AA++ energia osztály
- Dél-Nyugati tájolás,
- hőcserélős rendszer előkészítés,
- 3 rétegű hő- és hangszigetelt üvegek,
- elektromos alumínium redőnyök,
- 1 autó részére garázs és 1 autó részére kialakított felszíni beálló,
- 2025. decemberi kulcsrakész állapot,
- tetőtérben további 2 szoba és egy fürdőszoba kialakítására van lehetőség
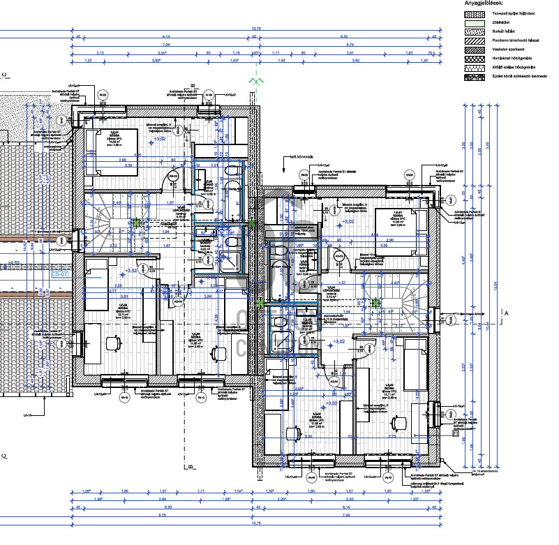
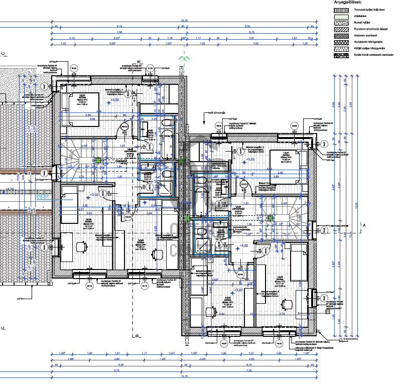
Ingatlan helyiségei a pinceszinten, összesen 56,94 m2:
- gépészet 6,12 m2,
- mosókonyha 11,13 m2,
- lépcsőház 9,39 m2,
- tároló 3,16 m2,
- tároló 27,14 m2
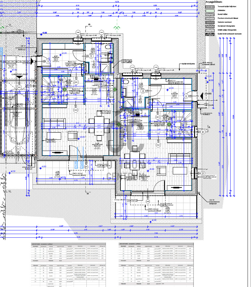
Ingatlan helyiségei a földszinten, összesen 52,56 (66,64) m2:
- előszoba 9,60 m2,
- fürdőszoba 6,36 m2,
- lépcsőház 3,32 m2,
- konyha 6,14 m2,
- nappali-étkező 27,14 m2,
- terasz 14,08 m2,
- fedett előtér 6,45 m2,
- garázs 18,92 m2
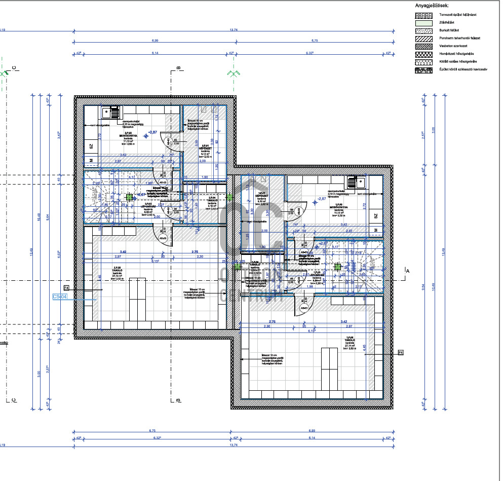
Ingatlan helyiségei az emeleten, összesen 50,12 m2:
- szoba 14,03 m2,
- szoba 12,11 m2,
- fürdőszoba 3,95 m2,
- lépcsőház 5,15 n2,
- mosdó 3,22 m2,
- szoba 11,66 m2
Ingatlan helyiségei a tetőtérben, összesen 36,14 (42,52) m2:
- lépcsőház 4,93 (5,16) m2,
- szoba 11,67 (13,99) m2,
- szoba 14,75 (18,55) m2,
- fürdőszoba 3,78 (3,78) m2,
- gépészet 3,15 (3,15) m2
A kivitelező megbízható, sokéves szakmai tapasztalattal rendelkezik.
Igény esetén bankfüggetlen és DÍJMENTES hiteltanácsadó közreműködését biztosítjuk, aki a teljes folyamaton végigkíséri Önt.
Az adásvétel biztonságos és gördülékeny bonyolítása érdekében tapasztalt ingatlan szakjogászaink szolgáltatását is ajánljuk.
Kérdés esetén, vagy amennyiben meg szeretné tekinteni, kérem keressen az elérhetőségeimen.
A hét minden napján elérhető vagyok 8:00-19:00 között, elfoglaltság esetén visszahívom.
Amennyiben még ingatlanát el kell adnia, azügyben is állok rendelkezésére.
Referencia szám: U0047903
5 HÁLÓSZOBA + 4 FÜRDŐSZOBA - PRIVÁT FÜRDŐSZOBA A SZÜLŐKNEK - TÁGAS TEREK - GARÁZS
Az újépítésű ikerházak a XVI. kerület frekventált részén épülnek, kiváló közlekedéssel, a telek végében pedig természetvédelmi területtel.
Főbb tulajdonságok:
- nettó 198 m2, bruttó 244 m2 alapterület,
- teljesen alápincézett,
- vasbeton pince és födémszerkezet,
- geotermikus fűtés-hűtés rendszer, talajszondás rendszerrel,
- mennyezet és padló fűtéssel, mennyezet hűtéssel,
- 37,5cm VIABLOKK D450 termo téglából épült főfalak, természetesen szellőző,
- AA++ energia osztály
- Dél-Nyugati tájolás,
- hőcserélős rendszer előkészítés,
- 3 rétegű hő- és hangszigetelt üvegek,
- elektromos alumínium redőnyök,
- 1 autó részére garázs és 1 autó részére kialakított felszíni beálló,
- 2025. decemberi kulcsrakész állapot,
- tetőtérben további 2 szoba és egy fürdőszoba kialakítására van lehetőség
Ingatlan helyiségei a pinceszinten, összesen 56,94 m2:
- gépészet 6,12 m2,
- mosókonyha 11,13 m2,
- lépcsőház 9,39 m2,
- tároló 3,16 m2,
- tároló 27,14 m2
Ingatlan helyiségei a földszinten, összesen 52,56 (66,64) m2:
- előszoba 9,60 m2,
- fürdőszoba 6,36 m2,
- lépcsőház 3,32 m2,
- konyha 6,14 m2,
- nappali-étkező 27,14 m2,
- terasz 14,08 m2,
- fedett előtér 6,45 m2,
- garázs 18,92 m2
Ingatlan helyiségei az emeleten, összesen 50,12 m2:
- szoba 14,03 m2,
- szoba 12,11 m2,
- fürdőszoba 3,95 m2,
- lépcsőház 5,15 n2,
- mosdó 3,22 m2,
- szoba 11,66 m2
Ingatlan helyiségei a tetőtérben, összesen 36,14 (42,52) m2:
- lépcsőház 4,93 (5,16) m2,
- szoba 11,67 (13,99) m2,
- szoba 14,75 (18,55) m2,
- fürdőszoba 3,78 (3,78) m2,
- gépészet 3,15 (3,15) m2
A kivitelező megbízható, sokéves szakmai tapasztalattal rendelkezik.
Igény esetén bankfüggetlen és DÍJMENTES hiteltanácsadó közreműködését biztosítjuk, aki a teljes folyamaton végigkíséri Önt.
Az adásvétel biztonságos és gördülékeny bonyolítása érdekében tapasztalt ingatlan szakjogászaink szolgáltatását is ajánljuk.
Kérdés esetén, vagy amennyiben meg szeretné tekinteni, kérem keressen az elérhetőségeimen.
A hét minden napján elérhető vagyok 8:00-19:00 között, elfoglaltság esetén visszahívom.
Amennyiben még ingatlanát el kell adnia, azügyben is állok rendelkezésére.
Referencia szám: U0047903
Registration Number
U0047903
Property Details
Sales
for sale
Legal Status
new
Character
house
Construction Method
brick
Net Size
198 m²
Gross Size
244 m²
Plot Size
350 m²
Size of Terrace / Balcony
14 m²
Heating
renewable
Ceiling Height
252 cm
Number of Levels Within the Property
4
Orientation
South-West
View
Green view
Condition
Excellent
Condition of Facade
Excellent
Basement
Independent
Neighborhood
good transport, green
Year of Construction
2025
Number of Bathrooms
3
Garage
Included in the price
Garage Spaces
1
Water
Available
Gas
On the street
Electricity
Available
Sewer
Available
Storage
Independent
Rooms
boiler room
6.12 m²
laundry room
11.13 m²
staircase
9.39 m²
storage
3.16 m²
storage
27.14 m²
entryway
9.6 m²
bathroom
6.36 m²
staircase
3.32 m²
kitchen
6.14 m²
open-plan living and dining room
27.14 m²
terrace
14.08 m²
entryway
6.45 m²
garage
18.92 m²
room
14.03 m²
room
12.11 m²
bathroom
3.95 m²
staircase
5.15 m²
washroom
3.22 m²
room
11.66 m²
staircase
5.16 m²
room
11.67 m²
room
14.75 m²
bathroom
3.78 m²
boiler room
0.15 m²
Pomaházi Pál
Credit Expert