222,500,000 Ft
573,000 €
- 130m²
- 4 Rooms
 
            
                                                             
            
                                                             
            
                                                             
            
                                                             
            
                                                             
            
                                                             
            
                                                             
            
                                                             
            
                                                             
            
                                                            Álmai otthona várja Aranyhegyen! – Új építésű, modern ikerház fél eladó
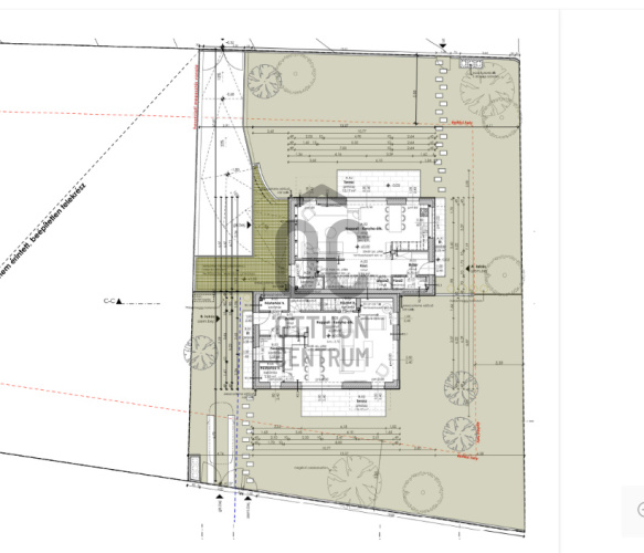
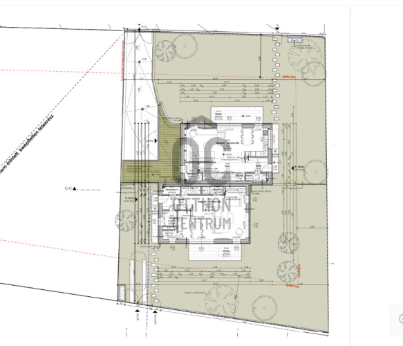
Tapasztalt fejlesztő kínál eladásra Aranyhegyen egy új építésű, 4 szobás (nappali + 3 hálószoba) ikerház felet magas műszaki tartalommal, sík, kizárólagos használatú, teljesen szeparált telekrésszel. Az egyedi adottságoknak köszönhetően a kínált ingatlan olyan, mintha önálló családi házat venne. Az ingatlan Aranyhegy közepén, egy már teljesen kiépült, szinte kizárólag új építésű házakkal körülvett lakókörnyezetben helyezkedik el, így ez az utolsó beépítetlen telek a környéken!
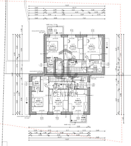
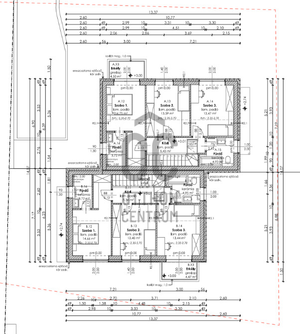
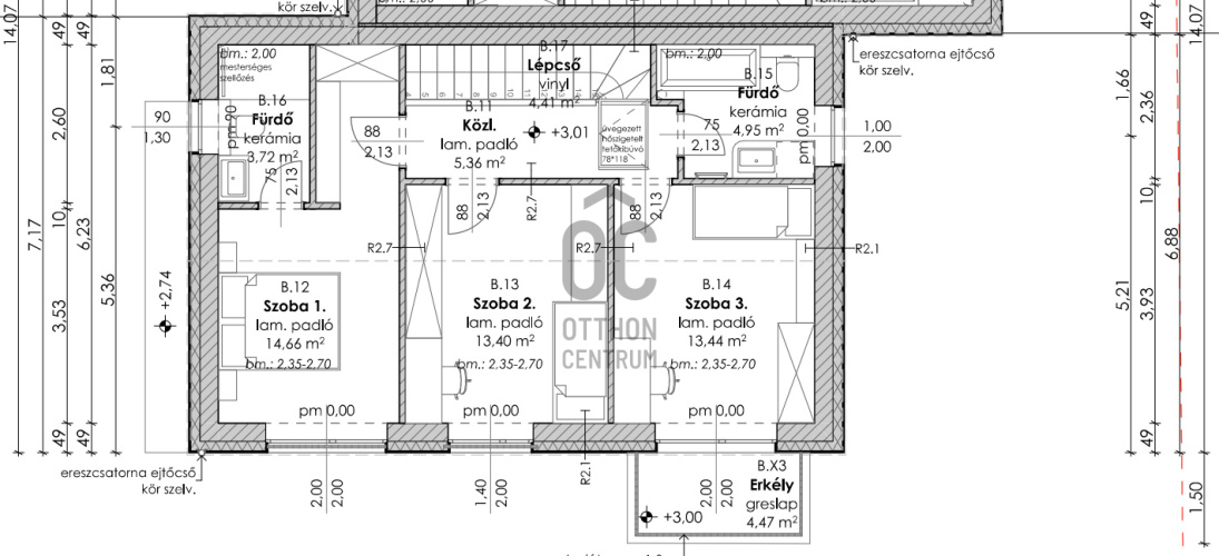
A lakótér mérete nettó 118,5m2, amely tökéletes elosztást kínál. A földszinten tágas nappali-konyha-étkező, előtér, fürdő és egy háztartási helyiség, míg az emeleten 3 hálószoba és 2 fürdőszoba kap helyet a mellékelt alaprajzok szerinti ideális elrendezésben. A nappaliból leválasztva akár egy 5. szoba is kialakítható eseti igény szerint.
Ezen kívül az eladásra kínált ingatlan részét képezi még egy 14nm-es kertre néző terasz, illetve egy 4,5nm-es emeleti erkély panorámás kilátással, valamint a 2db kényelmes méretű gépkocsi udvari beálló.
Energiatakarékos, környezettudatos kialakítás:
Az ingatlan alapesetben BB energetikai besorolással rendelkezik, azonban napelemek telepítésével AA++ kategóriára fejleszthető – garantált energiatakarékosság és fenntarthatóság!
Kiemelkedő műszaki tartalom:
Monolit vasbeton födém, kerámia falazat;
Hőtechnikailag méretezett grafitos hőszigetelés;
Háromrétegű nyílászárók;
Levegő-víz hőszívattyús, energiatakarékos hűtés-fűtési rendszer – mennyezet hűtés-fűtés, padlófűtés;
Motoros redőnyök szúnyoghálóval;
Magas minőségű hideg- és melegburkolatok, szaniterek, csaptelepek és belső nyílászárók,
motoros kapu
videó kaputelefon
durva tereprendezés
Az ár kulcsrakész állapotra vonatkozik.
Szolgáltatások a közelben: élelmiszerbolt, pékség, játszótér, kávézó, kutyafuttató
Tömegközlekedés: A 219-es és 160-as buszjáratok megállói 5-10 perc sétatávolságon belül
Átadás várható ideje: 2026 II. félév
Teljes körű ügyintézéssel várom a hívását a hét minden napján!
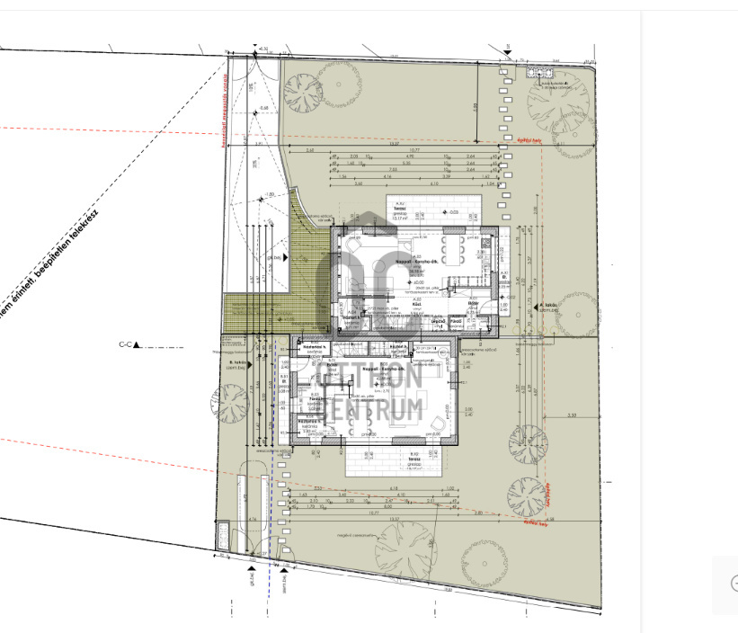
                    Tapasztalt fejlesztő kínál eladásra Aranyhegyen egy új építésű, 4 szobás (nappali + 3 hálószoba) ikerház felet magas műszaki tartalommal, sík, kizárólagos használatú, teljesen szeparált telekrésszel. Az egyedi adottságoknak köszönhetően a kínált ingatlan olyan, mintha önálló családi házat venne. Az ingatlan Aranyhegy közepén, egy már teljesen kiépült, szinte kizárólag új építésű házakkal körülvett lakókörnyezetben helyezkedik el, így ez az utolsó beépítetlen telek a környéken!
A lakótér mérete nettó 118,5m2, amely tökéletes elosztást kínál. A földszinten tágas nappali-konyha-étkező, előtér, fürdő és egy háztartási helyiség, míg az emeleten 3 hálószoba és 2 fürdőszoba kap helyet a mellékelt alaprajzok szerinti ideális elrendezésben. A nappaliból leválasztva akár egy 5. szoba is kialakítható eseti igény szerint.
Ezen kívül az eladásra kínált ingatlan részét képezi még egy 14nm-es kertre néző terasz, illetve egy 4,5nm-es emeleti erkély panorámás kilátással, valamint a 2db kényelmes méretű gépkocsi udvari beálló.
Energiatakarékos, környezettudatos kialakítás:
Az ingatlan alapesetben BB energetikai besorolással rendelkezik, azonban napelemek telepítésével AA++ kategóriára fejleszthető – garantált energiatakarékosság és fenntarthatóság!
Kiemelkedő műszaki tartalom:
Monolit vasbeton födém, kerámia falazat;
Hőtechnikailag méretezett grafitos hőszigetelés;
Háromrétegű nyílászárók;
Levegő-víz hőszívattyús, energiatakarékos hűtés-fűtési rendszer – mennyezet hűtés-fűtés, padlófűtés;
Motoros redőnyök szúnyoghálóval;
Magas minőségű hideg- és melegburkolatok, szaniterek, csaptelepek és belső nyílászárók,
motoros kapu
videó kaputelefon
durva tereprendezés
Az ár kulcsrakész állapotra vonatkozik.
Szolgáltatások a közelben: élelmiszerbolt, pékség, játszótér, kávézó, kutyafuttató
Tömegközlekedés: A 219-es és 160-as buszjáratok megállói 5-10 perc sétatávolságon belül
Átadás várható ideje: 2026 II. félév
Teljes körű ügyintézéssel várom a hívását a hét minden napján!
Registration Number
U0047609
                Property Details
Sales
                                        for sale
                                                                                                                                                Legal Status
                                        new
                                                                                                                                                Character
                                        house
                                                                                                                                                                                                                                                                                        Construction Method
                                        brick
                                                                                                                                                                                                                                                                                                                                                                                                                                                                                                    Net Size
                                        130 m²
                                                                                                                                                Gross Size
                                        160 m²
                                                                                                                                                Plot Size
                                        400 m²
                                                                                                                                                Size of Terrace / Balcony
                                        23.5 m²
                                                                                                                                                                                                                                                                                                                                                                                                                                Heating
                                        heat pump
                                                                                                                                                Ceiling Height
                                        275 cm
                                                                                                                                                Number of Levels Within the Property
                                        2
                                                                                                                                                Orientation
                                        South-East
                                                                                                                                                View
                                        Green view
                                                                                                                                                                                                                    Condition
                                        Excellent
                                                                                                                                                Condition of Facade
                                        Excellent
                                                                                                                                                                                                                                                                                        Neighborhood
                                        quiet, good transport, green
                                                                                                                                                Year of Construction
                                        2026
                                                                                                                                                Number of Bathrooms
                                        3
                                                                                                                                                                                                                                                                                                                                                                                                                                Garage
                                        Included in the price
                                                                                                                                                                                                                                                                                                                                                            Water
                                        Available
                                                                                                                                                                                                                    Electricity
                                        Available
                                                                                                                                                Sewer
                                        Available
                                                                                                                                                                                                                                                                                                                                                                                                                                Storage
                                        Independent
                                                                                                                                                                                                                                        Rooms
open-plan kitchen and living room
                                        43 m²
                                                                            room
                                        15 m²
                                                                            room
                                        13.4 m²
                                                                            room
                                        13.4 m²
                                                                            bathroom-toilet
                                        3 m²
                                                                            bathroom-toilet
                                        5 m²
                                                                            bathroom-toilet
                                        4 m²
                                                                     
            
                            Andrejcsik Nikoletta
Credit Expert
 
                    
                 
                         
                         
                         
                         
                         
                         
                         
                         
                         
                         
                    
                 
                 
                 
                 
                 
                 
                 
                 
                 
                 
                 
                