data_sheet.details.realestate.section.main.otthonstart_flag.label
For sale new construction family house, U0044056
Veresegyház, Széchenyi-domb

145,500,000 Ft

372,000 €

  • 112m²
  • 5 Rooms

GARÁZSOS CSALÁDI HÁZ ELADÓ!

Veresegyház egyik legszebb részén, Széchenyidombon eladó újonnan épülő FÖLDSZINTES CSALÁDI HÁZ, DUPLA GARÁZZSAL.
Több családi ház kivitelezése folyamatban van egymás mellett.
Tervezési fázisban vannak, tehát még az ön igényeire tudjuk szabni.

JELLEMZŐK ÉS EXTRÁK:

- Hőszivattyús Fűtés rendszer
- Padlófűtés mindenhol
- Napelem előkészítés
- H tarifa 1x32 A
- 3x20 A nappali áram
- EÜ Gerendás födém, tehát pakolható padlástér
- Két fürdőszoba
- 3 rétegű, 6 légkamrás műanyag ablakok
- Motoros kapu előkészítés
- Riasztó előkészítés
- Kaputelefon kiállás
- Fedett terasz
és még sok extra...

Az ingatlanokat már 10% önerővel le lehet foglalózni!
Átadás: 2024.

Magas referenciával és nagy szakmai múlttal rendelkező cég.
Hitel, csok, bármely támogatás igényelhető díjmentesen.

Registration Number

U0044056

Property Details

Sales
for sale
Legal Status
new
Character
house
Construction Method
brick
Net Size
112 m²
Gross Size
148 m²
Plot Size
830 m²
Size of Terrace / Balcony
16.2 m²
Heating
heat pump
Ceiling Height
270 cm
Orientation
East
Condition
Excellent
Condition of Facade
Excellent
Neighborhood
quiet, good transport, green
Year of Construction
2024
Number of Bathrooms
2
Garage
Included in the price
Garage Spaces
2
Water
Available
Gas
On the street
Electricity
Available
Sewer
Available

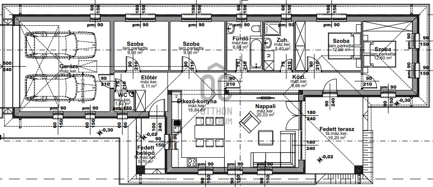
Rooms

entryway
6.11 m²
corridor
9.66 m²
open-plan kitchen and living room
38.84 m²
terrace
16.2 m²
room
9.9 m²
room
9.9 m²
room
12 m²
room
12.6 m²
bathroom-toilet
6.6 m²
bathroom
5.4 m²
toilet-washbasin
1.44 m²
garage
30.25 m²
Víg Attila
Víg Attila

Credit Expert

From Our Office Listings - Dunakeszi

for sale semi-detached house

Index image
54

for sale panel apartment

Index image
data_sheet.details.realestate.section.main.otthonstart_flag.label
27

for sale family house

Index image
data_sheet.details.realestate.section.main.otthonstart_flag.label
15

for sale semi-detached house

Index image
data_sheet.details.realestate.section.main.otthonstart_flag.label
52

for sale commercial property

Index image
17

for sale family house

Index image
data_sheet.details.realestate.section.main.otthonstart_flag.label
26

for rent family house

Index image
33

for sale family house

Index image
data_sheet.details.realestate.section.main.otthonstart_flag.label
25