data_sheet.details.realestate.section.main.otthonstart_flag.label
For sale new construction family house,
U0042031
Hajdúszoboszló
129,000,000 Ft
332,000 €
- 420m²
- 13 Rooms










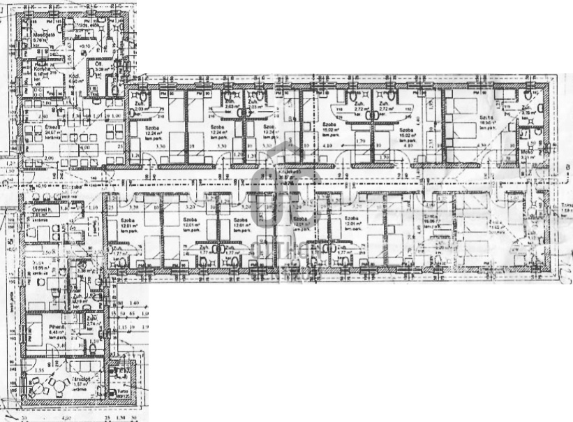
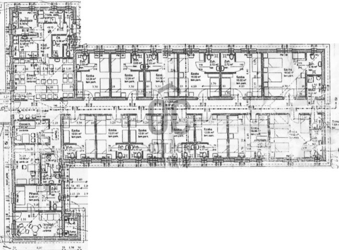
Most kialakuló lakóparkban 420 nm-es 13 apartmanos épülő ingatlan eladó
Épülő lakóparkban eredetileg idősek otthonának tervezett 420 nm-es most épülő ingatlan 1400 nm-es telken eladó.
Az épület kiválóan hasznosítható panziónak, apartman háznak, de akár 6 - 8 lakásos társaházzá is alakítható.
jelenlegi állapot:
- 13 apartman, (szoba + fürdőszoba)
- kiszolgáló helyiségek, konyha, étkező, társalkodó, stb, mely még bármi más funkcióra is átalakítható
- villamos hálózat kiépítve
- víz és fűtés csövek részben kiépítve
- belső vakolt falak
- kűlső műanyag nyílászárók, fa beltéri ajtók
- külső szigetelés 80%-ban befejezve
- lindab lemeztető
- összes közmű bekötve
Az épület mostani formájában még sokcélú hasznosítási tevékenységgel fejezhető be, elhelyezkedése miatt rendkívűl jó befektetési lehetőség,
Az épület kiválóan hasznosítható panziónak, apartman háznak, de akár 6 - 8 lakásos társaházzá is alakítható.
jelenlegi állapot:
- 13 apartman, (szoba + fürdőszoba)
- kiszolgáló helyiségek, konyha, étkező, társalkodó, stb, mely még bármi más funkcióra is átalakítható
- villamos hálózat kiépítve
- víz és fűtés csövek részben kiépítve
- belső vakolt falak
- kűlső műanyag nyílászárók, fa beltéri ajtók
- külső szigetelés 80%-ban befejezve
- lindab lemeztető
- összes közmű bekötve
Az épület mostani formájában még sokcélú hasznosítási tevékenységgel fejezhető be, elhelyezkedése miatt rendkívűl jó befektetési lehetőség,
Registration Number
U0042031
Property Details
Sales
for sale
Legal Status
new
Character
house
Construction Method
brick
Net Size
420 m²
Gross Size
450 m²
Plot Size
1,420 m²
Heating
Gas circulator
Ceiling Height
340 cm
Orientation
South
Condition
Excellent
Condition of Facade
Excellent
Neighborhood
quiet
Year of Construction
2021
Number of Bathrooms
1
Water
Available
Gas
Available
Electricity
Available
Sewer
Available
Storage
Independent
Rooms
room
12 m²
room
12 m²
room
12 m²
room
12 m²
room
12 m²
room
12 m²
room
12 m²
room
12 m²
room
16 m²
room
16 m²
room
16 m²
room
17 m²
room
17 m²
bathroom
2 m²

Plébán László
Credit Expert