data_sheet.details.realestate.section.main.otthonstart_flag.label
For sale new construction semi-detached house,
U0040537
Budapest XVII. kerület, Rákosliget
135,000,000 Ft
346,000 €
- 150m²
- 5 Rooms





































XVII. kerületben, kiemelt és méltán kedvelt részén, Rákosligeten a számozott utcákban kínálunk megvásárlásra egy új építésű azonnal költözhető, minőségi anyagokból épült, garázsos ikerház mindkét felét és a mellette található önálló családi házat.
Az ingatlanok paraméterei:
1. Önálló családi ház, nettó 180 nm-es, 6 szoba, 458 nm-es telek
2. Ikerház, nettó 140 nm, 4 szoba, 316 nm-es telek
3. Ikerház, nettó 150 nm, 5 szoba,412 nm-es telek
Műszaki adatok:
- 40 cm külső falak
- 12 cm-es homlokzati szigetelés
- 20 cm-es födémszigetelés
- Riasztó, elektromos kapu és kandallóhoz kémény kiépítve.
- Minőségi hideg-meleg burkolatok, kül-és beltéri nyílászárók, szaniterek
-15 nm-es terasz
-15 nm-es garázs
-dupla komfortos
-kamra, háztartási helyiség
Infrastruktúra kiváló, gyakorlatilag pár lépésre minden megtalálható, ami a mindennapi élethez szükséges.
Óvoda, iskola, bevásárlási lehetőség, játszóterek, sportpálya gyermekes családok számára is mind fontos lehet.
Kiváló környezet, szomszédság.
Az ingatlanok tényleg műszakilag kiváló kivitelezéssel épültek.
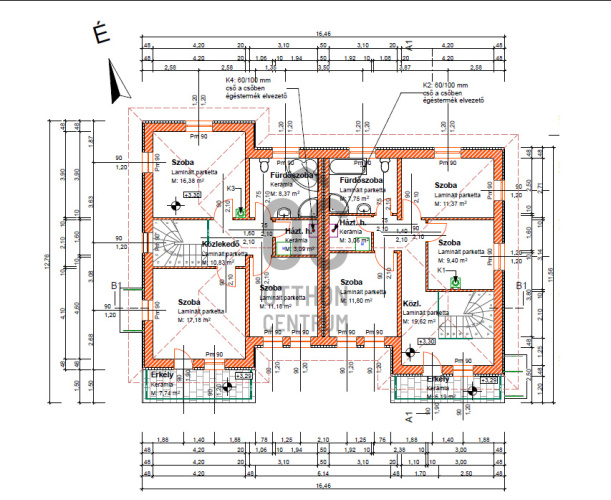
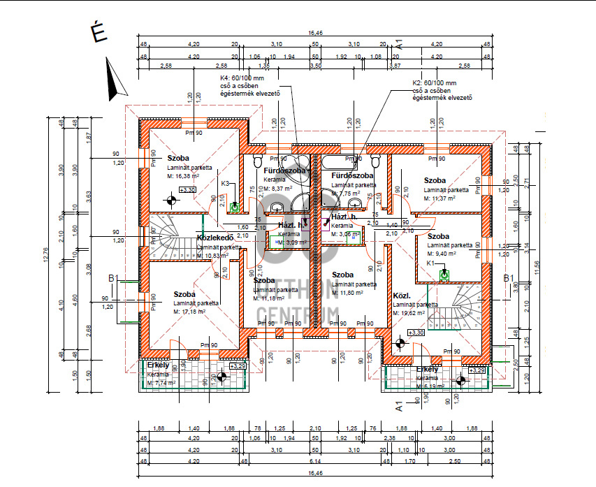
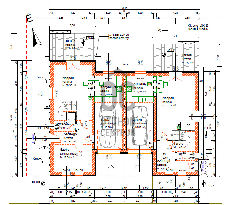
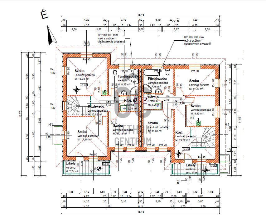
Alaprajzok a képek között megtalálhatóak.
Az építtettő és egyben építő minden megtekintésen részt vesz, bármilyen kérdés adódna, fordulhatnak hozzánk bizalommal.
Az ingatlanok paraméterei:
1. Önálló családi ház, nettó 180 nm-es, 6 szoba, 458 nm-es telek
2. Ikerház, nettó 140 nm, 4 szoba, 316 nm-es telek
3. Ikerház, nettó 150 nm, 5 szoba,412 nm-es telek
Műszaki adatok:
- 40 cm külső falak
- 12 cm-es homlokzati szigetelés
- 20 cm-es födémszigetelés
- Riasztó, elektromos kapu és kandallóhoz kémény kiépítve.
- Minőségi hideg-meleg burkolatok, kül-és beltéri nyílászárók, szaniterek
-15 nm-es terasz
-15 nm-es garázs
-dupla komfortos
-kamra, háztartási helyiség
Infrastruktúra kiváló, gyakorlatilag pár lépésre minden megtalálható, ami a mindennapi élethez szükséges.
Óvoda, iskola, bevásárlási lehetőség, játszóterek, sportpálya gyermekes családok számára is mind fontos lehet.
Kiváló környezet, szomszédság.
Az ingatlanok tényleg műszakilag kiváló kivitelezéssel épültek.
Alaprajzok a képek között megtalálhatóak.
Az építtettő és egyben építő minden megtekintésen részt vesz, bármilyen kérdés adódna, fordulhatnak hozzánk bizalommal.
Registration Number
U0040537
Property Details
Sales
for sale
Legal Status
new
Character
house
Construction Method
brick
Net Size
150 m²
Gross Size
187 m²
Plot Size
412 m²
Size of Terrace / Balcony
20 m²
Heating
Gas circulator
Ceiling Height
265 cm
Number of Levels Within the Property
2
Orientation
South
Condition
Excellent
Condition of Facade
Excellent
Neighborhood
quiet, good transport, green, central
Year of Construction
2020
Number of Bathrooms
2
Garage
Included in the price
Garage Spaces
1
Water
Available
Gas
Available
Electricity
Available
Sewer
Available
Rooms
living room
20.35 m²
open-plan kitchen and dining room
8.7 m²
room
12.6 m²
entryway
7.5 m²
shower
3.54 m²
garage
15.3 m²
terrace
15 m²
room
16.38 m²
room
17.18 m²
room
11.18 m²
corridor
10.83 m²
utility room
3.09 m²
bathroom-toilet
8.37 m²

Torday Tibor
Credit Expert