14,990,000 Ft
39,000 €
- 1,218m²














Építési telek Toronyban, gyönyörű panorámával
Szombathelytől mindössze 15 percre, Toronyban kínálunk eladásra egy 1218 nm-es építési telket.
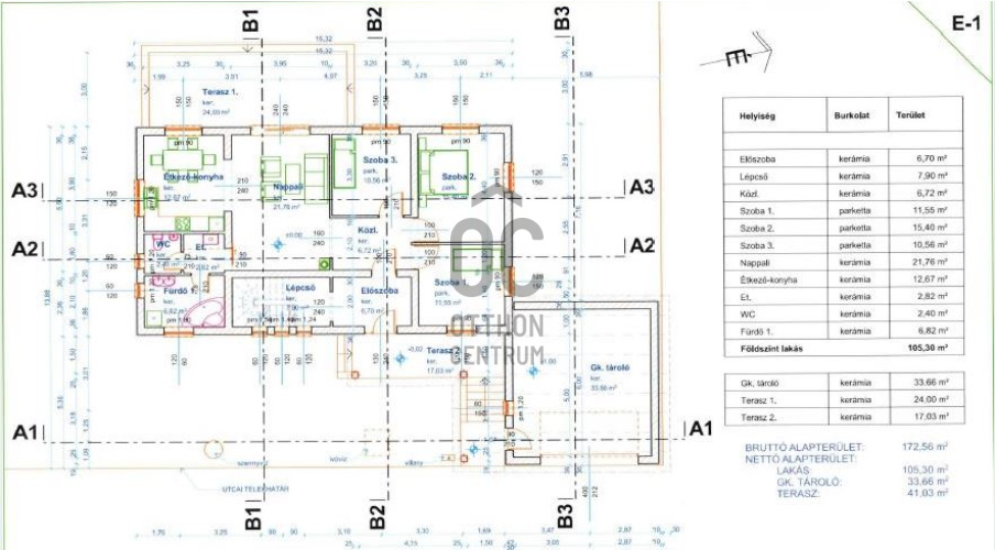
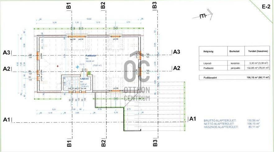
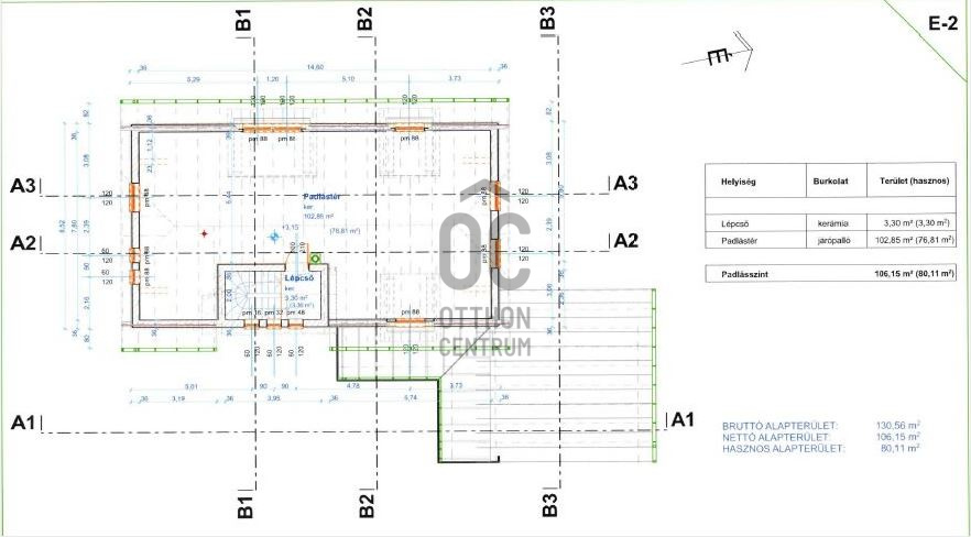
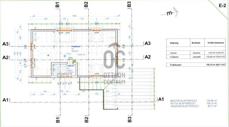
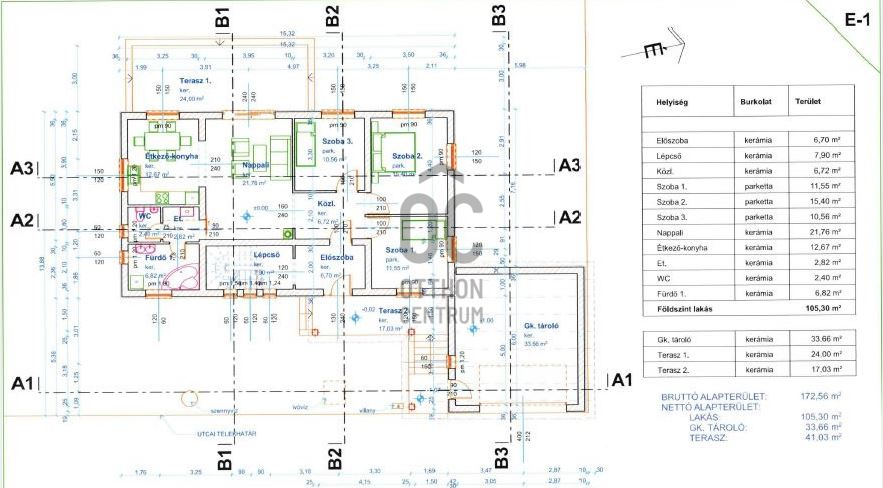
Egy 120 nm-es családi ház alapja, kész tervezete, építési engedélye már rendelkezésre áll.
A környék csendes, nyugodt. A telekről gyönyörű panoráma tárul elénk.
- beépíthetősége: 30%
- építménymagasság: 4,5 m
- övezet: FL
közművek:
- víz: utcán
- villany: bekötve
- gáz: nincs a településen
- csatorna: bekötve
További információért hívjon bizalommal!
Egy 120 nm-es családi ház alapja, kész tervezete, építési engedélye már rendelkezésre áll.
A környék csendes, nyugodt. A telekről gyönyörű panoráma tárul elénk.
- beépíthetősége: 30%
- építménymagasság: 4,5 m
- övezet: FL
közművek:
- víz: utcán
- villany: bekötve
- gáz: nincs a településen
- csatorna: bekötve
További információért hívjon bizalommal!
Registration Number
T040117
Property Details
Sales
for sale
Character
plot
Type of Land
Building plot
Zone
residential zone
Plot Size
1,218 m²
Orientation
East
View
city view
Neighborhood
quiet, green
Water
On the street
Electricity
Available
Sewer
Available
Buildability
30%
Facade Height
450
Type of Buildable Property
Family house

Csejtey Krisztina
Credit Expert