1,230,096,000 Ft
3,243,000 €
- 102,508m²
FEJLESZTÉSI TELEK VÁCRÁTÓTON ELADÓ! Jelenleg a közművesítés zajlik!
Vácrátót község Pest megyében, a Váci járásban,az Alföld északi részén található Veresegyházi-medencében fekszik.
Övezeti besorolás: Gksz 1- kereskedelmi szolgáltató gazdasági terület
Beépítési mód: szabadonálló
Maximális beépíthetőség:30%
Minimális telekméret: 4000m2
Építménymagasság: 4-15 méter
AZ ÁR AZ ÉPPEN AKTUÁLISAN ZAJLÓ KÖZMŰFEJLESZTÉSEK FÜGGVÉNYÉBEN VÁLTOZHAT!
1 hektáros tömbönként szeretné eladni a tulajdonos
Új szabályozási terv elfogadása van folyamatban.
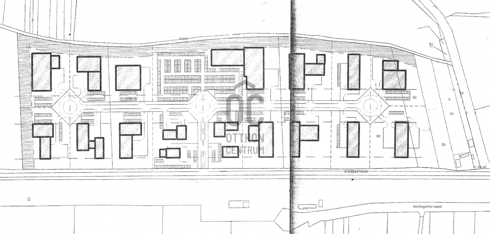
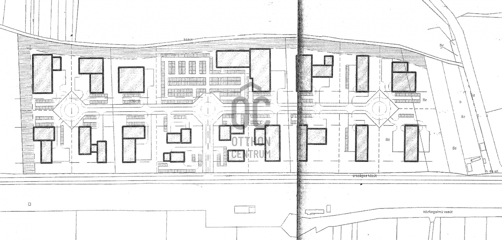
A jelenlegi szabályozás szerint belső feltáró út kialakítása szükséges amely lehetővé tenné a terület akár 25 telekre való felosztását.
Mindemellett az önkormányzat partner lenne abban is, hogy a feltáró út kikerüljön az építési szabályozásból és a terület egyben lenne hasznosítva, ily módon munkahelyteremtő beruházás valósulna meg.
Vácrátót község Pest megyében, a Váci járásban,az Alföld északi részén található Veresegyházi-medencében fekszik.
Övezeti besorolás: Gksz 1- kereskedelmi szolgáltató gazdasági terület
Beépítési mód: szabadonálló
Maximális beépíthetőség:30%
Minimális telekméret: 4000m2
Építménymagasság: 4-15 méter
AZ ÁR AZ ÉPPEN AKTUÁLISAN ZAJLÓ KÖZMŰFEJLESZTÉSEK FÜGGVÉNYÉBEN VÁLTOZHAT!
1 hektáros tömbönként szeretné eladni a tulajdonos
Új szabályozási terv elfogadása van folyamatban.
A jelenlegi szabályozás szerint belső feltáró út kialakítása szükséges amely lehetővé tenné a terület akár 25 telekre való felosztását.
Mindemellett az önkormányzat partner lenne abban is, hogy a feltáró út kikerüljön az építési szabályozásból és a terület egyben lenne hasznosítva, ily módon munkahelyteremtő beruházás valósulna meg.
Registration Number
T021267
Property Details
Sales
for sale
Legal Status
used
Character
plot
Type of Land
Developmental plot
Zone
industrial-economic zone
Net Size
102,508 m²
Gross Size
102,508 m²
Plot Size
102,508 m²
Number of Bathrooms
1
Water
On the street
Gas
On the street
Electricity
On the street
Sewer
On the street
Type of Buildable Property
Industrial hall or warehouse