data_sheet.details.realestate.section.main.otthonstart_flag.label
For sale new construction family house,
P4791-2-3B-FZ-003
Siófok, Fokihegy
87,000,000 Ft
228,000 €
- 71.2m²
- 4 Rooms
- ground floor
Siófok, Ezüstpart közelében - Egy új ház azoknak, akik nem szeretnek zajban élni.
Eladásra kínálunk egy új építésű, földszintes, önálló családi házat Siófokon, az Ezüstpart szabadstrandtól 1000 méterre.
Az ingatlan kulcsrakészen kerül átadásra, a kivitelezés minden részlete a hosszú távú minőségre és az alacsony üzemeltetési költségekre lett optimalizálva.
A 61–71 m² alapterületű házak átgondolt alaprajzzal készülnek:
Nappali–amerikai konyha, 2–3 hálószoba, fürdőszoba, külön WC, terasz.
Földszintes kialakítás, természetes térarányok, élhető méretek.
A szerkezet 30 cm-es Porotherm téglából épül, korszerű hőszigeteléssel, háromrétegű nyílászárókkal.
A fűtést és a használati melegvizet levegő–víz hőszivattyú biztosítja, padlófűtéssel.
A burkolatok és szaniterek meghatározott árkategórián belül választhatók.
Az ár tartalmazza a 3D kerítést, a tereprendezést és a felszíni gépkocsi-beállót.
A projektben összesen 12 önálló ház épül, külön bejárattal és saját kerítéssel.
A főbb építőanyagok már rendelkezésre állnak. Várható átadás: 2026. második negyedév.
A környezet csendes, zöld, nem a főút és nem a Balaton felőli oldalon található.
A Balaton 15 perc sétával elérhető, a mindennapi infrastruktúra néhány percre van.
Ez az ingatlan nem látványos ígéretekkel operál.
Egyszerűen jól lesz megépítve.
Tervdokumentáció és részletes műszaki tartalom kérhető.
Eladásra kínálunk egy új építésű, földszintes, önálló családi házat Siófokon, az Ezüstpart szabadstrandtól 1000 méterre.
Az ingatlan kulcsrakészen kerül átadásra, a kivitelezés minden részlete a hosszú távú minőségre és az alacsony üzemeltetési költségekre lett optimalizálva.
A 61–71 m² alapterületű házak átgondolt alaprajzzal készülnek:
Nappali–amerikai konyha, 2–3 hálószoba, fürdőszoba, külön WC, terasz.
Földszintes kialakítás, természetes térarányok, élhető méretek.
A szerkezet 30 cm-es Porotherm téglából épül, korszerű hőszigeteléssel, háromrétegű nyílászárókkal.
A fűtést és a használati melegvizet levegő–víz hőszivattyú biztosítja, padlófűtéssel.
A burkolatok és szaniterek meghatározott árkategórián belül választhatók.
Az ár tartalmazza a 3D kerítést, a tereprendezést és a felszíni gépkocsi-beállót.
A projektben összesen 12 önálló ház épül, külön bejárattal és saját kerítéssel.
A főbb építőanyagok már rendelkezésre állnak. Várható átadás: 2026. második negyedév.
A környezet csendes, zöld, nem a főút és nem a Balaton felőli oldalon található.
A Balaton 15 perc sétával elérhető, a mindennapi infrastruktúra néhány percre van.
Ez az ingatlan nem látványos ígéretekkel operál.
Egyszerűen jól lesz megépítve.
Tervdokumentáció és részletes műszaki tartalom kérhető.
Registration Number
P4791-2-3B-FZ-003
Property Details
Sales
for sale
Legal Status
new
Character
house
Construction Method
brick
Net Size
71.2 m²
Gross Size
84.1 m²
Plot Size
300 m²
Size of Terrace / Balcony
12.9 m²
Garden Size
300 m²
Heating
values.realestate.futes.27
Ceiling Height
280 cm
Orientation
West
Condition
Excellent
Condition of Facade
Excellent
Neighborhood
quiet, good transport, green, central
Year of Construction
2026
Number of Bathrooms
1
Condominium Garden
yes
Garage
Included in the price
Water
Available
Gas
On the street
Electricity
Available
Sewer
Available
Distance to Waterfront
more than 500 meters
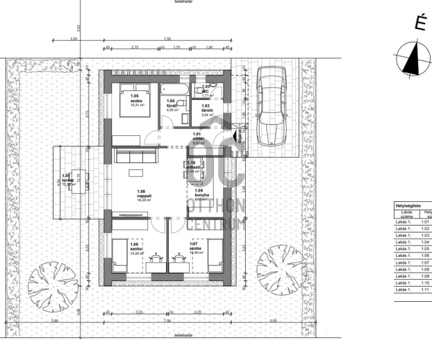
Rooms
terrace
12.9 m²
entryway
5.07 m²
storage
3.04 m²
toilet-washbasin
1.71 m²
bathroom-toilet
4.55 m²
bedroom
10.31 m²
bedroom
10.4 m²
bedroom
10.4 m²
living room
18.24 m²
kitchen
6.13 m²
dining room
1.44 m²
Dienes László
Credit Expert