275,900,000 Ft
728,000 €
- 128.1m²
- 5 Rooms
In the 3rd district, in Ürömhegy, in a green environment, newly built semi-detached houses with garden connection for sale!
This project consists of 2 buildings and 4 apartments:
------
I. Building (Kőpor Street): Year of construction: 2026.
*K-A apartment: 120.74 m² + balcony/terrace: 32.81 m², 4 rooms, 2 bathrooms, 2 surface parking spaces, plot: 405.5 m² – 216.0 million HUF.
*K-B apartment: 110.49 m² + balcony/terrace: 37.36 m², 4 rooms, 2 bathrooms, 1 surface parking space, plot: 405.5 m² – 209.9 million HUF.
II. Building (Ürömhegyi Lejtő): Year of construction: 2027.
*Ü-A apartment: 126.52 m² + balcony/terrace: 43.00 m², 5 rooms, 2 bathrooms, 2 parking spaces, plot: 405.5 m² – 275.9 million HUF.
*Ü-B apartment: 128.14 m² + balcony/terrace: 43.30 m², 5 rooms, 2 bathrooms, 2 parking spaces, plot: 405.5 m² – 275.9 million HUF.
-----
This listing refers to the following apartment:
Ü-B apartment: 128.14 m² + balcony/terrace: 43.30 m², 5 rooms, 2 bathrooms, 2 parking spaces, plot: 405.5 m² – 275.9 million HUF.
MAIN FEATURES OF THE APARTMENT:
*Newly built, using high-quality materials,
*Designed and executed with a modern concept,
*Practical layout and efficient use of space,
*Designed with a modern building envelope and low heat transfer coefficient,
*Bright rooms with insulated windows overlooking greenery,
*Motorized shutters,
*Ceiling height of 270–300 cm, providing very comfortable living spaces,
*Equipped with a heat pump heating and cooling system.
MAIN FEATURES OF THE BUILDING:
*Large plot, total 811 m²,
*Modern, minimalist façade fitting the surroundings,
*Number of apartments in the building: 2,
*Landscaped, spacious courtyard with direct garden access,
*Outdoor areas and yard equipped with lighting,
*Prepared for solar panel installation,
*The apartment has 2 parking spaces in an underground garage.
Ürömhegyi Street is an extremely quiet, detached-house area in Budapest’s 3rd district, where transport, healthcare, educational institutions and services are easily accessible, mainly thanks to nearby Bécsi Road and the Aranyhegy area. Ürömhegyi Lejtő therefore offers adequate infrastructure, easily accessible services and good public transport connections, making it an ideal choice for families and for those seeking a peaceful environment.
Services in the area within walking distance or a few minutes’ travel:
TRANSPORT: Public transport options include bus lines 160, 943 and 960, providing good connections towards the city centre and Óbuda, as well as lines 260 and 219. The main road in the area is Bécsi Road, which is quickly accessible both by car and public transport, with buses running more frequently in the weekday morning and afternoon peaks and less frequently at other times.
PHARMACIES: The Harsánylejtő Pharmacy at 314 Bécsi Road is open 24/7 and offers free street parking and a wide range of services, including both medical and veterinary products.
HEALTHCARE SERVICES: In the 3rd district, Szent Margit Hospital and several outpatient clinics provide primary and specialist care for residents. A salt room operates in the Csillaghegy Community House for respiratory and allergy problems, available exclusively to local residents with prior appointment, and social nursing and care services are also available in the area.
EDUCATIONAL AND CHILDCARE INSTITUTIONS: Kindergartens and primary schools are mainly located in the more central parts of the 3rd district; on average, around 10% of children attending district kindergartens and schools come from outside the district, and the Aranyhegy–Ürömhegy–Péterhegy area has a favourable educational catchment.
GROCERY SHOPS AND OTHER SERVICES: Everyday shopping is provided by a large CBA supermarket nearby, while major retail chains can be found along or close to Bécsi Road. Various additional services are available in the area, such as leisure, sports and cultural facilities, and a salt room in the Csillaghegy Community House.
FAVOURABLE MORTGAGE OPTIONS (high volume of loan placements): TAILOR-MADE MORTGAGE SOLUTIONS are offered to meet individual needs. Our independent mortgage centre compares the offers of ALL BANKS AND LENDING INSTITUTIONS available in the country for you free of charge, and our highly experienced colleagues are available by prior appointment even after regular working hours.
------
I. Building (Kőpor Street): Year of construction: 2026.
*K-A apartment: 120.74 m² + balcony/terrace: 32.81 m², 4 rooms, 2 bathrooms, 2 surface parking spaces, plot: 405.5 m² – 216.0 million HUF.
*K-B apartment: 110.49 m² + balcony/terrace: 37.36 m², 4 rooms, 2 bathrooms, 1 surface parking space, plot: 405.5 m² – 209.9 million HUF.
II. Building (Ürömhegyi Lejtő): Year of construction: 2027.
*Ü-A apartment: 126.52 m² + balcony/terrace: 43.00 m², 5 rooms, 2 bathrooms, 2 parking spaces, plot: 405.5 m² – 275.9 million HUF.
*Ü-B apartment: 128.14 m² + balcony/terrace: 43.30 m², 5 rooms, 2 bathrooms, 2 parking spaces, plot: 405.5 m² – 275.9 million HUF.
-----
This listing refers to the following apartment:
Ü-B apartment: 128.14 m² + balcony/terrace: 43.30 m², 5 rooms, 2 bathrooms, 2 parking spaces, plot: 405.5 m² – 275.9 million HUF.
MAIN FEATURES OF THE APARTMENT:
*Newly built, using high-quality materials,
*Designed and executed with a modern concept,
*Practical layout and efficient use of space,
*Designed with a modern building envelope and low heat transfer coefficient,
*Bright rooms with insulated windows overlooking greenery,
*Motorized shutters,
*Ceiling height of 270–300 cm, providing very comfortable living spaces,
*Equipped with a heat pump heating and cooling system.
MAIN FEATURES OF THE BUILDING:
*Large plot, total 811 m²,
*Modern, minimalist façade fitting the surroundings,
*Number of apartments in the building: 2,
*Landscaped, spacious courtyard with direct garden access,
*Outdoor areas and yard equipped with lighting,
*Prepared for solar panel installation,
*The apartment has 2 parking spaces in an underground garage.
Ürömhegyi Street is an extremely quiet, detached-house area in Budapest’s 3rd district, where transport, healthcare, educational institutions and services are easily accessible, mainly thanks to nearby Bécsi Road and the Aranyhegy area. Ürömhegyi Lejtő therefore offers adequate infrastructure, easily accessible services and good public transport connections, making it an ideal choice for families and for those seeking a peaceful environment.
Services in the area within walking distance or a few minutes’ travel:
TRANSPORT: Public transport options include bus lines 160, 943 and 960, providing good connections towards the city centre and Óbuda, as well as lines 260 and 219. The main road in the area is Bécsi Road, which is quickly accessible both by car and public transport, with buses running more frequently in the weekday morning and afternoon peaks and less frequently at other times.
PHARMACIES: The Harsánylejtő Pharmacy at 314 Bécsi Road is open 24/7 and offers free street parking and a wide range of services, including both medical and veterinary products.
HEALTHCARE SERVICES: In the 3rd district, Szent Margit Hospital and several outpatient clinics provide primary and specialist care for residents. A salt room operates in the Csillaghegy Community House for respiratory and allergy problems, available exclusively to local residents with prior appointment, and social nursing and care services are also available in the area.
EDUCATIONAL AND CHILDCARE INSTITUTIONS: Kindergartens and primary schools are mainly located in the more central parts of the 3rd district; on average, around 10% of children attending district kindergartens and schools come from outside the district, and the Aranyhegy–Ürömhegy–Péterhegy area has a favourable educational catchment.
GROCERY SHOPS AND OTHER SERVICES: Everyday shopping is provided by a large CBA supermarket nearby, while major retail chains can be found along or close to Bécsi Road. Various additional services are available in the area, such as leisure, sports and cultural facilities, and a salt room in the Csillaghegy Community House.
FAVOURABLE MORTGAGE OPTIONS (high volume of loan placements): TAILOR-MADE MORTGAGE SOLUTIONS are offered to meet individual needs. Our independent mortgage centre compares the offers of ALL BANKS AND LENDING INSTITUTIONS available in the country for you free of charge, and our highly experienced colleagues are available by prior appointment even after regular working hours.
Registration Number
P4763-1-0A-NA-001
Property Details
Sales
for sale
Legal Status
new
Character
house
Construction Method
brick
Net Size
128.1 m²
Gross Size
171.4 m²
Plot Size
405 m²
Size of Terrace / Balcony
43.3 m²
Garden Size
150 m²
Heating
heat pump
Ceiling Height
270 cm
Number of Levels Within the Property
1
Orientation
North-West
View
Green view
Condition
Excellent
Condition of Facade
Excellent
Neighborhood
quiet, good transport, green
Year of Construction
2027
Number of Bathrooms
2
Condominium Garden
yes
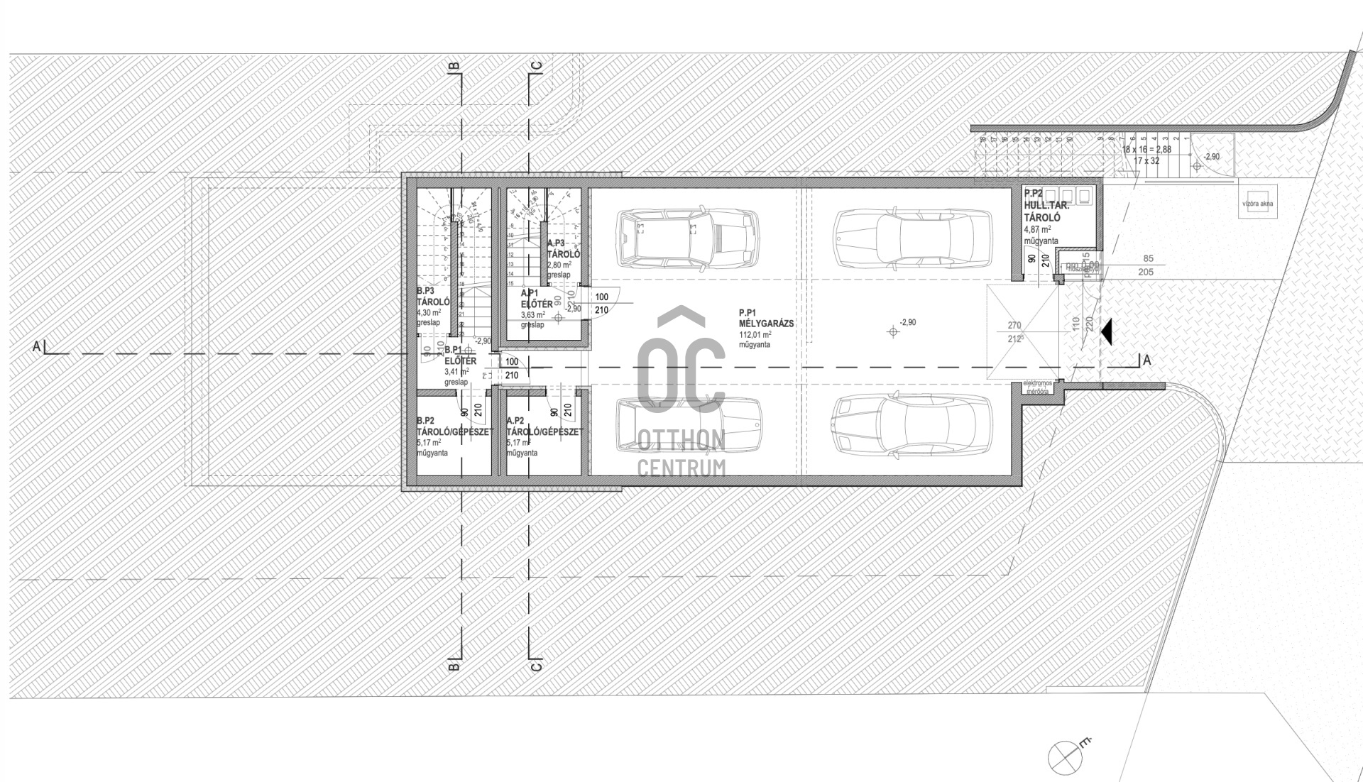
Garage
Included in the price
Garage Spaces
2
Water
Available
Electricity
Available
Sewer
Available
Multi-Generational
yes
Storage
Shared
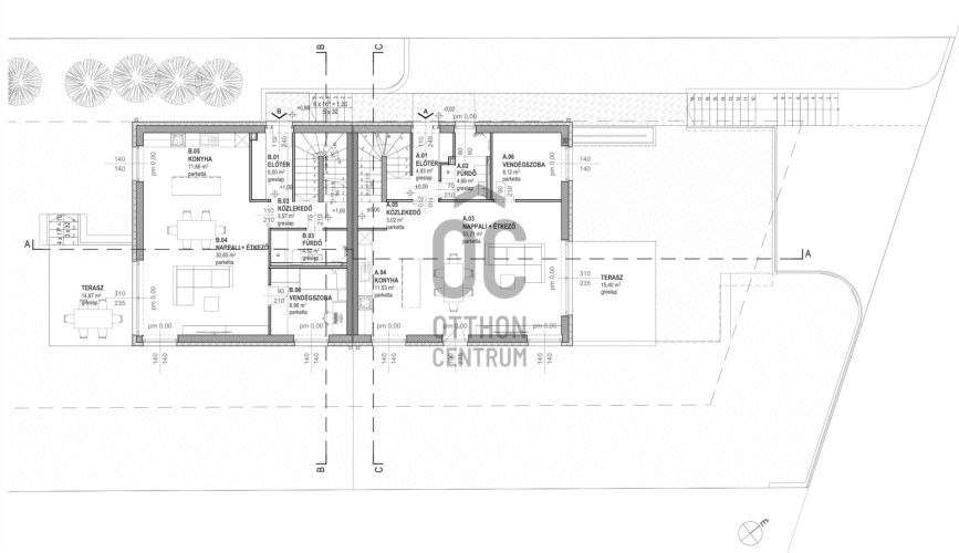
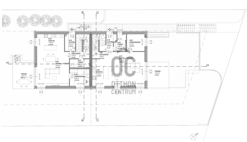
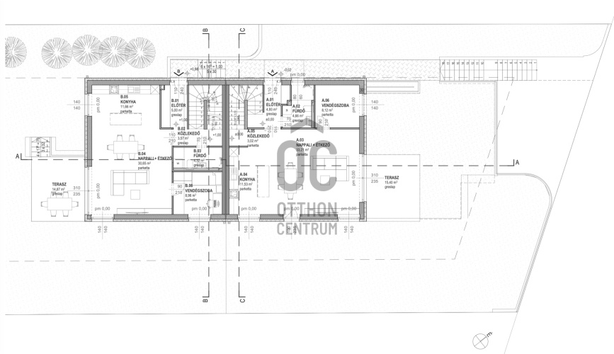
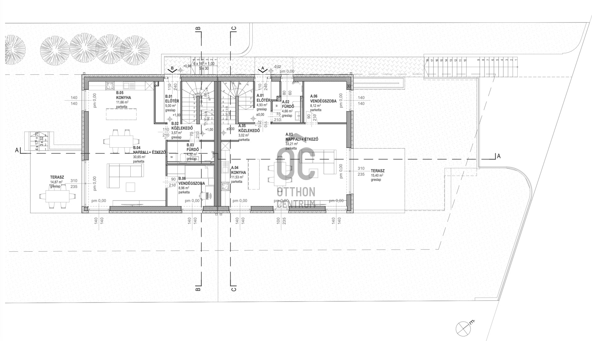
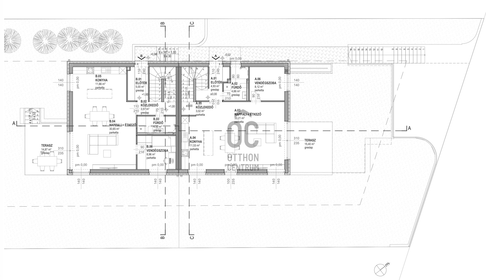
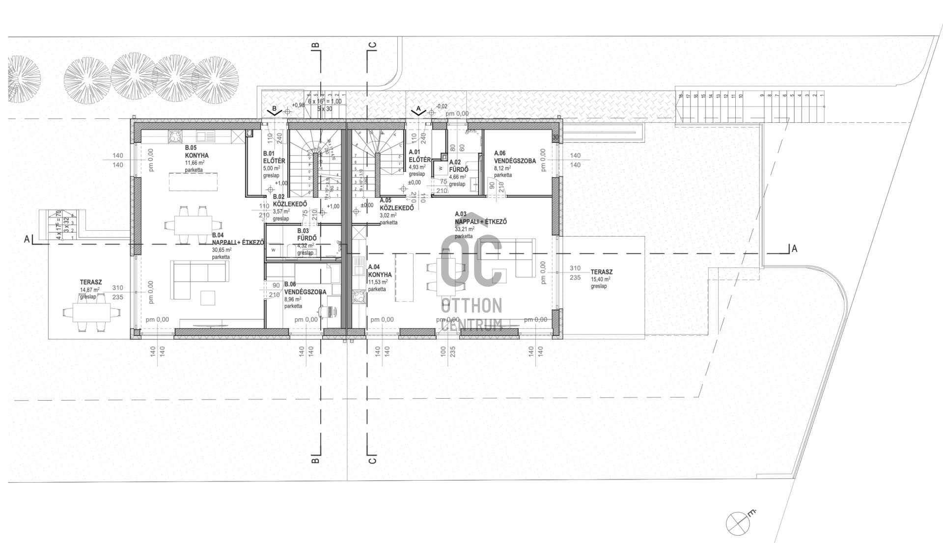
Rooms
entryway
5 m²
corridor
4.25 m²
corridor
4.25 m²
bedroom
14.07 m²
bathroom
4.32 m²
shower
4.26 m²
open-plan living and dining room
30.65 m²
bedroom
12.21 m²
kitchen
11.66 m²
bedroom
12.01 m²
bathroom
4.3 m²
bedroom
8.96 m²
entryway
3.41 m²
storage
5.17 m²
storage
4.3 m²
terrace
14.87 m²
terrace
28.46 m²
Kőrösi Róbert
Credit Expert