For sale new construction apartment, P4740-1-0A-01-007
Balatonudvari, Fövenyes

66,900,000 Ft

177,000 €

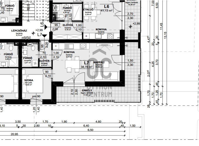
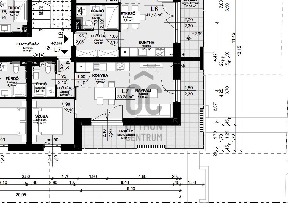
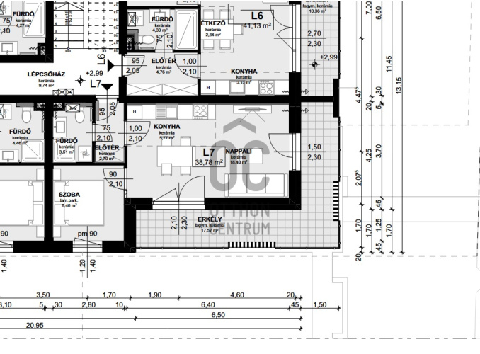
  • 38.8m²
  • 2 Rooms
  • 1st floor
Exclusive Contract

Registration Number

P4740-1-0A-01-007

Property Details

Sales
for sale
Legal Status
new
Character
apartment
Construction Method
brick
Net Size
38.8 m²
Gross Size
47.5 m²
Size of Terrace / Balcony
17.5 m²
Garden Size
100 m²
Heating
heat pump (air-to-water)
Ceiling Height
270 cm
Orientation
South-West
View
Green view
Staircase Type
enclosed staircase
Condition
Excellent
Condition of Facade
Excellent
Condition of Staircase
Excellent
Neighborhood
quiet
Year of Construction
2027
Number of Bathrooms
1
Position
garden-facing
Water
Available
Electricity
Available
Sewer
Available
Connected to Garden
yes
Storage
Separately purchasable
Distance to Waterfront
500 meters

Rooms

open-plan kitchen and living room
28 m²
room
11 m²
bathroom-toilet
4 m²

From Our Office Listings - Balatonfüred - Zsigmond utca

for sale commercial property

Index image
26

for sale family house

Index image
data_sheet.details.realestate.section.main.otthonstart_flag.label
11

for sale new construction apartment

Index image
14

for sale apartment

Index image
data_sheet.details.realestate.section.main.otthonstart_flag.label
31

for sale family house

Index image
data_sheet.details.realestate.section.main.otthonstart_flag.label
14

for sale family house

Index image
data_sheet.details.realestate.section.main.otthonstart_flag.label
12

for sale agricultural property

Index image
7

for sale plot

Index image
9

for sale family house

Index image
21

for sale commercial property

Index image
20