data_sheet.details.realestate.section.main.otthonstart_flag.label
For sale new construction semi-detached house,
P4717-1-07-NA-000
Szombathely, Olad
70,600,000 Ft
181,000 €
- 79.6m²
- 4 Rooms




Plató I. projekt
Plató I. projekt
Szombathelyen új építésű ikerház eladó!
Új építésű ikerház eladó Szombathelyen, az Oladi városrészen.
Egy modern ikerház egyik felét kínálom, amelyet 2026-ban vehet birtokba.
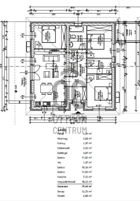
A 79,64 négyzetméteres lakótér minden részlete átgondolt: három kényelmes hálószoba, egy tágas, világos nappali, amely egy légtérben helyezkedik el a konyha-étkezővel. Innen közvetlenül kiléphet a 12,75 négyzetméteres teraszra, ahol reggeli kávé, baráti beszélgetések, vagy egy csendes este is jól esik. A fürdőszoba kényelmes kialakítású, a WC külön helyiségben kapott helyet.
Praktikus és otthonos megoldások.
Az ingatlan nemcsak szép, hanem magas minőségű műszaki tartalommal is épül: téglaépítésű, 15 cm-es szigeteléssel, korszerű BOSCH kombi kazánnal /padlófűtés/ és háromrétegű műanyag nyílászárókkal, amelyek kiváló hő- és hangszigetelést biztosítanak. A házba klíma is beépítésre kerül.
A hozzá tartozó 459 négyzetméteres kertet úgy alakíthatja ki, ahogy szeretné – legyen az egy veteményes, játszórész, vagy éppen egy hangulatos kerti sütögető.
Ez az otthon ideális választás lehet, ha csendes környezetre, mégis városhoz közeli, modern életstílusra vágyik. Ha úgy érzi szívesen élne itt, kérem keressen, beszéljük át a részleteket!
✅ 79,64 m²-es lakótér + 12,75 m² terasz
✅ 3 hálószoba, nappali-étkező-konyha egy légtérben
✅ fürdőszoba + külön WC
✅ közvetlen kertkapcsolat a nappaliból
✅ 459 m² saját kert – ideális családosoknak, vagy kertészkedni vágyóknak
✅ téglaépítésű, 15 cm hőszigeteléssel
✅ 3 rétegű műanyag nyílászárók
✅ BOSCH kondenzációs kazán + padlófűtés
✅ beépített klíma
✅ 2026-os átadás
Az ingatlan modern műszaki tartalommal, energiatakarékos kialakítással készül, kellemes, csendes környezetben.
TOVÁBBI LEHETŐSÉGEK!
Új építésű ikerházak eladók Szombathelyen, az Oladi városrészen:
- több méretben kerülnek megépítésre: 47 nm-től akár 90 nm-ig
- telek méretek: 228 nm-től 774 nm-ig
- nappali+ 2, illetve nappali +3 szobás kivitelezéssel
Ne maradjon le , keressen bizalommal!
Hitelre van szüksége? Az Otthon Centrum az ország egyik legnagyobb és legmegbízhatóbb hitelközvetítőjeként, teljes körű és díjmentes hitel ügyintézéssel, biztosításkötéssel áll rendelkezésére! Kérje személyre szabott ajánlatunkat Kollégáinktól!
Válassza ki az Önnek legmegfelelőbbet.
Szombathelyen új építésű ikerház eladó!
Új építésű ikerház eladó Szombathelyen, az Oladi városrészen.
Egy modern ikerház egyik felét kínálom, amelyet 2026-ban vehet birtokba.
A 79,64 négyzetméteres lakótér minden részlete átgondolt: három kényelmes hálószoba, egy tágas, világos nappali, amely egy légtérben helyezkedik el a konyha-étkezővel. Innen közvetlenül kiléphet a 12,75 négyzetméteres teraszra, ahol reggeli kávé, baráti beszélgetések, vagy egy csendes este is jól esik. A fürdőszoba kényelmes kialakítású, a WC külön helyiségben kapott helyet.
Praktikus és otthonos megoldások.
Az ingatlan nemcsak szép, hanem magas minőségű műszaki tartalommal is épül: téglaépítésű, 15 cm-es szigeteléssel, korszerű BOSCH kombi kazánnal /padlófűtés/ és háromrétegű műanyag nyílászárókkal, amelyek kiváló hő- és hangszigetelést biztosítanak. A házba klíma is beépítésre kerül.
A hozzá tartozó 459 négyzetméteres kertet úgy alakíthatja ki, ahogy szeretné – legyen az egy veteményes, játszórész, vagy éppen egy hangulatos kerti sütögető.
Ez az otthon ideális választás lehet, ha csendes környezetre, mégis városhoz közeli, modern életstílusra vágyik. Ha úgy érzi szívesen élne itt, kérem keressen, beszéljük át a részleteket!
✅ 79,64 m²-es lakótér + 12,75 m² terasz
✅ 3 hálószoba, nappali-étkező-konyha egy légtérben
✅ fürdőszoba + külön WC
✅ közvetlen kertkapcsolat a nappaliból
✅ 459 m² saját kert – ideális családosoknak, vagy kertészkedni vágyóknak
✅ téglaépítésű, 15 cm hőszigeteléssel
✅ 3 rétegű műanyag nyílászárók
✅ BOSCH kondenzációs kazán + padlófűtés
✅ beépített klíma
✅ 2026-os átadás
Az ingatlan modern műszaki tartalommal, energiatakarékos kialakítással készül, kellemes, csendes környezetben.
TOVÁBBI LEHETŐSÉGEK!
Új építésű ikerházak eladók Szombathelyen, az Oladi városrészen:
- több méretben kerülnek megépítésre: 47 nm-től akár 90 nm-ig
- telek méretek: 228 nm-től 774 nm-ig
- nappali+ 2, illetve nappali +3 szobás kivitelezéssel
Ne maradjon le , keressen bizalommal!
Hitelre van szüksége? Az Otthon Centrum az ország egyik legnagyobb és legmegbízhatóbb hitelközvetítőjeként, teljes körű és díjmentes hitel ügyintézéssel, biztosításkötéssel áll rendelkezésére! Kérje személyre szabott ajánlatunkat Kollégáinktól!
Válassza ki az Önnek legmegfelelőbbet.
Registration Number
P4717-1-07-NA-000
Property Details
Sales
for sale
Legal Status
new
Character
house
Construction Method
brick
Net Size
79.6 m²
Gross Size
104 m²
Plot Size
459 m²
Size of Terrace / Balcony
12.7 m²
Garden Size
459 m²
Heating
Gas circulator
Ceiling Height
265 cm
Orientation
North-West
Condition
Excellent
Condition of Facade
Excellent
Neighborhood
quiet, green
Year of Construction
2026
Number of Bathrooms
1
Condominium Garden
yes
Water
Available
Gas
Available
Electricity
Available
Sewer
Available
Rooms
open-plan living and dining room
18.24 m²
kitchen
7.22 m²
room
11.2 m²
room
11.2 m²
room
10.26 m²
bathroom
5.49 m²
toilet
1.37 m²
utility room
5 m²
pantry
1.37 m²
corridor
5.55 m²
entryway
3 m²
terrace
12.75 m²
storage
6 m²

Csejtey Krisztina
Credit Expert